| 
 | 
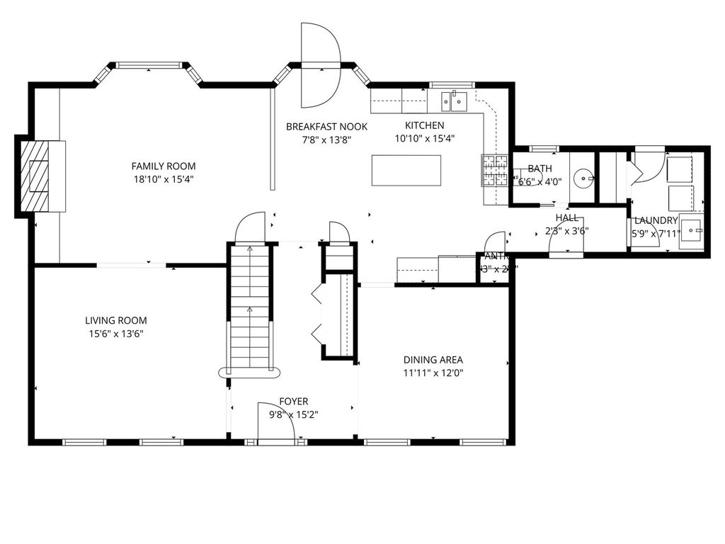
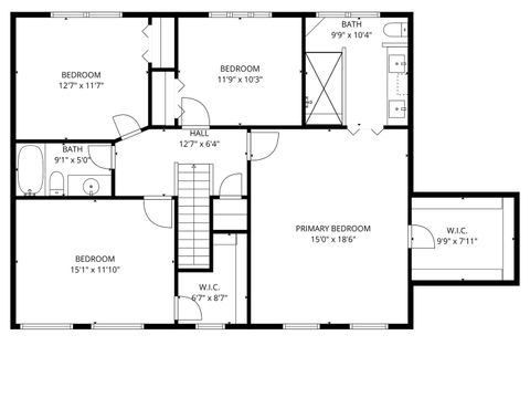
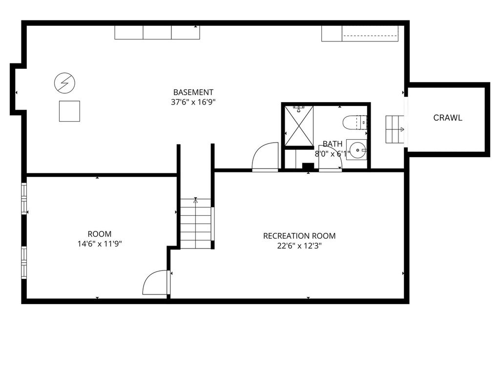
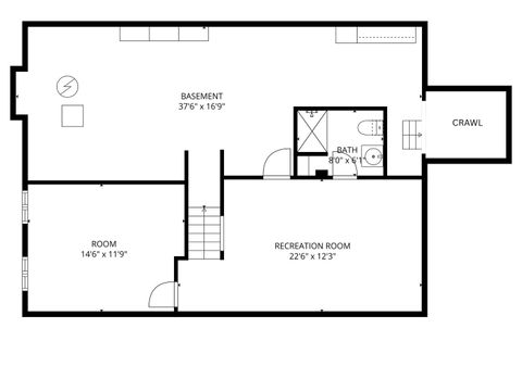
FANTASTIC 5 BEDROOM HOME IN ONE OF GENEVA'S MOST DESIREABLE NEIGHBORHOODS & LOCATED ON A STUNNING PRIVATE LOT. Discover the perfect blend of space, serenity, and convenience in this meticulously maintained home, ideally located in Randall Square subdivision. Enjoy a premium location with direct park access, backing to public green space and the Geneva Middle Schools, & close to Peck Farm and soccer fields. Fabulous open space & trails just steps away. This spacious 2,489 sq ft single-family home offers room to grow with 5 generous bedrooms, 3.1 baths & a finished basement. Great floorplan & spacious rooms (most rooms freshly painted). Thoughtfully updated with durable Wilsonart flooring in many of the rooms. The kitchen opens to the family room & features plenty of cabinets, a large island, eating area, under cabinet lighting, access to the backyard & 2 pantry closets. The family room is large enough to host friends for the big game & features a beautiful gas brick fireplace, custom built-in bookcases & fantastic bay windows to let in the sunshine. The separate dining room is adjacent to the kitchen & features crown moulding, chair rail & original wood floors. The roomy living room with crown moulding is located off the foyer & opens to the family room. Convenient first-floor laundry/mud room is a great size & has plenty of storage space with closet, shelving & cabinetry. The laundry room features a utility tub & door that leads to the patio. Upstairs you'll find the custom primary bath is a true luxury showpiece featuring a skylight, quality cabinetry, spa-like walk-in shower with multiple shower heads, a handheld spray, and built-in seating. The primary bedroom suite will be an ideal place to unwind; it's very spacious & features a large walk-in closet. Additionally, there is an extra large linen closet on the 2nd floor to keep you organized. Bedrooms 2, 3 & 4 are all good sizes. Bedroom 2 has a great walk-in closet. The finished basement features the 5th bedroom, full bath & rec room with built-ins: ideal for a teen retreat, in-law suite, or dedicated home office. Nice sized foyer with large coat closet & crown moulding. Ample storage throughout including two separate attic spaces, basement storage room, floored crawl space, and 2.5 car garage with bump-out storage. The extra cabinetry in the unfinished side of the basement will stay. The fenced garden-like backyard is your own private oasis. It's an entertainer's dream featuring a large brick patio, a custom pergola, a stone walkway and beautifully maintained perennial beds-all providing peaceful privacy and direct access to the adjacent park. The home features many recent improvements: Interior Painting (2025), Sump Pump & Backup (2021), Siding (2019), Water Heater (2019) A/C & Furnace (2018) Windows (2018), Roof (2013). Low maintenance concrete extra-wide driveway. Attic fan. Just what you're looking for: location, space, functionality, and charm. Minutes to Schools, Shopping, Dining, Metra, I88, Hospitals, Parks, Golf Courses, Ball Fields, Pickleball Courts, Trails & Historic Downtown Geneva. Don't miss your chance-schedule your showing today!
| DAYS ON MARKET | 10 | LAST UPDATED | 10/24/2025 | 
|---|---|---|---|
| TRACT | Randall Square | YEAR BUILT | 1992 | 
| COMMUNITY | Geneva | GARAGE SPACES | 2.5 | 
| COUNTY | Kane | STATUS | Conditional | 
| PROPERTY TYPE(S) | Single Family | 
| ADDITIONAL DETAILS | |
| AIR | Ceiling Fan(s), Central Air | 
|---|---|
| AIR CONDITIONING | Yes | 
| APPLIANCES | Dishwasher, Disposal, Dryer, Microwave, Range, Refrigerator, Washer | 
| AREA | Geneva | 
| BASEMENT | Crawl Space, Finished, Full, Sump Pump, Yes | 
| CONSTRUCTION | Vinyl Siding | 
| FIREPLACE | Yes | 
| GARAGE | Yes | 
| HEAT | Forced Air, Natural Gas | 
| INTERIOR | Built-in Features, Entrance Foyer, Walk-In Closet(s) | 
| LOT | 0 | 
| LOT DESCRIPTION | Garden | 
| LOT DIMENSIONS | 90 x 130 | 
| PARKING | Concrete, On Site, Attached, Garage | 
| SEWER | Public Sewer | 
| STYLE | Traditional | 
| SUBDIVISION | Randall Square | 
| TAXES | 9694 | 
| WATER | Public | 
            MORTGAGE CALCULATOR
        
        TOTAL MONTHLY PAYMENT
0
                    P
                        I 
                    
            *Estimate only
        
    | SATELLITE VIEW | 
| / | |
	We respect your online privacy and will never spam you. By submitting this form with your telephone number
	you are consenting for Humderto
	Garcia to contact you even if your name is on a Federal or State
	"Do not call List".
	
    Listed with RE/MAX All Pro - St Charles
	The data relating to real estate for sale on this web site comes in part from the Broker ReciprocitySM Program of MRED. All real estate listings are marked with the Broker ReciprocitySM logo or the MRED Broker ReciprocitySM thumbnail logo (a little black house) and detailed information about them includes the name of the listing brokers.
The broker providing these data believes them to be correct, but advises interested parties to confirm them before relying on them in a purchase decision.
Copyright 2025 MRED. All rights reserved.

	
	
	
    
The broker providing these data believes them to be correct, but advises interested parties to confirm them before relying on them in a purchase decision.
Copyright 2025 MRED. All rights reserved.

This IDX solution is (c) Diverse Solutions 2025.
 
				 Twitter
									        Twitter Facebook
									        Facebook Email
									        Email 
									 
									 
									 
									 
									 
									 
									 
									 
									 
									 
									 
									 
									 
									 
									 
									 
									 
									 
									 
									 
									 
									 
									 
									 
									 
									 
									 
									 
									 
									 
									 
									 
									 
									 
									 
									 
									 
									 
									 
									 
									 
									 
									 
									 
									 
									 
									 
									 
									 
									 
									 
									 
									 
									 
									 
									 
									