|
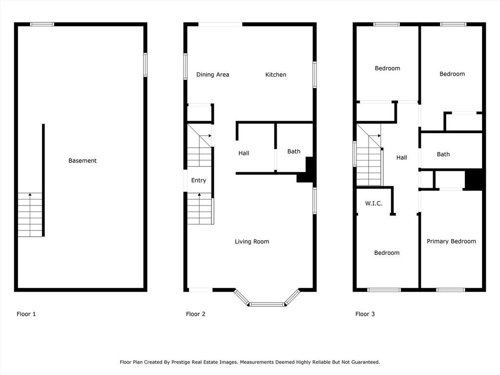
Don't miss out on this beautifully maintained and spacious 4-bedroom, 1.5-bathroom, three-story home located in the heart of New City, Chicago. This charming single-family residence presents an incredible opportunity for first-time homebuyers or savvy investors seeking a move-in ready property with endless potential. As you step inside, you're welcomed by expansive living spaces featuring elegant mansion ecru oak waterproof laminate flooring throughout the entire first floor, creating a warm and inviting atmosphere. The home offers four generously sized bedrooms and 1.5 well-maintained bathrooms, complemented by a thoughtfully designed kitchen and dining room layout-perfect for both everyday living and entertaining. The lower level features a full unfinished basement, ideal for creating a family entertainment area, home office, recreational space, or workshop to suit your lifestyle. Additional highlights include a dedicated laundry room, mechanical room, updated HVAC system, modernized plumbing and electrical, as well as newer windows and roof. Step outside to enjoy a custom-built deck, ideal for hosting, overlooking a spacious and fenced backyard-perfect for summer gatherings and outdoor enjoyment. Conveniently located within walking distance to Dr. Nathan Davis Square Park, local schools, and public transportation, and just minutes from I-55, this home offers effortless commuting and easy access to all that Chicago has to offer. Come experience the comfort, space, and potential of this New City gem-schedule your showing today!
| DAYS ON MARKET | 105 | LAST UPDATED | 12/7/2025 |
|---|---|---|---|
| YEAR BUILT | 2002 | COMMUNITY | CHI - New City |
| COUNTY | Cook | STATUS | Conditional |
| PROPERTY TYPE(S) | Single Family |
| ADDITIONAL DETAILS | |
| AIR | Central Air |
|---|---|
| AIR CONDITIONING | Yes |
| AREA | CHI - New City |
| BASEMENT | Daylight, Unfinished, Yes |
| CONSTRUCTION | Concrete, Vinyl Siding |
| HEAT | Natural Gas |
| LOT | 0 |
| LOT DIMENSIONS | 30X125 |
| SEWER | Public Sewer |
| TAXES | 2043 |
| WATER | Public |
MORTGAGE CALCULATOR
TOTAL MONTHLY PAYMENT
0
P
I
*Estimate only
| SATELLITE VIEW |
| / | |
We respect your online privacy and will never spam you. By submitting this form with your telephone number
you are consenting for Humderto
Garcia to contact you even if your name is on a Federal or State
"Do not call List".
Listed with Luna Realty Group
The data relating to real estate for sale on this web site comes in part from the Broker ReciprocitySM Program of MRED. All real estate listings are marked with the Broker ReciprocitySM logo or the MRED Broker ReciprocitySM thumbnail logo (a little black house) and detailed information about them includes the name of the listing brokers.
The broker providing these data believes them to be correct, but advises interested parties to confirm them before relying on them in a purchase decision.
Copyright 2026 MRED. All rights reserved.

The broker providing these data believes them to be correct, but advises interested parties to confirm them before relying on them in a purchase decision.
Copyright 2026 MRED. All rights reserved.
This IDX solution is (c) Diverse Solutions 2026.