|
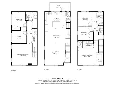
Largest and most desirable floor plan in the sought-after Base Camp Old Irving Park community. This spacious single-family home, built in 2016, offers a remarkable floor plan with exceptional architecture and thoughtful upgrades throughout, the home boasts 10-foot ceilings on the main level, vaulted ceilings upstairs, 8-foot solid core interior doors, and oversized windows that flood the space with natural light. The result is a clean, open, and airy atmosphere that truly feels like home. The chef's kitchen is a standout, featuring a large island, pantry, custom stone backsplash, upgraded cabinetry, a wine cooler, cooktop, and a separate range. Just steps from the kitchen, a rear deck and private yard create an ideal setting for outdoor entertaining. The main living area is open and versatile, with space for formal dining and a generous seating arrangement. Upstairs, you'll find three bedrooms, including a primary suite with a professionally organized walk-in closet, oversized shower, and large windows that let in plenty of light. The lower level expands your living space with a spacious rec room, two additional bedrooms, a full bathroom, upgraded plush carpeting, and extra storage. Located just steps from the Metra Grayland stop-only 16 minutes to Union Station-this home offers incredible convenience. You're also within walking distance to Portage Park's Six Corners, two Blue Line stops, and just minutes from I-90/94 and Logan Square. The community includes a private park and a two-car garage with additional storage. This is a fantastic opportunity to own in a vibrant, well-connected neighborhood.
DAYS ON MARKET | 2 | LAST UPDATED | 9/30/2025 |
---|---|---|---|
YEAR BUILT | 2016 | COMMUNITY | CHI - Irving Park |
GARAGE SPACES | 2.0 | COUNTY | Cook |
STATUS | Active | PROPERTY TYPE(S) | Single Family |
ADDITIONAL DETAILS | |
AIR | Central Air |
---|---|
AIR CONDITIONING | Yes |
AMENITIES | Snow Removal |
APPLIANCES | Cooktop, Dishwasher, Disposal, Dryer, Freezer, Humidifier, Range, Refrigerator, Stainless Steel Appliance(s), Washer, Wine Refrigerator |
AREA | CHI - Irving Park |
BASEMENT | Daylight, Finished, Full, Yes |
CONSTRUCTION | Other |
GARAGE | Yes |
HEAT | Forced Air, Natural Gas |
HOA DUES | 81 |
INTERIOR | Built-in Features, Cathedral Ceiling(s), Walk-In Closet(s) |
LOT | 0 |
LOT DESCRIPTION | Landscaped |
LOT DIMENSIONS | 26X93 |
PARKING | Asphalt, Garage Door Opener, On Site, Detached, Garage, Driveway |
SEWER | Public Sewer |
TAXES | 11790.72 |
MORTGAGE CALCULATOR
TOTAL MONTHLY PAYMENT
0
P
I
*Estimate only
SATELLITE VIEW |
/ | |
We respect your online privacy and will never spam you. By submitting this form with your telephone number
you are consenting for Humderto
Garcia to contact you even if your name is on a Federal or State
"Do not call List".
Listed with THE NAV AGENCY
The data relating to real estate for sale on this web site comes in part from the Broker ReciprocitySM Program of MRED. All real estate listings are marked with the Broker ReciprocitySM logo or the MRED Broker ReciprocitySM thumbnail logo (a little black house) and detailed information about them includes the name of the listing brokers.
The broker providing these data believes them to be correct, but advises interested parties to confirm them before relying on them in a purchase decision.
Copyright 2025 MRED. All rights reserved.

The broker providing these data believes them to be correct, but advises interested parties to confirm them before relying on them in a purchase decision.
Copyright 2025 MRED. All rights reserved.

This IDX solution is (c) Diverse Solutions 2025.