|
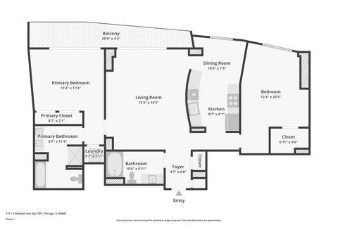
Welcome to this freshly updated 2-bedroom, 2-bath condo in the desirable South Loop of downtown Chicago. Meticulously renovated from top to bottom, this unit offers a modern, move-in-ready lifestyle with a smart split floor plan. Key features: Freshly painted interior throughout New bathroom vanities, hardware, accessories, quartz countertops in bathrooms. New faucets and upgraded fixtures All-new Stainless steel appliances, upgraded cabinets, granite counters Eat-in breakfast area adjacent to spacious living spaces All real hardwood floors in both bedrooms and living areas Prime parking spot in a private first-floor garage (approx. only 13 spaces) $30k with no separate tax bill or assessment Building amenities (built in 2005): 24-hour door staff Outdoor heated pool Party room Business center Dry cleaners Rooftop terrace with city views and regular Wednesday and Saturday fireworks This unit combines a practical, well-designed layout with contemporary finishes and a prime South Loop address, offering convenience, amenities, and easy access to parks, dining, transit, and all downtown Chicago has to offer. This is a one of a kind unit, none other like it in the building.
DAYS ON MARKET | 0 | LAST UPDATED | 9/30/2025 |
---|---|---|---|
YEAR BUILT | 2005 | COMMUNITY | CHI - Loop |
GARAGE SPACES | 1.0 | COUNTY | Cook |
STATUS | Active | PROPERTY TYPE(S) | Condo/Townhouse/Co-Op |
ADDITIONAL DETAILS | |
AIR | Central Air, Wall Unit(s), Zoned |
---|---|
AIR CONDITIONING | Yes |
AMENITIES | Gas, Insurance, Snow Removal, Water |
AREA | CHI - Loop |
BASEMENT | None |
CONSTRUCTION | Concrete, Glass |
EXTERIOR | Balcony |
GARAGE | Yes |
HEAT | Forced Air, Steam, Zoned |
HOA DUES | 745 |
INTERIOR | Elevator, Granite Counters, High Ceilings, Walk-In Closet(s) |
LOT | 0 |
LOT DIMENSIONS | condo |
PARKING | Garage Door Opener, Heated Garage, Garage, On Site, Attached |
POOL DESCRIPTION | In Ground |
SEWER | Public Sewer |
STORIES | 34 |
TAXES | 7955 |
UTILITIES | Cable Available |
VIEW | Yes |
VIEW DESCRIPTION | Water |
MORTGAGE CALCULATOR
TOTAL MONTHLY PAYMENT
0
P
I
*Estimate only
SATELLITE VIEW |
/ | |
We respect your online privacy and will never spam you. By submitting this form with your telephone number
you are consenting for Humderto
Garcia to contact you even if your name is on a Federal or State
"Do not call List".
Listed with Red Carpet Investment Group In
The data relating to real estate for sale on this web site comes in part from the Broker ReciprocitySM Program of MRED. All real estate listings are marked with the Broker ReciprocitySM logo or the MRED Broker ReciprocitySM thumbnail logo (a little black house) and detailed information about them includes the name of the listing brokers.
The broker providing these data believes them to be correct, but advises interested parties to confirm them before relying on them in a purchase decision.
Copyright 2025 MRED. All rights reserved.

The broker providing these data believes them to be correct, but advises interested parties to confirm them before relying on them in a purchase decision.
Copyright 2025 MRED. All rights reserved.

This IDX solution is (c) Diverse Solutions 2025.