|
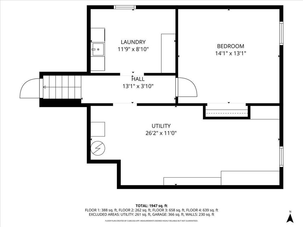
Spacious Split-Level with Rare Sub-Basement in Prime Woodstock Location! This 4-bedroom, 2 1/2-bath split-level offers nearly 2,000 sq ft of versatile living space, designed for both comfort and convenience. The main level showcases hardwood floors and a bright living room that flows into an updated kitchen with stainless steel appliances, granite counters, and a wraparound breakfast bar. Sliders off the dining area open to a spacious paver patio, ideal for grilling and entertaining. Upstairs, the primary suite features a walk-in closet and primary bathroom, with two additional bedrooms nearby, sharing their own bathroom. The walk-out lower level expands your living options with a large family room and the RARE sub-basement offers a 4th bedroom for future finishing options-perfect for guests, a home office, or related living PLUS outstanding storage or utility area, complemented by an oversized laundry room. Outdoor living shines with two patios and a large fenced yard-offering privacy, security, and flexibility for pets, children, gardening, or relaxed gatherings. Close to parks, family attractions, shopping, dining, Metra train service, and the historic Woodstock Square-featuring unique shops, restaurants, festivals, and the renowned Opera House. Enjoy the perfect blend of comfort, functionality, and community in the heart of Woodstock.
| DAYS ON MARKET | 36 | LAST UPDATED | 10/1/2025 |
|---|---|---|---|
| TRACT | Greenwood Meadows | YEAR BUILT | 1988 |
| COMMUNITY | Bull Valley / Greenwood / Woodstock | GARAGE SPACES | 2.0 |
| COUNTY | McHenry | STATUS | Active |
| PROPERTY TYPE(S) | Single Family |
| School District | Woodstock North High School |
|---|---|
| Elementary School | Mary Endres Elementary School |
| Jr. High School | Northwood Middle School |
| High School | Woodstock North High School |
| ADDITIONAL DETAILS | |
| AIR | Ceiling Fan(s), Central Air |
|---|---|
| AIR CONDITIONING | Yes |
| APPLIANCES | Dishwasher, Dryer, Range, Refrigerator, Washer |
| AREA | Bull Valley / Greenwood / Woodstock |
| BASEMENT | Partially Finished, Storage Space, Walk-Out Access, Yes |
| CONSTRUCTION | Brick, Vinyl Siding |
| GARAGE | Yes |
| HEAT | Forced Air, Natural Gas |
| LOT | 7231 sq ft |
| LOT DIMENSIONS | 70 X 103 |
| PARKING | Concrete, Garage Door Opener, On Site, Attached, Garage |
| SEWER | Public Sewer |
| SUBDIVISION | Greenwood Meadows |
| TAXES | 6089 |
| WATER | Public |
MORTGAGE CALCULATOR
TOTAL MONTHLY PAYMENT
0
P
I
*Estimate only
| SATELLITE VIEW |
| / | |
We respect your online privacy and will never spam you. By submitting this form with your telephone number
you are consenting for Humderto
Garcia to contact you even if your name is on a Federal or State
"Do not call List".
Listed with Keller Williams Success Realty
The data relating to real estate for sale on this web site comes in part from the Broker ReciprocitySM Program of MRED. All real estate listings are marked with the Broker ReciprocitySM logo or the MRED Broker ReciprocitySM thumbnail logo (a little black house) and detailed information about them includes the name of the listing brokers.
The broker providing these data believes them to be correct, but advises interested parties to confirm them before relying on them in a purchase decision.
Copyright 2025 MRED. All rights reserved.

The broker providing these data believes them to be correct, but advises interested parties to confirm them before relying on them in a purchase decision.
Copyright 2025 MRED. All rights reserved.
This IDX solution is (c) Diverse Solutions 2025.