| 
 | 
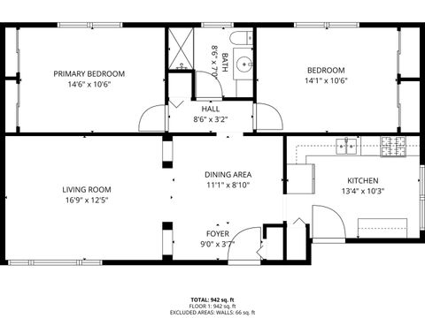
OPEN HOUSES CANCELED. Prime Ravenswood Corner 2 bed 1 bath high 1st floor charming mid century modern condo. Located on a tree lined street just North of Lawrence and West of Ashland, you can walk 10 minutes or less to 3 different train lines - Brown, Red or Metra! Just a skip Northeast to the heart of Andersonville and just West of Uptown's historic strip and East of the square in Lincoln Square. Great spot to be for those who want an easy commute while still having a quiet living space. A comfortable/homey well designed and remodeled interior help to show off all the light that 3 exposures bring into this corner cutie. Customized kitchen with updated appliances, spacious bright living room with additional dining space, hardwood floors, 2 large bedrooms of equal size and custom closets, built-ins, and window features throughout. HUGE private storage in the basement along with bike storage and laundry. Well funded and run building and association. Laundry is shared in basement and parking is behind the building exterior off alley, just around the corner from the unit's back door. Parking is not conveyed with the sale.
| DAYS ON MARKET | 30 | LAST UPDATED | 10/6/2025 | 
|---|---|---|---|
| YEAR BUILT | 1967 | COMMUNITY | CHI - Uptown | 
| COUNTY | Cook | STATUS | Conditional | 
| PROPERTY TYPE(S) | Condo/Townhouse/Co-Op | 
| Elementary School | Mcpherson Elementary School | 
|---|
| ADDITIONAL DETAILS | |
| AIR | Wall Unit(s), Zoned | 
|---|---|
| AIR CONDITIONING | Yes | 
| AMENITIES | Gas, Insurance, Snow Removal, Water | 
| AREA | CHI - Uptown | 
| BASEMENT | None | 
| CONSTRUCTION | Brick | 
| HEAT | Baseboard | 
| HOA DUES | 338 | 
| LOT | 0 | 
| LOT DIMENSIONS | common | 
| PARKING | Assigned, On Site, Other | 
| SEWER | Public Sewer | 
| STORIES | 3 | 
| TAXES | 3098 | 
| WATER | Public | 
            MORTGAGE CALCULATOR
        
        TOTAL MONTHLY PAYMENT
0
                    P
                        I 
                    
            *Estimate only
        
    | SATELLITE VIEW | 
| / | |
	We respect your online privacy and will never spam you. By submitting this form with your telephone number
	you are consenting for Humderto
	Garcia to contact you even if your name is on a Federal or State
	"Do not call List".
	
    Listed with Fulton Grace Realty
	The data relating to real estate for sale on this web site comes in part from the Broker ReciprocitySM Program of MRED. All real estate listings are marked with the Broker ReciprocitySM logo or the MRED Broker ReciprocitySM thumbnail logo (a little black house) and detailed information about them includes the name of the listing brokers.
The broker providing these data believes them to be correct, but advises interested parties to confirm them before relying on them in a purchase decision.
Copyright 2025 MRED. All rights reserved.

	
	
	
    
The broker providing these data believes them to be correct, but advises interested parties to confirm them before relying on them in a purchase decision.
Copyright 2025 MRED. All rights reserved.

This IDX solution is (c) Diverse Solutions 2025.
 
				 Twitter
									        Twitter Facebook
									        Facebook Email
									        Email 
									 
									 
									 
									 
									 
									 
									 
									 
									 
									 
									 
									 
									 
									 
									 
									 
									 
									 
									 
									 
									