|
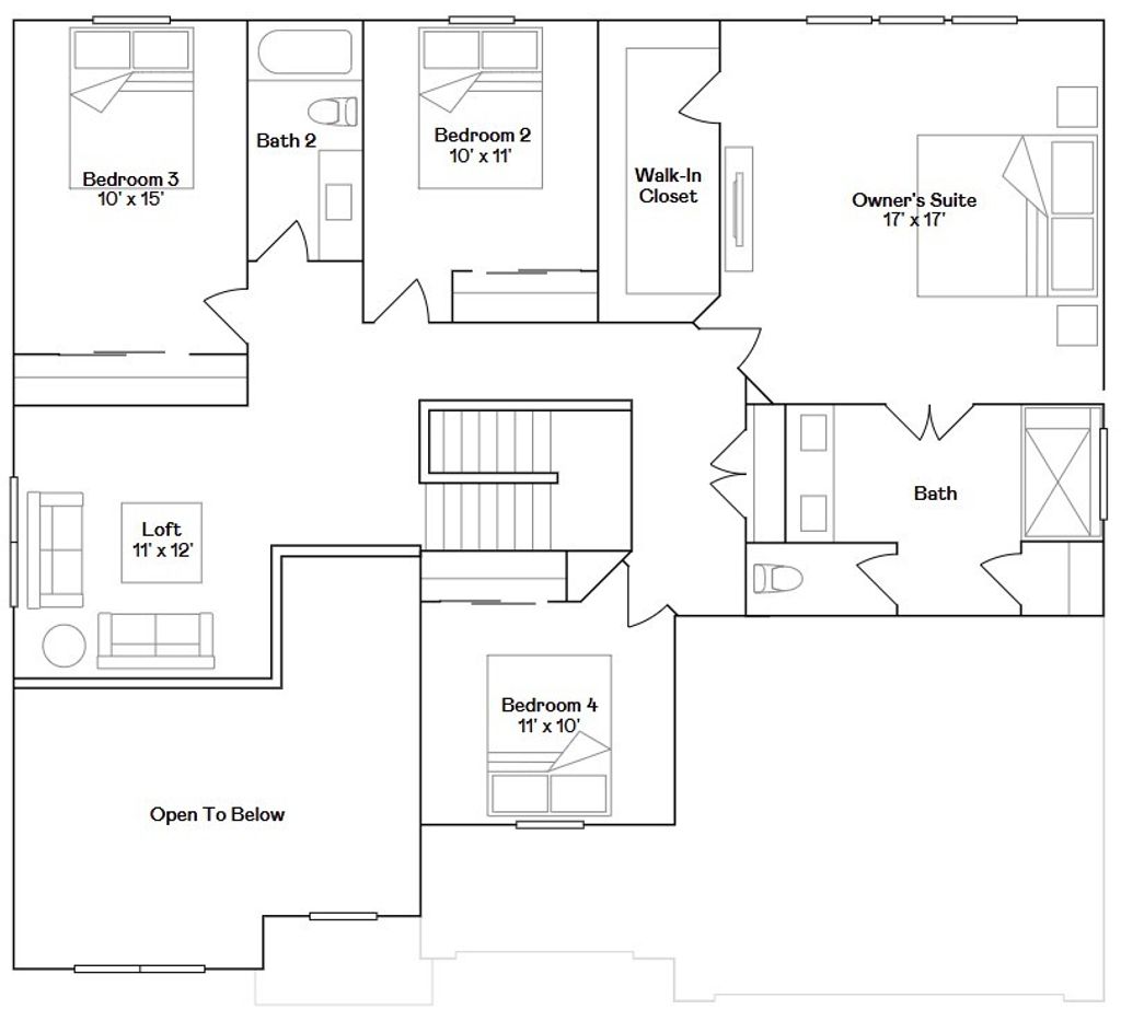
SPECIAL FINANCING OFFERS AVAILABLE! READY FOR FEBRUARY DELIVERY! Homesite #0051. The Westbury is a stunning two-story home that masterfully blends modern elegance with everyday functionality. This spacious layout includes four bedrooms, two and a half bathrooms, and a dedicated study, offering comfort and versatility for today's lifestyle. On the main level, a formal dining room and a dramatic two-story living room create a grand first impression. The open-concept family room, kitchen, and breakfast area provide a seamless space for relaxing or entertaining, while a private study offers a quiet retreat. A convenient laundry room on the first floor adds to the home's thoughtful design. Upstairs, three secondary bedrooms, a versatile loft, and the luxurious owner's suite provide ample space for rest and privacy. The owner's suite serves as a serene escape with its expansive layout and spa-inspired en-suite features. A standard three-car garage ensures plenty of room for parking and storage, rounding out this well-appointed home designed to enhance everyday living. Exterior will be Indigo color siding with Keeneland color brick. (pic for reference ONLY). *Photos are not this actual home* Calistoga is a vibrant new community offering brand-new single-family homes in the charming and growing village of New Lenox, Illinois. Designed with families in mind, Calistoga places you close to a variety of local shopping and dining options, providing easy access to everyday conveniences and weekend entertainment. This community is ideal for commuters, with quick and convenient access to I-80, Route 45, and Route 52, making travel to and from Chicago simple and efficient. Residents of Calistoga will enjoy all the benefits of living in New Lenox, a village known for its welcoming atmosphere, strong sense of community, and wide range of events and amenities. Whether it's seasonal festivals, local parks, or community activities, there's always something happening that brings neighbors together and creates a strong, connected lifestyle. At Calistoga, you'll find more than just a home-you'll find a place to grow, connect, and enjoy everything that makes New Lenox a great place to live.
| DAYS ON MARKET | 194 | LAST UPDATED | 10/15/2025 |
|---|---|---|---|
| TRACT | Calistoga | YEAR BUILT | 2025 |
| COMMUNITY | New Lenox | GARAGE SPACES | 3.0 |
| COUNTY | Will | STATUS | Conditional |
| PROPERTY TYPE(S) | Single Family |
| School District | Lincoln-Way Central High School |
|---|---|
| Elementary School | Spencer Point Elementary School |
| Jr. High School | Alex M Martino Junior High Schoo |
| High School | Lincoln-Way Central High School |
| PRICE HISTORY | |
| Prior to Oct 14, '25 | $589,907 |
|---|---|
| Oct 14, '25 - Today | $577,107 |
| ADDITIONAL DETAILS | |
| AIR | Central Air |
|---|---|
| AIR CONDITIONING | Yes |
| APPLIANCES | Dishwasher, Disposal, Microwave, Range, Stainless Steel Appliance(s) |
| AREA | New Lenox |
| BASEMENT | Daylight, Full, Unfinished, Yes |
| CONSTRUCTION | Brick, Vinyl Siding |
| GARAGE | Yes |
| HEAT | Forced Air, Natural Gas |
| HOA DUES | 500 |
| LOT | 0 |
| LOT DIMENSIONS | 11146 |
| PARKING | Asphalt, Garage Door Opener, On Site, Attached, Garage |
| SEWER | Public Sewer |
| SUBDIVISION | Calistoga |
| WATER | Public |
MORTGAGE CALCULATOR
TOTAL MONTHLY PAYMENT
0
P
I
*Estimate only
| SATELLITE VIEW |
| / | |
We respect your online privacy and will never spam you. By submitting this form with your telephone number
you are consenting for Humderto
Garcia to contact you even if your name is on a Federal or State
"Do not call List".
Listed with HomeSmart Connect LLC
The data relating to real estate for sale on this web site comes in part from the Broker ReciprocitySM Program of MRED. All real estate listings are marked with the Broker ReciprocitySM logo or the MRED Broker ReciprocitySM thumbnail logo (a little black house) and detailed information about them includes the name of the listing brokers.
The broker providing these data believes them to be correct, but advises interested parties to confirm them before relying on them in a purchase decision.
Copyright 2026 MRED. All rights reserved.

The broker providing these data believes them to be correct, but advises interested parties to confirm them before relying on them in a purchase decision.
Copyright 2026 MRED. All rights reserved.
This IDX solution is (c) Diverse Solutions 2026.