|
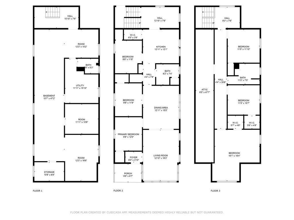
Welcome to this spacious two-story brick home offering ample room for your family or investment opportunities! Featuring seven bedrooms and 21/2 bathrooms, this home provides plenty of space to accommodate your needs. First Floor: Living room, formal dining room, updated kitchen, three bedrooms, and a full bathroom. Recent updates include modernized kitchen and bathroom, fresh paint, and revarnished floors. Second Floor: Three additional bedrooms and another full bathroom. Basement: Family room, laundry area with washer and dryer, half bath, and a versatile spare bedroom/office. Outdoor & Parking: A one-car brick garage with access to the lot south of the property, plus abundant street parking. Location: Conveniently situated between I-94, Bishop Ford, and I-57 expressways, with public transportation just minutes away. This home combines comfort, recent updates, and excellent location-making it an ideal choice for families or investors. Don't miss out on this incredible opportunity! Schedule your viewing today.
| DAYS ON MARKET | 63 | LAST UPDATED | 10/24/2025 |
|---|---|---|---|
| YEAR BUILT | 1919 | COMMUNITY | CHI - West Pullman |
| GARAGE SPACES | 1.0 | COUNTY | Cook |
| STATUS | Conditional | PROPERTY TYPE(S) | Single Family |
| ADDITIONAL DETAILS | |
| AIR | Ceiling Fan(s), Central Air |
|---|---|
| AIR CONDITIONING | Yes |
| AREA | CHI - West Pullman |
| BASEMENT | Full, Partially Finished, Yes |
| CONSTRUCTION | Brick |
| GARAGE | Yes |
| HEAT | Natural Gas |
| INTERIOR | Granite Counters |
| LOT | 6151 sq ft |
| LOT DESCRIPTION | Corner Lot |
| LOT DIMENSIONS | 25X125 |
| PARKING | No Garage, Detached, Garage |
| SEWER | Public Sewer |
| STYLE | Bungalow |
| TAXES | 1163 |
MORTGAGE CALCULATOR
TOTAL MONTHLY PAYMENT
0
P
I
*Estimate only
| SATELLITE VIEW |
| / | |
We respect your online privacy and will never spam you. By submitting this form with your telephone number
you are consenting for Humderto
Garcia to contact you even if your name is on a Federal or State
"Do not call List".
Listed with Exit Strategy Realty / EMA Management
The data relating to real estate for sale on this web site comes in part from the Broker ReciprocitySM Program of MRED. All real estate listings are marked with the Broker ReciprocitySM logo or the MRED Broker ReciprocitySM thumbnail logo (a little black house) and detailed information about them includes the name of the listing brokers.
The broker providing these data believes them to be correct, but advises interested parties to confirm them before relying on them in a purchase decision.
Copyright 2025 MRED. All rights reserved.

The broker providing these data believes them to be correct, but advises interested parties to confirm them before relying on them in a purchase decision.
Copyright 2025 MRED. All rights reserved.
This IDX solution is (c) Diverse Solutions 2025.