|
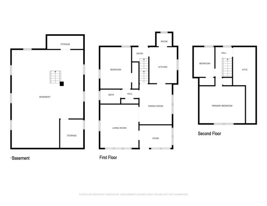
Vintage charmer! Lovingly built by a master carpenter as his bride's wedding gift with recent updates from this home's second owner. Quality construction dates back to 1932 with solid wood original cabinetry, trim, crown molding, and doors. Hardwood flooring, also under existing Kitchen vinyl, needs a little TLC. Three car garage with new concrete floor. Modern efficiencies include spray foam insulation (greatly reduced the gas cost last winter), forced heat (80% eff.), central a/c, 100 amp electrical, hot water heater 2018. New roof in 2024 with Owens Corning Duration Shingles with warranty. From the glass door knobs, mortise locksets, down to the tall baseboards the owner has respectfully and affectionately restored the charming details of yesteryear. Black Raspberry bushes thrive here and no chemicals have been used on the property for at least 10 years. Unique opportunity, 1.7 acres with residential (R3) zoning on front of property and light manufacturing (MI) on rear of property.
DAYS ON MARKET | 1 | LAST UPDATED | 10/2/2025 |
---|---|---|---|
YEAR BUILT | 1932 | COMMUNITY | Bull Valley / Greenwood / Woodstock |
GARAGE SPACES | 3.0 | COUNTY | McHenry |
STATUS | Active | PROPERTY TYPE(S) | Single Family |
School District | Woodstock High School |
---|---|
Elementary School | Westwood Elementary School |
Jr. High School | Creekside Middle School |
High School | Woodstock High School |
ADDITIONAL DETAILS | |
AIR | Central Air |
---|---|
AIR CONDITIONING | Yes |
APPLIANCES | Dryer, Range, Refrigerator, Washer |
AREA | Bull Valley / Greenwood / Woodstock |
BASEMENT | Full, Unfinished, Yes |
CONSTRUCTION | Wood Siding |
GARAGE | Yes |
HEAT | Forced Air, Natural Gas |
LOT | 1.7 acre(s) |
LOT DIMENSIONS | 145 X 514 |
PARKING | Gravel, Garage Door Opener, On Site, Detached, Garage |
SEWER | Public Sewer |
TAXES | 5632.62 |
WATER | Public |
MORTGAGE CALCULATOR
TOTAL MONTHLY PAYMENT
0
P
I
*Estimate only
SATELLITE VIEW |
/ | |
We respect your online privacy and will never spam you. By submitting this form with your telephone number
you are consenting for Humderto
Garcia to contact you even if your name is on a Federal or State
"Do not call List".
Listed with Berkshire Hathaway HomeServices Starck Real Estate
The data relating to real estate for sale on this web site comes in part from the Broker ReciprocitySM Program of MRED. All real estate listings are marked with the Broker ReciprocitySM logo or the MRED Broker ReciprocitySM thumbnail logo (a little black house) and detailed information about them includes the name of the listing brokers.
The broker providing these data believes them to be correct, but advises interested parties to confirm them before relying on them in a purchase decision.
Copyright 2025 MRED. All rights reserved.

The broker providing these data believes them to be correct, but advises interested parties to confirm them before relying on them in a purchase decision.
Copyright 2025 MRED. All rights reserved.

This IDX solution is (c) Diverse Solutions 2025.