|
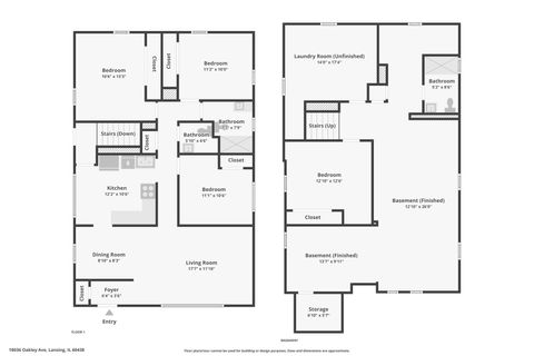
All that's left to do is move in and enjoy this beautifully renovated home with a newly installed roof! Step into the stunning kitchen, complete with brand-new stainless steel appliances, granite countertops, and modern shaker-style cabinets. The gleaming hardwood floors on the main level add warmth and charm throughout. You'll find two full bathrooms and a convenient powder room, all featuring sleek vanities, stylish light fixtures, and one beautifully tiled shower surround. The spacious finished basement offers endless possibilities, with a dedicated office, recreation room, laundry area, utility room, and plenty of storage space to keep everything organized. All new electric service inside and outside! Located just a short walk from Lan-Oak Park, this charming home in a welcoming neighborhood is ready for you to make it your own!
DAYS ON MARKET | 1 | LAST UPDATED | 10/2/2025 |
---|---|---|---|
YEAR BUILT | 1954 | COMMUNITY | Lansing |
GARAGE SPACES | 2.0 | COUNTY | Cook |
STATUS | Active | PROPERTY TYPE(S) | Single Family |
School District | Thornton Fractnl So High School |
---|---|
Elementary School | Oak Glen Elementary School |
Jr. High School | Memorial Junior High School |
High School | Thornton Fractnl So High School |
ADDITIONAL DETAILS | |
AIR | Ceiling Fan(s), Central Air |
---|---|
AIR CONDITIONING | Yes |
APPLIANCES | Dishwasher, Microwave, Range, Refrigerator, Stainless Steel Appliance(s) |
AREA | Lansing |
BASEMENT | Finished, Full, Yes |
CONSTRUCTION | Shake Siding |
GARAGE | Yes |
HEAT | Natural Gas |
INTERIOR | Granite Counters, Open Floorplan |
LOT | 5663 sq ft |
LOT DIMENSIONS | 45 x 125 |
PARKING | Concrete, On Site, Detached, Garage |
SEWER | Public Sewer |
TAXES | 5460 |
MORTGAGE CALCULATOR
TOTAL MONTHLY PAYMENT
0
P
I
*Estimate only
SATELLITE VIEW |
/ | |
We respect your online privacy and will never spam you. By submitting this form with your telephone number
you are consenting for Humderto
Garcia to contact you even if your name is on a Federal or State
"Do not call List".
Listed with Berkshire Hathaway HomeServices Chicago
The data relating to real estate for sale on this web site comes in part from the Broker ReciprocitySM Program of MRED. All real estate listings are marked with the Broker ReciprocitySM logo or the MRED Broker ReciprocitySM thumbnail logo (a little black house) and detailed information about them includes the name of the listing brokers.
The broker providing these data believes them to be correct, but advises interested parties to confirm them before relying on them in a purchase decision.
Copyright 2025 MRED. All rights reserved.

The broker providing these data believes them to be correct, but advises interested parties to confirm them before relying on them in a purchase decision.
Copyright 2025 MRED. All rights reserved.

This IDX solution is (c) Diverse Solutions 2025.