| 
 | 
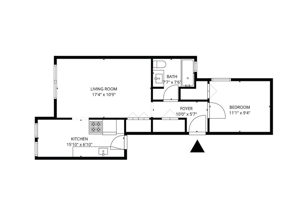
One of Buena Park's most historically significant and beautifully preserved 1920s buildings, this residence welcomes you with a grand marble foyer and indoor fountain, complemented by an exterior yard and grill area. This highly sought-after tier offers the largest one-bedroom layout in the building. The fantastic second-floor unit enjoys serene tree-lined views and features brand-new vinyl flooring, fresh paint, a spacious living room, an updated bathroom, and a kitchen with a dedicated dining area. The oversized bedroom easily accommodates a king-sized bed. Building amenities include a fitness center, laundry room, and a patio with grills-perfect for entertaining during warmer months. Enjoy the convenience of easy access to public transit, as well as the neighborhood's vibrant dining and entertainment options.
| DAYS ON MARKET | 29 | LAST UPDATED | 10/3/2025 | 
|---|---|---|---|
| YEAR BUILT | 1912 | COMMUNITY | CHI - Uptown | 
| COUNTY | Cook | STATUS | Active | 
| PROPERTY TYPE(S) | Condo/Townhouse/Co-Op | 
| ADDITIONAL DETAILS | |
| AIR | Central Air | 
|---|---|
| AIR CONDITIONING | Yes | 
| AMENITIES | Insurance, Internet, Snow Removal, Water | 
| AREA | CHI - Uptown | 
| BASEMENT | None | 
| CONSTRUCTION | Brick | 
| HEAT | Natural Gas | 
| HOA DUES | 297 | 
| LOT | 0 | 
| LOT DIMENSIONS | Condo | 
| SEWER | Public Sewer | 
| STORIES | 4 | 
| TAXES | 2320 | 
            MORTGAGE CALCULATOR
        
        TOTAL MONTHLY PAYMENT
0
                    P
                        I 
                    
            *Estimate only
        
    | SATELLITE VIEW | 
| / | |
	We respect your online privacy and will never spam you. By submitting this form with your telephone number
	you are consenting for Humderto
	Garcia to contact you even if your name is on a Federal or State
	"Do not call List".
	
    Listed with Century 21 S.G.R., Inc.
	The data relating to real estate for sale on this web site comes in part from the Broker ReciprocitySM Program of MRED. All real estate listings are marked with the Broker ReciprocitySM logo or the MRED Broker ReciprocitySM thumbnail logo (a little black house) and detailed information about them includes the name of the listing brokers.
The broker providing these data believes them to be correct, but advises interested parties to confirm them before relying on them in a purchase decision.
Copyright 2025 MRED. All rights reserved.

	
	
	
    
The broker providing these data believes them to be correct, but advises interested parties to confirm them before relying on them in a purchase decision.
Copyright 2025 MRED. All rights reserved.

This IDX solution is (c) Diverse Solutions 2025.
 
				 Twitter
									        Twitter Facebook
									        Facebook Email
									        Email 
									 
									 
									 
									 
									 
									 
									 
									 
									 
									 
									 
									 
									 
									 
									 
									 
									 
									 
									 
									 
									 
									 
									