|
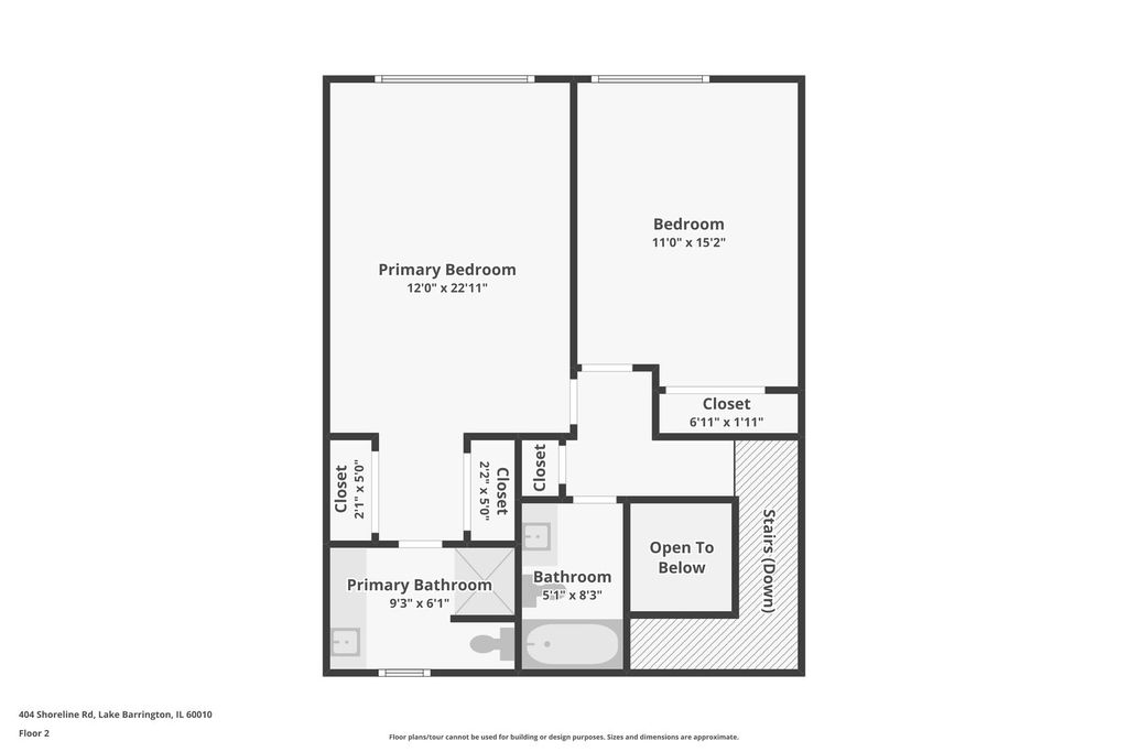
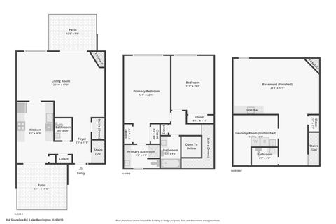
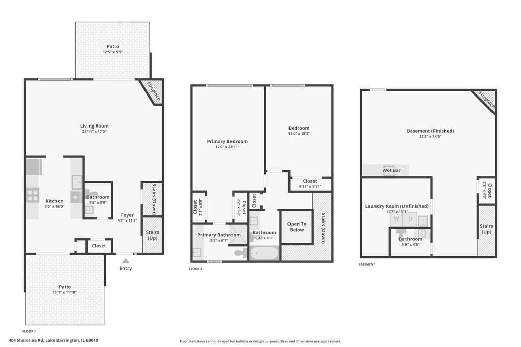
Resort-style living awaits in this highly desirable two-story townhouse perfectly positioned on the 8th tee of Lake Barrington Shores! Step inside to a freshly painted, well-maintained home with brand-new carpet and three full levels of living space. Enjoy your own private brick paver patio overlooking expansive golf course views-ideal for morning coffee or evening sunsets. The lower level offers a newly painted and carpeted family room with a cozy fireplace, half bath, laundry, and abundant storage space. Conveniently located just a short stroll from the marina, golf clubhouse, and activity center, this home places you in the heart of the community. Lake Barrington Shores is a premier, 24-hour gated community where every day feels like vacation. Residents enjoy a 100-acre private lake with marina access for kayaks, canoes, and sailboats, as well as a sandy beach, tennis, paddle, and pickleball courts, plus shuffleboard and bocce. The newly remodeled activity center features indoor and outdoor pools, a spa, fitness center, library, lounge, ballroom, and more. Nature lovers will appreciate the 37-acre private forest preserve and a scenic 3-mile walking and biking trail around the lake-located right across from your front door. This is more than a home-it's a lifestyle. Come experience Lake Barrington Shores for yourself!
DAYS ON MARKET | 1 | LAST UPDATED | 10/4/2025 |
---|---|---|---|
TRACT | Lake Barrington Shores | YEAR BUILT | 1978 |
COMMUNITY | Barrington Area | GARAGE SPACES | 1.0 |
COUNTY | Lake | STATUS | Active |
PROPERTY TYPE(S) | Condo/Townhouse/Co-Op |
School District | Barrington High School |
---|---|
Elementary School | North Barrington Elementary Scho |
Jr. High School | Barrington Middle School-Prairie |
High School | Barrington High School |
ADDITIONAL DETAILS | |
AIR | Ceiling Fan(s), Central Air |
---|---|
AIR CONDITIONING | Yes |
AMENITIES | Insurance, Internet, Security, Snow Removal, Water |
APPLIANCES | Bar Fridge, Dishwasher, Disposal, Dryer, Humidifier, Microwave, Range, Refrigerator, Stainless Steel Appliance(s), Washer, Water Softener |
AREA | Barrington Area |
BASEMENT | Finished, Full, Yes |
CONSTRUCTION | Cedar |
EXTERIOR | Dock |
FIREPLACE | Yes |
GARAGE | Yes |
HEAT | Electric, Forced Air |
HOA DUES | 570 |
INTERIOR | Entrance Foyer, Storage, Wet Bar |
LOT | 0 |
LOT DESCRIPTION | On Golf Course |
LOT DIMENSIONS | 0 x 0 |
PARKING | Asphalt, Garage Door Opener, On Site, Detached, Garage |
SEWER | Public Sewer |
STORIES | 2 |
SUBDIVISION | Lake Barrington Shores |
TAXES | 6959 |
UTILITIES | Cable Available |
VIEW | Yes |
VIEW DESCRIPTION | Water |
WATER | Shared Well |
WATERFRONT DESCRIPTION | Pond |
MORTGAGE CALCULATOR
TOTAL MONTHLY PAYMENT
0
P
I
*Estimate only
SATELLITE VIEW |
/ | |
We respect your online privacy and will never spam you. By submitting this form with your telephone number
you are consenting for Humderto
Garcia to contact you even if your name is on a Federal or State
"Do not call List".
Listed with Compass
The data relating to real estate for sale on this web site comes in part from the Broker ReciprocitySM Program of MRED. All real estate listings are marked with the Broker ReciprocitySM logo or the MRED Broker ReciprocitySM thumbnail logo (a little black house) and detailed information about them includes the name of the listing brokers.
The broker providing these data believes them to be correct, but advises interested parties to confirm them before relying on them in a purchase decision.
Copyright 2025 MRED. All rights reserved.

The broker providing these data believes them to be correct, but advises interested parties to confirm them before relying on them in a purchase decision.
Copyright 2025 MRED. All rights reserved.

This IDX solution is (c) Diverse Solutions 2025.