|
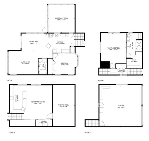
Welcome to your dream lakefront retreat, presented with a rare opportunity to own the iconic Tiki Bar Lake House! Nestled along the shores of the largest private lake in the entire state, this stunning property offers the perfect combination of serene natural beauty and prime entertainment space on a DOUBLE LOT connected to private sandy beach access, a massive tiki bar surrounded by a 2-tiered deck, sunbathing rooftop above the boat house, screened-in porch, fully stocked basement bar, and private movie theater. Imagine waking to the tranquil waters, the sun glistening off the shoreline, and knowing both beach and boat access are yours, within a community where families thrive, wildlife flourishes, and recreation is a part of daily life. Whether you are fishing for walleye, enjoying a sailboat race, professional water-ski show, or simply sharing sunset views from your deck, this lakefront home is an invitation to make Wonder Lake your everyday paradise. Enter through the front foyer into an open floor plan filled with natural light from large windows that bring the panoramic lake views right into your home. The updated kitchen is designed for both style and function, while the cozy living room with its warm ambiance is ideal for gathering with family and friends with an extension of entertainment space on the attached screened-in porch. The primary suite offers breathtaking views of the lake, has a private bathroom with an oversized spa-like steam shower, and a 9x9 walk-in closet. The finished basement has potential for a 3rd bedroom if needed and a theater room where your private cinema awaits. Escape to your own high-tech, soundproofed space equipped with state-of-the-art surround sound and massive projection screen for the ultimate movie night or epic sporting events while the tiered seating ensures every guest has the best view in the house. Another highlight of the basement is the stunning log cabin bar where rustic charm meets modern function crafted with rich-toned wood throughout, giving a cozy log cabin feel with the high-end functionality of a commercial establishment having its own built-in coolers, restaurant style ice-maker, mini fridge, and surround sound speaker system within the walls and ceiling. In the back yard, experience the ultimate in lakeside living with the extraordinary outdoor bar and deck. The professional-grade bar is a focal point for entertaining, complete with ample counter space for serving guests. Descend from the main level to a spacious lower deck that flows naturally toward the water's edge, offering easy access for lakeside activities. Custom features, including built-in speakers, tiki torches, refrigerated commercial coolers and deep sink, ensure a comfortable and inviting atmosphere that comes to life after sunset. This property is perfect for hosting memorable parties, intimate gatherings, or simply enjoying a tranquil sunset over the water. The additional boat house is perfect for storage and has rooftop access for sunbathing. The wide driveway allows for boat/trailer parking with additional parking space on the gravel to the right of the driveway. Wonder Lake spans nearly 840 acres and offers 7 miles of shoreline providing ample opportunity for boating, swimming, and water sports with a maximum depth of 14 feet, ideal for a variety of water activities. A major dredging effort in 2015 removed mass amounts of sediment to enhance the depth and water quality adding roughly 100 acres of cleaner, deeper water. The Wonder Lake Yacht Club hosts regular sailboat races, and the Water Ski Show Team performs nationally award-winning shows every summer. Whether you are looking for a forever home, vacation home, or investment property for Airbnb/Vrbo short-term rentals, this property offers it all!
DAYS ON MARKET | 1 | LAST UPDATED | 10/5/2025 |
---|---|---|---|
TRACT | Wonder Woods | YEAR BUILT | 1940 |
COMMUNITY | Wonder Lake | GARAGE SPACES | 2.0 |
COUNTY | McHenry | STATUS | Active |
PROPERTY TYPE(S) | Single Family |
School District | Woodstock North High School |
---|---|
Elementary School | Greenwood Elementary School |
Jr. High School | Northwood Middle School |
High School | Woodstock North High School |
ADDITIONAL DETAILS | |
AIR | Central Air |
---|---|
AIR CONDITIONING | Yes |
AREA | Wonder Lake |
BASEMENT | Finished, Partial, Yes |
CONSTRUCTION | Aluminum Siding |
EXTERIOR | Boat Slip, Dock, Fire Pit |
GARAGE | Yes |
HEAT | Forced Air, Natural Gas |
INTERIOR | Open Floorplan, Pantry, Vaulted Ceiling(s), Walk-In Closet(s), Wet Bar |
LOT | 0.4 acre(s) |
LOT DIMENSIONS | 98X156 |
PARKING | On Site, Attached, Garage |
SEWER | Septic Tank |
SUBDIVISION | Wonder Woods |
TAXES | 13974.8 |
VIEW | Yes |
VIEW DESCRIPTION | Water |
WATER | Well |
WATERFRONT | Yes |
WATERFRONT DESCRIPTION | Beach Access, Lake Front, Lake Privileges, Waterfront |
MORTGAGE CALCULATOR
TOTAL MONTHLY PAYMENT
0
P
I
*Estimate only
SATELLITE VIEW |
/ | |
We respect your online privacy and will never spam you. By submitting this form with your telephone number
you are consenting for Humderto
Garcia to contact you even if your name is on a Federal or State
"Do not call List".
Listed with Century 21 Integra
The data relating to real estate for sale on this web site comes in part from the Broker ReciprocitySM Program of MRED. All real estate listings are marked with the Broker ReciprocitySM logo or the MRED Broker ReciprocitySM thumbnail logo (a little black house) and detailed information about them includes the name of the listing brokers.
The broker providing these data believes them to be correct, but advises interested parties to confirm them before relying on them in a purchase decision.
Copyright 2025 MRED. All rights reserved.

The broker providing these data believes them to be correct, but advises interested parties to confirm them before relying on them in a purchase decision.
Copyright 2025 MRED. All rights reserved.

This IDX solution is (c) Diverse Solutions 2025.