|
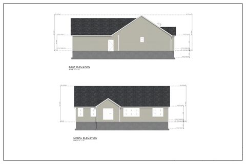
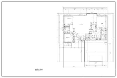
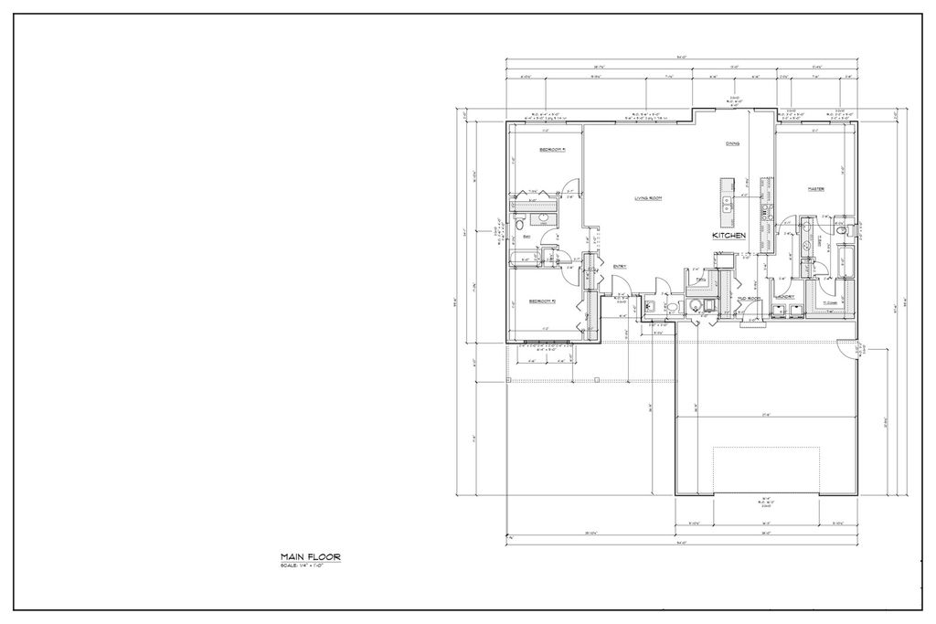
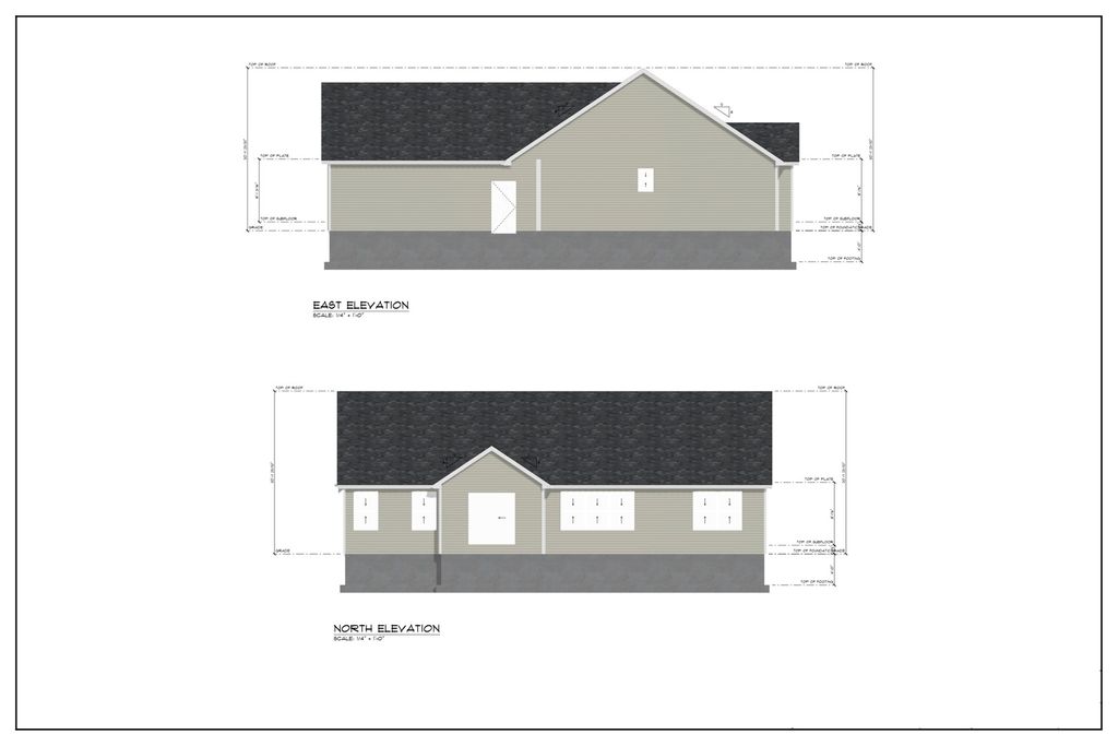
Come check out this latest new construction in Heritage West Subdivision which provides a popular 1 story, split bedroom floor plan, 1700 sq ft, 3 bedrooms, and 2.5 bathrooms. The house is built with 2x6 exterior framing, 3 inches of closed cell foam insulation in the walls and cellulose blown in insulation in the attic. Quality was kept in mind with every aspect of this build. The master bedroom features a spacious bathroom, double vanity, a tiled shower as well as a walk in closet. The split bedroom design includes a bathroom on the opposite side of the house for convenience for everyone. As you walk into this house you are greeted with a large open concept living room to the kitchen. The kitchen provides a large island for eating, as well as an area for dining. Don't forget to check out the pantry with extra cabinet and countertop storage space! Outdoor entertaining will be a plus whether on the back patio or large front porch. The oversized garage also will allow extra storage space if you need any extra.
DAYS ON MARKET | 1 | LAST UPDATED | 10/5/2025 |
---|---|---|---|
YEAR BUILT | 2025 | COMMUNITY | Northern Champaign County / Ford County |
GARAGE SPACES | 2.0 | COUNTY | Champaign |
STATUS | Active | PROPERTY TYPE(S) | Single Family |
School District | Fisher Jr./Sr. High School |
---|---|
Elementary School | Fisher Grade School |
Jr. High School | Fisher Jr./Sr. High School |
High School | Fisher Jr./Sr. High School |
ADDITIONAL DETAILS | |
AIR | Central Air |
---|---|
AIR CONDITIONING | Yes |
AREA | Northern Champaign County / Ford County |
BASEMENT | Crawl Space, Sump Pump |
CONSTRUCTION | Vinyl Siding |
GARAGE | Yes |
HEAT | Electric, Natural Gas |
LOT | 0 |
LOT DIMENSIONS | 123 x 82 |
PARKING | Concrete, Attached, Garage |
SEWER | Public Sewer |
TAXES | 13 |
WATER | Public |
MORTGAGE CALCULATOR
TOTAL MONTHLY PAYMENT
0
P
I
*Estimate only
SATELLITE VIEW |
/ | |
We respect your online privacy and will never spam you. By submitting this form with your telephone number
you are consenting for Humderto
Garcia to contact you even if your name is on a Federal or State
"Do not call List".
Listed with Brenda Keith Realty INC
The data relating to real estate for sale on this web site comes in part from the Broker ReciprocitySM Program of MRED. All real estate listings are marked with the Broker ReciprocitySM logo or the MRED Broker ReciprocitySM thumbnail logo (a little black house) and detailed information about them includes the name of the listing brokers.
The broker providing these data believes them to be correct, but advises interested parties to confirm them before relying on them in a purchase decision.
Copyright 2025 MRED. All rights reserved.

The broker providing these data believes them to be correct, but advises interested parties to confirm them before relying on them in a purchase decision.
Copyright 2025 MRED. All rights reserved.

This IDX solution is (c) Diverse Solutions 2025.