|
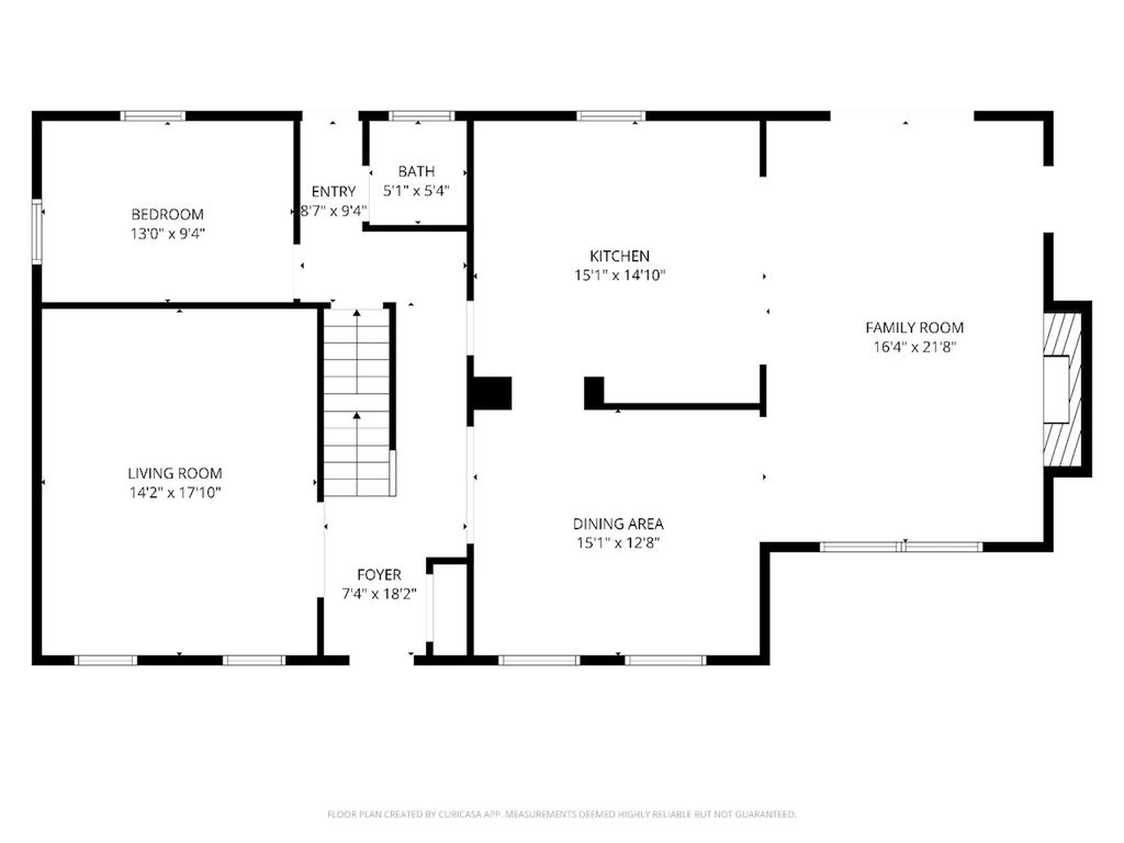
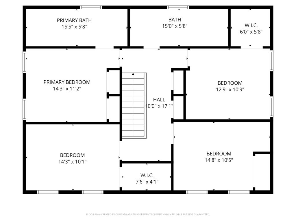
Act quickly on this opportunity in Naperville's sought-after Century Hill subdivision. This four-bedroom home (could easily be five-bedroom above grade) with 2.1 baths offers an impressive 2,700 square feet of living space, a highly desirable floor plan, and updates that make it immediately move-in ready. Within the boundaries of Naperville's acclaimed District 203 schools, the property also offers quick minutes-away access to downtown Naperville, the Metra, local parks, major expressways and more. Upon entry, the first floor is anchored by a comfortable flow between living, dining, and gathering spaces. A flexible front room with French doors can serve as a formal home office, playroom, and second living room, while the dining room is sized to handle both everyday meals and larger occasions. The open kitchen and living room form the true heart of this home, featuring a cozy fireplace and new sliding doors that extend the living area onto a generous backyard patio that is perfect for seamless indoor-outdoor living. A bonus room on the main level creates an option for a true fifth bedroom, second office, or den, while a guest bath adds convenience. Upstairs, the primary suite is complemented by incredible natural light, its own private bath, and walk-in closet space. Three additional bedrooms and a spacious hall bath complete this level, offering comfortable proportions and versatility for family and guests alike. The finished lower level adds more usable square footage, with a large recreation room ready for game nights or play time, a dedicated laundry area, and abundant storage. Recent updates include a smart thermostat, a partial roof replacement, and ongoing improvements that enhance comfort and efficiency. The lot's natural elevation provides homeowners peace of mind and ensures a dry foundation, while the patio and backyard create a private outdoor retreat. What truly sets this home apart, however, is its rich community setting. With no through traffic, neighbors who look out for each other, and children walking to the bus stop just down the street, the location fosters connection and everyday ease that's hard to replicate in other areas across the suburbs. With its impressive square footage, adaptable layout, and neighborhood appeal, this Century Hill residence balances function, comfort, and community in one of Naperville's most desirable enclaves. Don't miss out!
| DAYS ON MARKET | 50 | LAST UPDATED | 10/13/2025 |
|---|---|---|---|
| TRACT | Century Hill | YEAR BUILT | 1966 |
| COMMUNITY | Naperville | GARAGE SPACES | 2.0 |
| COUNTY | DuPage | STATUS | Active |
| PROPERTY TYPE(S) | Single Family |
| School District | Naperville North High School |
|---|---|
| Elementary School | Prairie Elementary School |
| Jr. High School | Washington Junior High School |
| High School | Naperville North High School |
| ADDITIONAL DETAILS | |
| AIR | Central Air |
|---|---|
| AIR CONDITIONING | Yes |
| APPLIANCES | Dishwasher, Disposal, Dryer, Microwave, Range, Refrigerator, Washer |
| AREA | Naperville |
| BASEMENT | Full, Partially Finished, Yes |
| CONSTRUCTION | Aluminum Siding, Brick |
| FIREPLACE | Yes |
| GARAGE | Yes |
| HEAT | Forced Air, Natural Gas |
| LOT | 0.3133 acre(s) |
| LOT DIMENSIONS | 87X141X111X134 |
| PARKING | Asphalt, On Site, Attached, Garage |
| SEWER | Public Sewer |
| STYLE | Colonial |
| SUBDIVISION | Century Hill |
| TAXES | 9747.24 |
MORTGAGE CALCULATOR
TOTAL MONTHLY PAYMENT
0
P
I
*Estimate only
| SATELLITE VIEW |
| / | |
We respect your online privacy and will never spam you. By submitting this form with your telephone number
you are consenting for Humderto
Garcia to contact you even if your name is on a Federal or State
"Do not call List".
Listed with Vesta Preferred LLC
The data relating to real estate for sale on this web site comes in part from the Broker ReciprocitySM Program of MRED. All real estate listings are marked with the Broker ReciprocitySM logo or the MRED Broker ReciprocitySM thumbnail logo (a little black house) and detailed information about them includes the name of the listing brokers.
The broker providing these data believes them to be correct, but advises interested parties to confirm them before relying on them in a purchase decision.
Copyright 2025 MRED. All rights reserved.

The broker providing these data believes them to be correct, but advises interested parties to confirm them before relying on them in a purchase decision.
Copyright 2025 MRED. All rights reserved.
This IDX solution is (c) Diverse Solutions 2025.