|
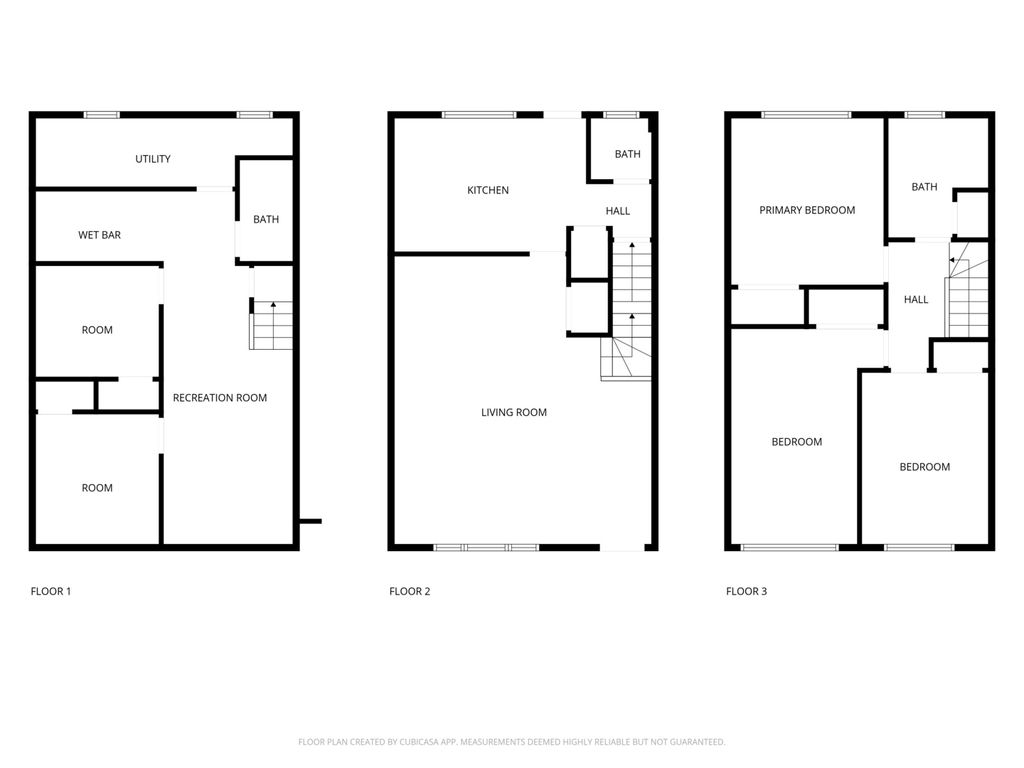
Welcome home to this rare and spacious townhouse in the heart of Rogers Park. Featuring three bedrooms on the upper floors and two additional rooms in the fully finished basement, this home offers exceptional space and flexibility for family living or guests. The main level features an open living and dining area filled with natural light, along with a cozy eat-in kitchen perfect for everyday meals. The basement includes a comfortable living space-ideal for extended family, entertaining, or a private home office. Parking is conveniently included. Enjoy the best of city living just steps from Loyola University, several beautiful Chicago beaches, and the CTA Red Line. You'll also find nearby schools, banks, places of worship, and the Rogers Park Public Library-all within easy walking distance.
DAYS ON MARKET | 1 | LAST UPDATED | 10/6/2025 |
---|---|---|---|
YEAR BUILT | 1960 | COMMUNITY | CHI - Rogers Park |
COUNTY | Cook | STATUS | Active |
PROPERTY TYPE(S) | Condo/Townhouse/Co-Op |
ADDITIONAL DETAILS | |
AIR | Central Air |
---|---|
AIR CONDITIONING | Yes |
AREA | CHI - Rogers Park |
BASEMENT | Finished, Full, Yes |
CONSTRUCTION | Brick |
HEAT | Forced Air |
LOT | 0 |
LOT DIMENSIONS | 20.87X50 |
PARKING | Assigned, On Site |
SEWER | Public Sewer |
STORIES | 2 |
TAXES | 4229 |
MORTGAGE CALCULATOR
TOTAL MONTHLY PAYMENT
0
P
I
*Estimate only
SATELLITE VIEW |
/ | |
We respect your online privacy and will never spam you. By submitting this form with your telephone number
you are consenting for Humderto
Garcia to contact you even if your name is on a Federal or State
"Do not call List".
Listed with RE/MAX Premier
The data relating to real estate for sale on this web site comes in part from the Broker ReciprocitySM Program of MRED. All real estate listings are marked with the Broker ReciprocitySM logo or the MRED Broker ReciprocitySM thumbnail logo (a little black house) and detailed information about them includes the name of the listing brokers.
The broker providing these data believes them to be correct, but advises interested parties to confirm them before relying on them in a purchase decision.
Copyright 2025 MRED. All rights reserved.

The broker providing these data believes them to be correct, but advises interested parties to confirm them before relying on them in a purchase decision.
Copyright 2025 MRED. All rights reserved.

This IDX solution is (c) Diverse Solutions 2025.