|
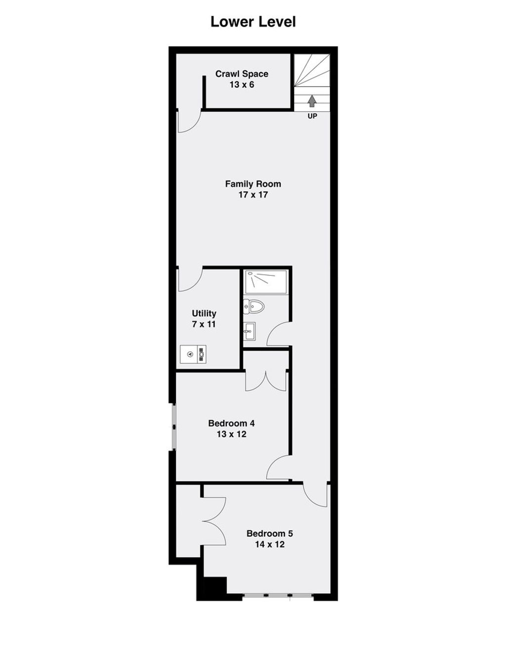
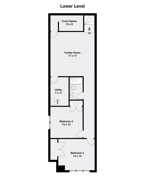
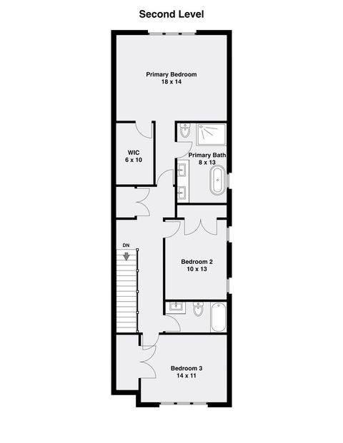
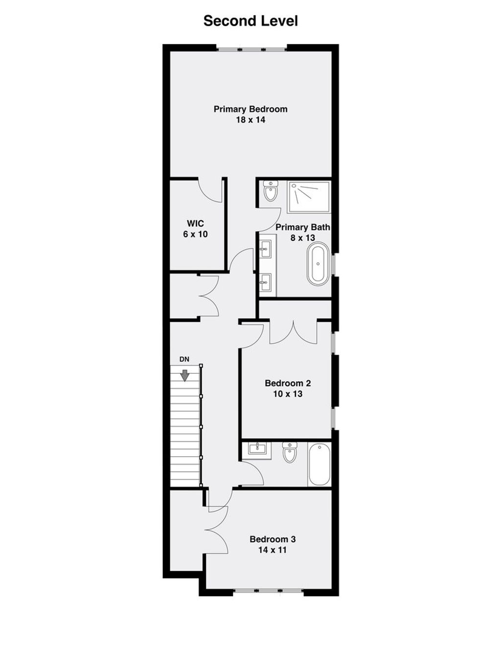
Modern 5 bed, 3.1 bath new construction home! Sharp facade with white and black Hardie siding and stone accents. Open concept floor plan with great natural light. Spacious combined living/dining area with large front window. Eat-in kitchen with Cafe appliances, shaker cabinetry with glass transoms, large center island with waterfall counter and bar seating, and pantry. Adjoining family room with electric fireplace. Rear mudroom with exit to backyard. Sun-filled primary suite with vaulted ceiling, large WIC, and private bath featuring a frameless glass shower, freestanding tub, and dual sinks. Two additional bedrooms, hall bath with tub, and laundry complete the upper level. Finished lower level includes a spacious recreation room with wet bar, two bedrooms, full bath, and utilities. Great outdoor space! Fully enclosed yard with back deck and detached two-car garage. Conveniently located near restaurants, entertainment, shopping, public transportation and parks!
DAYS ON MARKET | 3 | LAST UPDATED | 10/7/2025 |
---|---|---|---|
YEAR BUILT | 2025 | COMMUNITY | CHI - Albany Park |
GARAGE SPACES | 2.0 | COUNTY | Cook |
STATUS | Active | PROPERTY TYPE(S) | Single Family |
ADDITIONAL DETAILS | |
AIR | Central Air |
---|---|
AIR CONDITIONING | Yes |
APPLIANCES | Dishwasher, Disposal, Dryer, Humidifier, Microwave, Range, Range Hood, Refrigerator, Washer, Wine Refrigerator |
AREA | CHI - Albany Park |
BASEMENT | Finished, Full, Sump Pump, Yes |
CONSTRUCTION | Fiber Cement, Stone |
FIREPLACE | Yes |
GARAGE | Yes |
HEAT | Forced Air, Natural Gas |
INTERIOR | Walk-In Closet(s), Wet Bar |
LOT | 0 |
LOT DIMENSIONS | 25 x 125 |
PARKING | Garage Door Opener, On Site, Detached, Garage |
SEWER | Public Sewer |
WATER | Public |
MORTGAGE CALCULATOR
TOTAL MONTHLY PAYMENT
0
P
I
*Estimate only
SATELLITE VIEW |
/ | |
We respect your online privacy and will never spam you. By submitting this form with your telephone number
you are consenting for Humderto
Garcia to contact you even if your name is on a Federal or State
"Do not call List".
Listed with Jameson Sotheby's Intl Realty
The data relating to real estate for sale on this web site comes in part from the Broker ReciprocitySM Program of MRED. All real estate listings are marked with the Broker ReciprocitySM logo or the MRED Broker ReciprocitySM thumbnail logo (a little black house) and detailed information about them includes the name of the listing brokers.
The broker providing these data believes them to be correct, but advises interested parties to confirm them before relying on them in a purchase decision.
Copyright 2025 MRED. All rights reserved.

The broker providing these data believes them to be correct, but advises interested parties to confirm them before relying on them in a purchase decision.
Copyright 2025 MRED. All rights reserved.

This IDX solution is (c) Diverse Solutions 2025.