|
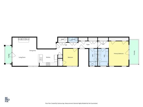
Located on a picturesque tree-lined street, this timeless brick building-completed in 2005 with thoughtful attention to detail-combines classic craftsmanship with modern comfort. Step inside to a spacious living room featuring a gas-start wood-burning fireplace with a marble surround and custom mantle, creating a warm and inviting focal point. The adjoining balcony overlooks mature trees, offering a serene spot to unwind or entertain. The open-concept kitchen is fully upgraded with stainless steel appliances, granite countertops, an abundance of custom cabinetry, and a spacious pantry for additional storage. A breakfast bar opens to the living area, providing an ideal layout for everyday living and hosting. The primary suite is a true retreat, featuring a private balcony, excellent closet space, and a spa-inspired bath with a double vanity, jetted tub with body sprays, and a second vanity with extra storage. The second bedroom is generously sized with a walk-in closet, and the second full bath offers luxurious finishes and a steam shower with multiple body sprays. Elegant finishes continue throughout the home, including Brazilian Cherrywood floors with inlay, solid-core wood doors, surround sound wiring, and custom millwork with crown molding. The thoughtful floor plan provides exceptional interior storage, a full-size laundry area with a large utility sink, and an overall sense of warmth and quality that's hard to find. This well-maintained, self-managed boutique building is known for its quality construction and quiet, residential feel. Assessments remain low, and the property is pet-friendly. One exterior parking space is included. Enjoy an unbeatable Lakeview location close to the Southport Corridor, Wrigley Field, and the lakefront, with easy access to the Brown, Purple, and Red Line trains, plus countless restaurants, cafes, and neighborhood boutiques all within a short walk.
DAYS ON MARKET | 2 | LAST UPDATED | 10/9/2025 |
---|---|---|---|
YEAR BUILT | 2005 | COMMUNITY | CHI - Lake View |
COUNTY | Cook | STATUS | Active |
PROPERTY TYPE(S) | Condo/Townhouse/Co-Op |
ADDITIONAL DETAILS | |
AIR | Ceiling Fan(s), Central Air |
---|---|
AIR CONDITIONING | Yes |
AMENITIES | Insurance, Snow Removal, Water |
APPLIANCES | Dishwasher, Disposal, Dryer, Humidifier, Microwave, Range, Refrigerator, Stainless Steel Appliance(s), Washer |
AREA | CHI - Lake View |
BASEMENT | None |
CONSTRUCTION | Block, Brick |
EXTERIOR | Balcony |
FIREPLACE | Yes |
HEAT | Forced Air, Natural Gas |
HOA DUES | 178 |
LOT | 0 |
LOT DIMENSIONS | COMMON |
PARKING | Concrete, Assigned, On Site |
SEWER | Public Sewer |
STORIES | 4 |
TAXES | 9217 |
WATER | Public |
MORTGAGE CALCULATOR
TOTAL MONTHLY PAYMENT
0
P
I
*Estimate only
SATELLITE VIEW |
/ | |
We respect your online privacy and will never spam you. By submitting this form with your telephone number
you are consenting for Humderto
Garcia to contact you even if your name is on a Federal or State
"Do not call List".
Listed with Keller Williams ONEChicago
The data relating to real estate for sale on this web site comes in part from the Broker ReciprocitySM Program of MRED. All real estate listings are marked with the Broker ReciprocitySM logo or the MRED Broker ReciprocitySM thumbnail logo (a little black house) and detailed information about them includes the name of the listing brokers.
The broker providing these data believes them to be correct, but advises interested parties to confirm them before relying on them in a purchase decision.
Copyright 2025 MRED. All rights reserved.

The broker providing these data believes them to be correct, but advises interested parties to confirm them before relying on them in a purchase decision.
Copyright 2025 MRED. All rights reserved.

This IDX solution is (c) Diverse Solutions 2025.