|
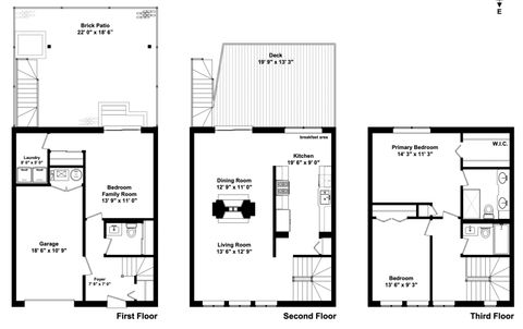
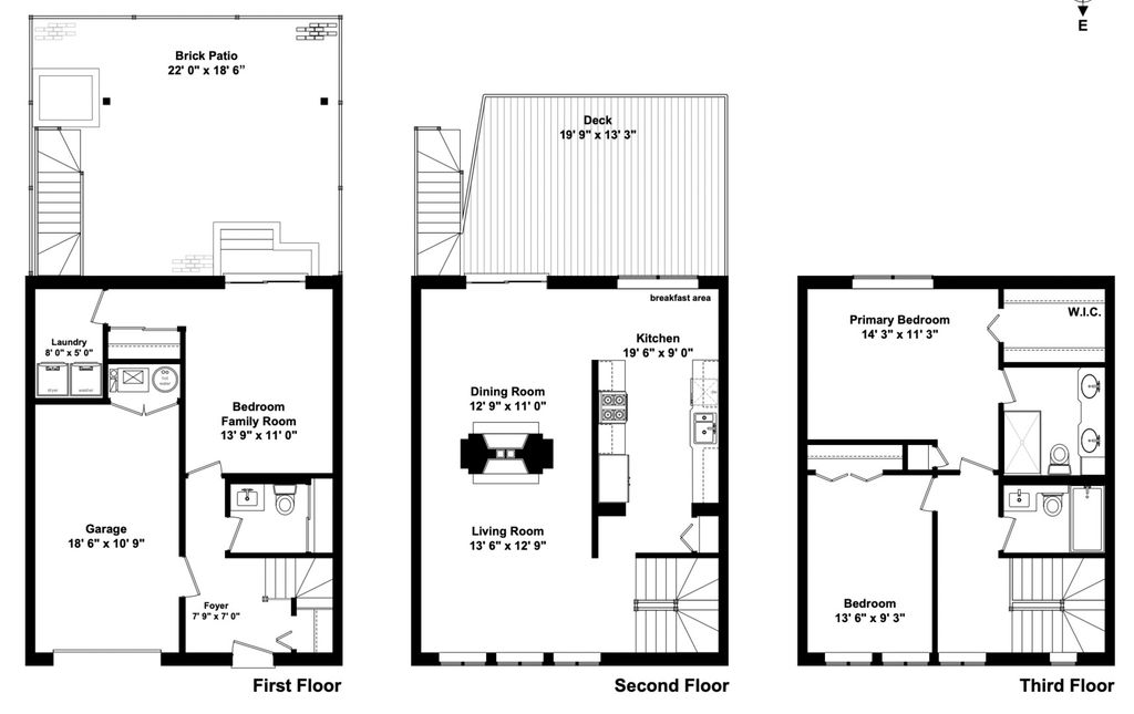
Nestled on a charming tree-lined street in the highly sought-after Oscar Mayer school district, this thoughtfully maintained fee simple townhouse blends timeless design with modern upgrades. Designed by Booth Hansen, the home offers bright, inviting living spaces across three levels. The main level features rich hardwood floors, a dual-sided gas fireplace, and an open layout that connects living and dining areas. The eat-in kitchen has been updated with some new high-end appliances, custom cabinetry, granite countertops, and a tasteful backsplash, flowing seamlessly to an outdoor deck which is perfect for entertaining, grilling, or enjoying peaceful evenings outdoors. Upstairs, the primary suite offers a spacious walk-in closet and a spa-like bathroom with a glass-enclosed walk-in shower and refined finishes. A second bedroom enjoys serene tree-lined views, accompanied by a beautifully renovated bathroom with fresh grout work. The lower level offers a flexible space ideal for an office, guest room, or den, along with a powder room (plumbed for a conversion to a full bath). This level opens to a paved, covered outdoor area designed for year-round enjoyment. Additional upgrades include fresh paint and trim throughout, a new washer, updated electrical work, and a refreshed deck with new stairs. Located just steps from Oscar Mayer Elementary, the 606, Armitage EL, and the Clybourn Metra, the home offers unparalleled access to neighborhood favorites including Trader Joe's, Whole Foods, Pequod's Pizza, and a vibrant selection of local shops and restaurants.
DAYS ON MARKET | 0 | LAST UPDATED | 10/10/2025 |
---|---|---|---|
YEAR BUILT | 1988 | COMMUNITY | CHI - Lincoln Park |
GARAGE SPACES | 1.0 | COUNTY | Cook |
STATUS | Conditional | PROPERTY TYPE(S) | Condo/Townhouse/Co-Op |
ADDITIONAL DETAILS | |
AIR | Ceiling Fan(s), Central Air |
---|---|
AIR CONDITIONING | Yes |
APPLIANCES | Humidifier |
AREA | CHI - Lincoln Park |
BASEMENT | None |
CONSTRUCTION | Brick |
FIREPLACE | Yes |
GARAGE | Yes |
HEAT | Natural Gas |
LOT | 0 |
LOT DIMENSIONS | 1700 |
PARKING | Concrete, Garage Door Opener, On Site, Attached, Driveway, Garage |
SEWER | Public Sewer |
STORIES | 3 |
TAXES | 13647.59 |
MORTGAGE CALCULATOR
TOTAL MONTHLY PAYMENT
0
P
I
*Estimate only
SATELLITE VIEW |
/ | |
We respect your online privacy and will never spam you. By submitting this form with your telephone number
you are consenting for Humderto
Garcia to contact you even if your name is on a Federal or State
"Do not call List".
Listed with @properties Christie's International Real Estate
The data relating to real estate for sale on this web site comes in part from the Broker ReciprocitySM Program of MRED. All real estate listings are marked with the Broker ReciprocitySM logo or the MRED Broker ReciprocitySM thumbnail logo (a little black house) and detailed information about them includes the name of the listing brokers.
The broker providing these data believes them to be correct, but advises interested parties to confirm them before relying on them in a purchase decision.
Copyright 2025 MRED. All rights reserved.

The broker providing these data believes them to be correct, but advises interested parties to confirm them before relying on them in a purchase decision.
Copyright 2025 MRED. All rights reserved.

This IDX solution is (c) Diverse Solutions 2025.