|
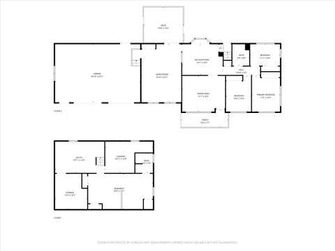
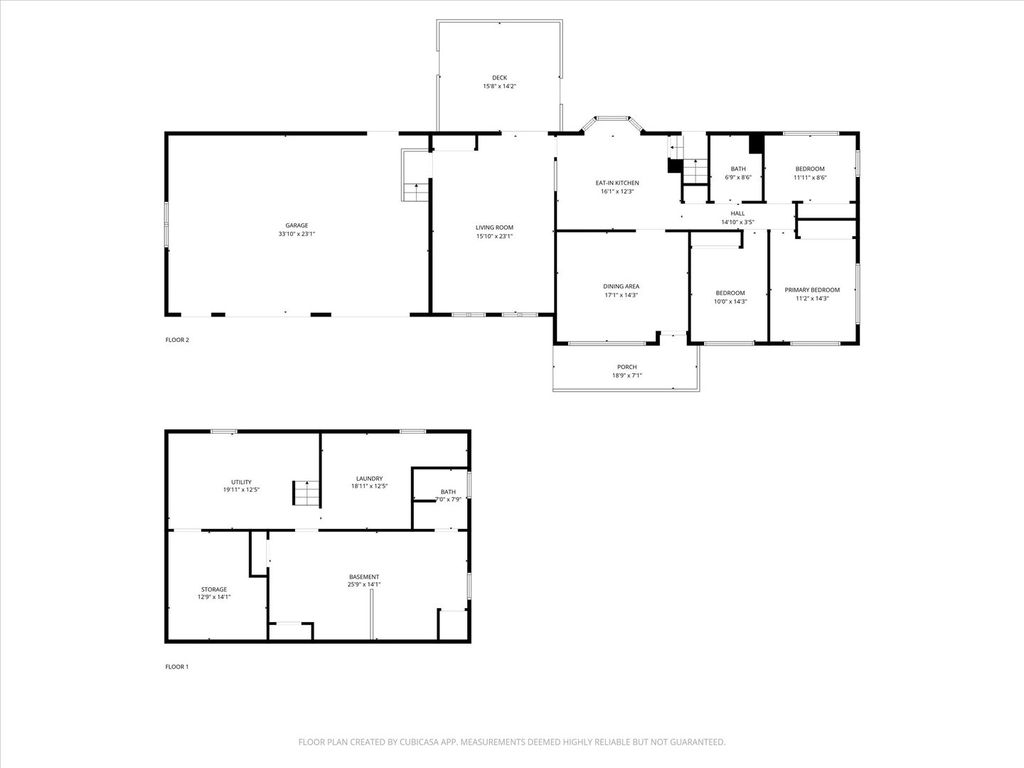
Welcome to 105 South Street! This charming ranch- style home is located in a great neighborhood and in the top-rated Meridian Community School District. Situated on an expansive lot with mature trees, this home has been meticulously and lovingly cared for by the same owner for 40 years. As you make your way inside, you are welcomed by a spacious dining room with bamboo floors and great natural light. The eat in kitchen offers plenty of counter space and cabinet space. Off the kitchen is a large living room perfect for family gatherings. The main floor is rounded out with 3 bedrooms and 1 full bathroom. The unfinished basement has fantastic potential and is great for storage or additional living space. The basement also offers a second bathroom that is plumbed and ready for the new owner to add in a sink and toilet. Outdoors, enjoy lots of green space and the quiet neighborhood on your front porch sipping your morning coffee, or on the backyard deck grilling out dinner. The generously sized 2 car-attached garage and storage shed are perfect for all your vehicle and lawn care needs. This home blends comfort, functionality, and charm. Don't miss out on this incredible opportunity to own this delightful home! Additional features include: Resealed Driveway (2025), Front Porch and Backyard Deck Painted (2025), Roof, Gutters, & Soffit (2015), Central Air (2015), and a Generator.
DAYS ON MARKET | 2 | LAST UPDATED | 10/9/2025 |
---|---|---|---|
YEAR BUILT | 1955 | COMMUNITY | Monroe Center |
GARAGE SPACES | 2.0 | COUNTY | Ogle |
STATUS | Active | PROPERTY TYPE(S) | Single Family |
School District | Stillman Valley High School |
---|---|
Elementary School | Monroe Center School |
Jr. High School | Meridian Jr. High School |
High School | Stillman Valley High School |
ADDITIONAL DETAILS | |
AIR | Central Air |
---|---|
AIR CONDITIONING | Yes |
APPLIANCES | Dishwasher, Microwave, Range, Refrigerator, Water Softener Owned |
AREA | Monroe Center |
BASEMENT | Full, Unfinished, Yes |
CONSTRUCTION | Vinyl Siding |
GARAGE | Yes |
HEAT | Baseboard, Steam |
LOT | 0.75 acre(s) |
LOT DIMENSIONS | 230X166 |
PARKING | Asphalt, Garage Door Opener, On Site, Attached, Garage |
SEWER | Public Sewer |
STYLE | Ranch |
TAXES | 4423 |
WATER | Well |
MORTGAGE CALCULATOR
TOTAL MONTHLY PAYMENT
0
P
I
*Estimate only
SATELLITE VIEW |
/ | |
We respect your online privacy and will never spam you. By submitting this form with your telephone number
you are consenting for Humderto
Garcia to contact you even if your name is on a Federal or State
"Do not call List".
Listed with Keller Williams Realty Signature
The data relating to real estate for sale on this web site comes in part from the Broker ReciprocitySM Program of MRED. All real estate listings are marked with the Broker ReciprocitySM logo or the MRED Broker ReciprocitySM thumbnail logo (a little black house) and detailed information about them includes the name of the listing brokers.
The broker providing these data believes them to be correct, but advises interested parties to confirm them before relying on them in a purchase decision.
Copyright 2025 MRED. All rights reserved.

The broker providing these data believes them to be correct, but advises interested parties to confirm them before relying on them in a purchase decision.
Copyright 2025 MRED. All rights reserved.

This IDX solution is (c) Diverse Solutions 2025.