|
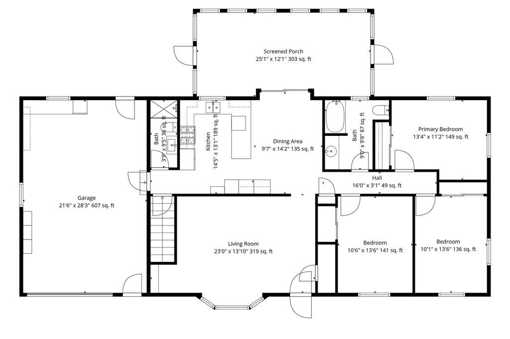
PLANT YOUR ROOTS. THIS IS WHERE LEGACY TAKES SHAPE. Set on 11.6 ACRES in unincorporated southwest Woodstock, surrounded by other 10-ACRE parcels and just minutes to WOODSTOCK SQUARE with easy access to I-90, this A1-zoned property offers privacy, function, and proximity. The home includes 4 BEDROOMS and 2 FULL BATHS with a FINISHED BASEMENT for flexible living space. A SCREENED PORCH overlooks pasture and mature trees, including three established APPLE TREES. Two decks and a fenced yard add everyday practicality. ABSOLUTELY METICULOUSLY MAINTAINED. 2025 improvements include ARCHITECTURAL ROOF with transferable warranty on home and detached garage, freshly painted BARNS, UPDATED KITCHEN with CORIAN counters and appliances (Dishwasher 2023), NEW CARPET, UPDATED BATHS, interior paint refresh, and SUMP PUMP. ALL WINDOWS & EXTERIOR DOORS replaced in 2020. Furnace (2022, serviced annually). Well and septic regularly maintained. See Feature Sheet in Documents for full list. NEWER INDOOR RIDING ARENA (72' x 50') with sand FOOTING and electric, 3-STALL HORSE BARN with rubber stall mats, electric and locked TACK ROOM, 2-STORY HAY BARN with electric, LOAFING SHED (2018), pasture and PADDOCK layout designed for daily turnout. 2-CAR EXTRA DEEP attached garage plus ENORMOUS 3+ CAR TANDEM DETACHED GARAGE (40' x 32') with wood stove heat, office with A/C. Dedicated 30 AMP RV Hookup, positioned for trailers, guests, or show weekends. Seller prefers mid-June closing. This property reflects pride of ownership and a land-forward lifestyle - all within easy reach of town & I-90. 2 pins. See documents for Feature Sheet
| DAYS ON MARKET | 80 | LAST UPDATED | 3/8/2026 |
|---|---|---|---|
| YEAR BUILT | 1971 | COMMUNITY | Bull Valley / Greenwood / Woodstock |
| GARAGE SPACES | 5.0 | COUNTY | McHenry |
| STATUS | Conditional | PROPERTY TYPE(S) | Single Family |
| ADDITIONAL DETAILS | |
| AIR | Central Air |
|---|---|
| AIR CONDITIONING | Yes |
| APPLIANCES | Dishwasher, Dryer, Microwave, Range, Refrigerator, Washer |
| AREA | Bull Valley / Greenwood / Woodstock |
| BARN/EQUESTRIAN | Yes |
| BASEMENT | Finished, Full, Yes |
| CONSTRUCTION | Wood Siding |
| EXTERIOR | Lighting |
| GARAGE | Attached Garage, Yes |
| HEAT | Propane |
| LOT | 11.64 acre(s) |
| LOT DESCRIPTION | Pasture, Views |
| LOT DIMENSIONS | 11.64 |
| PARKING | Concrete, Garage Door Opener, Heated Garage, Tandem, Garage, Attached, Detached |
| SEWER | Septic Tank |
| STYLE | Ranch |
| TAXES | 10218 |
| VIEW | Yes |
| WATER | Well |
MORTGAGE CALCULATOR
TOTAL MONTHLY PAYMENT
0
P
I
*Estimate only
| SATELLITE VIEW |
| / | |
We respect your online privacy and will never spam you. By submitting this form with your telephone number
you are consenting for Humderto
Garcia to contact you even if your name is on a Federal or State
"Do not call List".
Listed with Fathom Realty IL LLC
The data relating to real estate for sale on this web site comes in part from the Broker ReciprocitySM Program of MRED. All real estate listings are marked with the Broker ReciprocitySM logo or the MRED Broker ReciprocitySM thumbnail logo (a little black house) and detailed information about them includes the name of the listing brokers.
The broker providing these data believes them to be correct, but advises interested parties to confirm them before relying on them in a purchase decision.
Copyright 2026 MRED. All rights reserved.

The broker providing these data believes them to be correct, but advises interested parties to confirm them before relying on them in a purchase decision.
Copyright 2026 MRED. All rights reserved.
This IDX solution is (c) Diverse Solutions 2026.