|
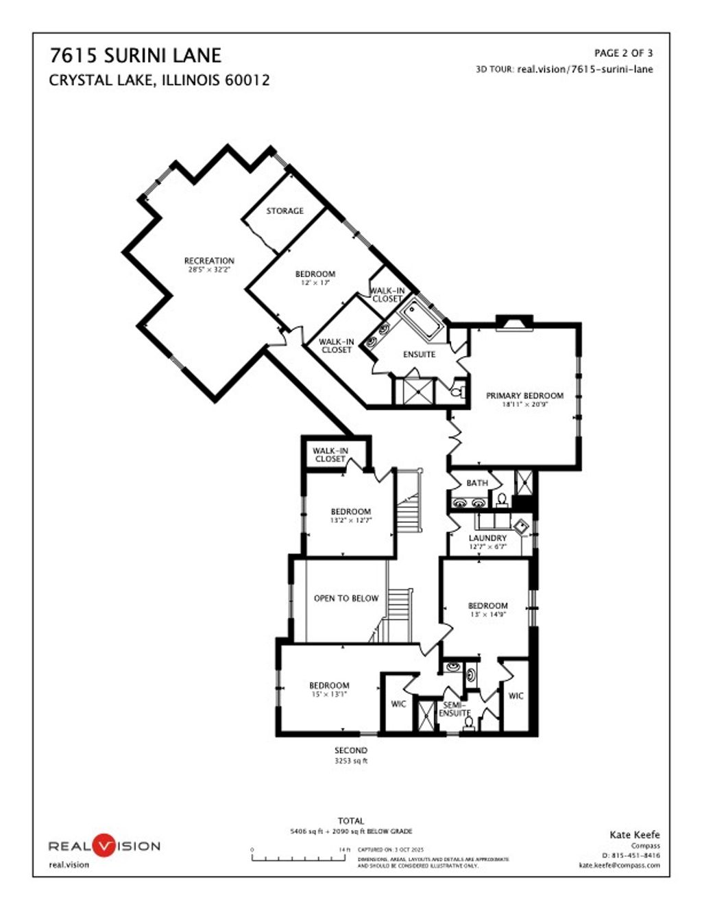
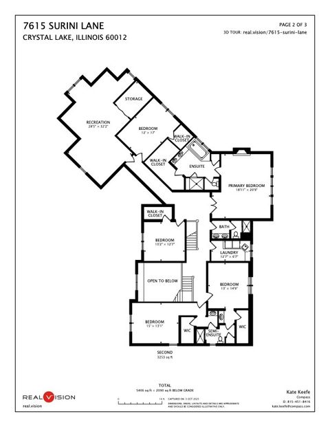
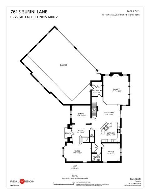
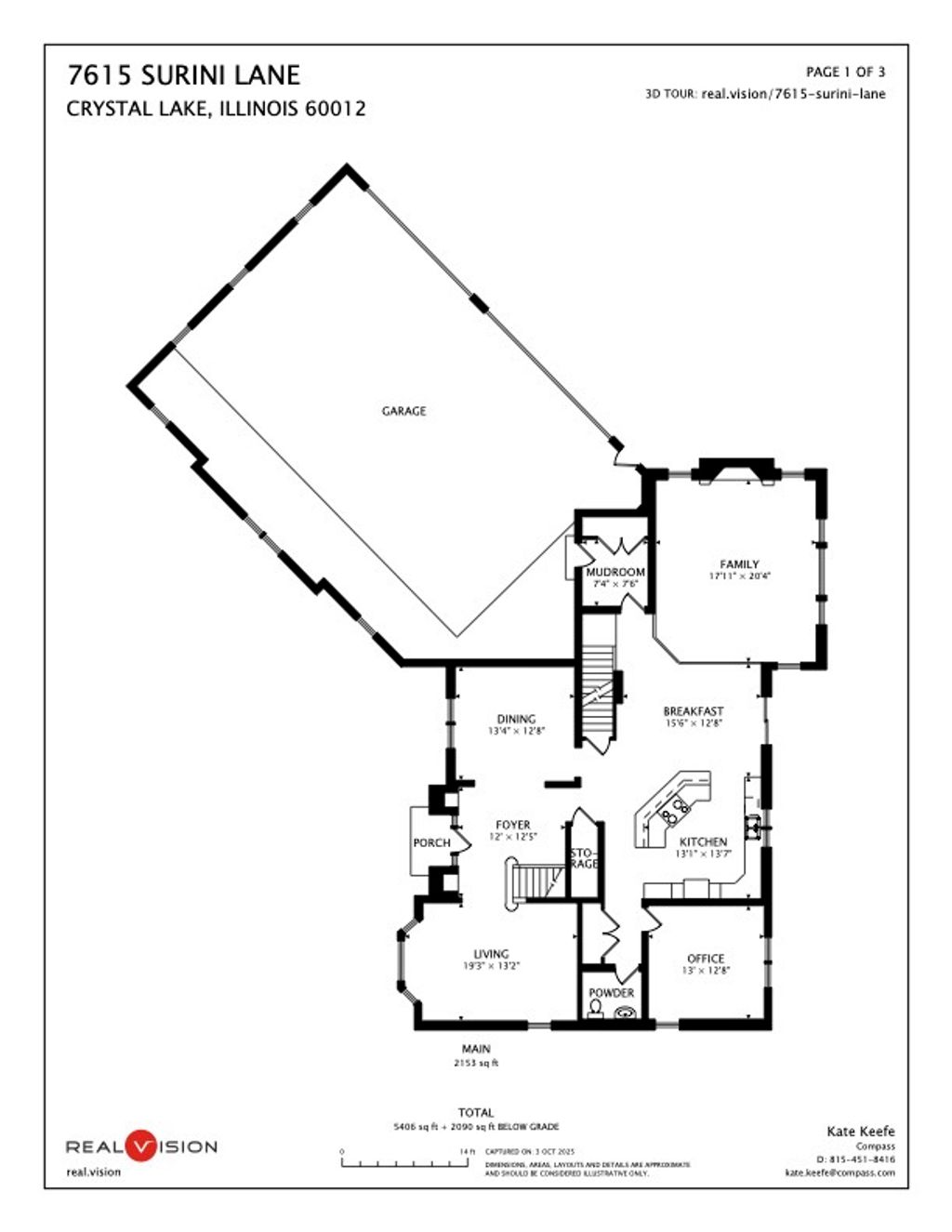
Timeless architecture, curated design and modern luxury converge on this 3+ manicured acres in prestigious Crystal Lake / Bull Valley. This 7,288 sq ft ALL BRICK estate has been meticulously maintained and re-imagined with every detail designed for comfort, style, and entertainment. Interiors That Impress * From the moment you step into the grand foyer, you'll notice custom millwork and rich hardwood floors setting the tone. The home's open, yet refined floor plan offers formal living and dining spaces accented by designer wallpaper, custom shelving and statement lighting fixtures. The chef's kitchen boasts professional appliances, granite counters, custom cabinetry, pantry and under cabinet lighting system. The private owner's suite is a sanctuary, featuring a spa-inspired bath with whirlpool tub, separate shower and dual vanities. Upstairs, spacious bedrooms include Jack-and-Jill suites, walk-in closets, and loft spaces for flexible living. Lower Level Destination * The fully finished basement (2023 remodel) is a world of its own-featuring a custom theater room with stadium seating, game area with arcade + ping pong, gym with LVP flooring and egress windows, kitchenette, and powder bath. Built-in surround sound, smart lighting, and entertainment zones make it ideal for both intimate family nights and large gatherings. Outdoor Resort Living * Step outside to your private resort: a custom, heated 9' deep Gunite pool with slide, expansive paver patio, covered pavilion, outdoor kitchen setup, and professional landscaping with lighting. Designed for durability and function, the saltwater pool is a special feature on its own. Perfectly positioned on a serene 3.24-acre parcel, this estate blends privacy and function with spaces for entertaining, recreation, and relaxation. Automotive & Utility Excellence * The oversized 4+ car garage is extra wide and extra deep with epoxy flooring, built-ins, refrigerator, icemaker, speakers, and direct access to the driveway. A whole-house generator, dual 75-gallon hot water tanks, radon mitigation, surveillance system, smart locks, and hospital-grade air filtration ensure complete comfort and peace of mind. Notable Upgrades & Features * Whole-house audio + new designer light fixtures (2025) * Gas fireplace with power on mantle * Zoned Central Air Conditioning (2021) & (2005) * Roof (2005), Furnace (2011) * Chimneys cleaned (2021) * Water softener + reverse osmosis system * Bonus room above garage for additional storage, hobby or living space. This home is more than a residence-it's an experience, offering a rare combination of elegance, innovation, and lifestyle amenities that today's luxury buyers demand. Conveniently located in sought-after Crystal Lake top schools, shopping and easy commuting routes-yet tucked away on a quiet, stately street. 7615 Surini Lane is ready to welcome its next steward who appreciates detail, sophistication, and the art of living well.
DAYS ON MARKET | 1 | LAST UPDATED | 10/7/2025 |
---|---|---|---|
TRACT | Surini at Oak Ridge | YEAR BUILT | 2005 |
COMMUNITY | Crystal Lake / Lakewood / Prairie Grove | GARAGE SPACES | 4.0 |
COUNTY | McHenry | STATUS | Active |
PROPERTY TYPE(S) | Single Family |
School District | Prairie Ridge High School |
---|---|
Elementary School | North Elementary School |
Jr. High School | Hannah Beardsley Middle School |
High School | Prairie Ridge High School |
ADDITIONAL DETAILS | |
AIR | Ceiling Fan(s), Central Air, Zoned |
---|---|
AIR CONDITIONING | Yes |
APPLIANCES | Dishwasher, Disposal, Dryer, Freezer, Humidifier, Microwave, Range, Refrigerator, Stainless Steel Appliance(s), Washer, Water Softener |
AREA | Crystal Lake / Lakewood / Prairie Grove |
BASEMENT | Finished, Full, Storage Space, Sump Pump, Yes |
CONSTRUCTION | Brick |
EXTERIOR | Fire Pit, Lighting |
FIREPLACE | Yes |
GARAGE | Yes |
HEAT | Forced Air, Natural Gas, Zoned |
INTERIOR | Bookcases, Built-in Features, Central Vacuum, Granite Counters, High Ceilings, Open Floorplan, Pantry, Walk-In Closet(s), Wet Bar |
LOT | 3.1233 acre(s) |
LOT DESCRIPTION | Landscaped, Level |
LOT DIMENSIONS | 249X566X249X564 |
PARKING | Asphalt, Circular Driveway, Garage Door Opener, On Site, Attached, Garage, Driveway |
POOL DESCRIPTION | In Ground |
SEWER | Septic Tank |
SUBDIVISION | Surini at Oak Ridge |
TAXES | 18877 |
WATER | Well |
MORTGAGE CALCULATOR
TOTAL MONTHLY PAYMENT
0
P
I
*Estimate only
SATELLITE VIEW |
/ | |
We respect your online privacy and will never spam you. By submitting this form with your telephone number
you are consenting for Humderto
Garcia to contact you even if your name is on a Federal or State
"Do not call List".
Listed with Compass
The data relating to real estate for sale on this web site comes in part from the Broker ReciprocitySM Program of MRED. All real estate listings are marked with the Broker ReciprocitySM logo or the MRED Broker ReciprocitySM thumbnail logo (a little black house) and detailed information about them includes the name of the listing brokers.
The broker providing these data believes them to be correct, but advises interested parties to confirm them before relying on them in a purchase decision.
Copyright 2025 MRED. All rights reserved.

The broker providing these data believes them to be correct, but advises interested parties to confirm them before relying on them in a purchase decision.
Copyright 2025 MRED. All rights reserved.

This IDX solution is (c) Diverse Solutions 2025.