|
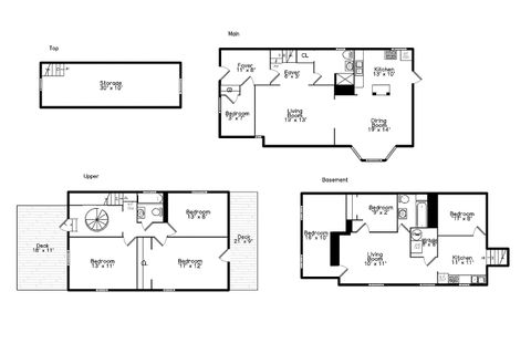
This generously sized home offers versatile living across multiple levels. The main floor features a sunlit living room, formal dining room, a well-appointed kitchen, one bedroom, and a full bathroom. Upstairs, you'll find three additional bedrooms and another full bathroom. An additional third-floor space provides extra room for storage or potential expansion. The finished basement includes a 2-bedroom, 1-bath in-law suite, ideal for extended family, guests, or rental potential. Driveway allows for parking of 4 cars, or re finish with green space. Brand new items include the roof, back deck, AC, and Sump Pump. The home has been updated to be turnkey for its next owner!
DAYS ON MARKET | 4 | LAST UPDATED | 10/7/2025 |
---|---|---|---|
YEAR BUILT | 0 | COMMUNITY | CHI - Humboldt Park |
COUNTY | Cook | STATUS | Active |
PROPERTY TYPE(S) | Single Family |
School District | Clemente Community Academy Senio |
---|---|
Elementary School | Stowe Elementary School |
Jr. High School | Stowe Elementary School |
High School | Clemente Community Academy Senio |
ADDITIONAL DETAILS | |
AIR | Central Air, Wall Unit(s) |
---|---|
AIR CONDITIONING | Yes |
APPLIANCES | Microwave, Range, Refrigerator |
AREA | CHI - Humboldt Park |
BASEMENT | Daylight, Finished, Full, Yes |
CONSTRUCTION | Frame, Vinyl Siding |
HEAT | Forced Air, Natural Gas |
LOT | 2457 sq ft |
LOT DIMENSIONS | 42 x 59 |
PARKING | Concrete, Off Street, Driveway, On Site |
SEWER | Public Sewer |
TAXES | 5595 |
WATER | Public |
MORTGAGE CALCULATOR
TOTAL MONTHLY PAYMENT
0
P
I
*Estimate only
SATELLITE VIEW |
/ | |
We respect your online privacy and will never spam you. By submitting this form with your telephone number
you are consenting for Humderto
Garcia to contact you even if your name is on a Federal or State
"Do not call List".
Listed with Compass
The data relating to real estate for sale on this web site comes in part from the Broker ReciprocitySM Program of MRED. All real estate listings are marked with the Broker ReciprocitySM logo or the MRED Broker ReciprocitySM thumbnail logo (a little black house) and detailed information about them includes the name of the listing brokers.
The broker providing these data believes them to be correct, but advises interested parties to confirm them before relying on them in a purchase decision.
Copyright 2025 MRED. All rights reserved.

The broker providing these data believes them to be correct, but advises interested parties to confirm them before relying on them in a purchase decision.
Copyright 2025 MRED. All rights reserved.

This IDX solution is (c) Diverse Solutions 2025.