|
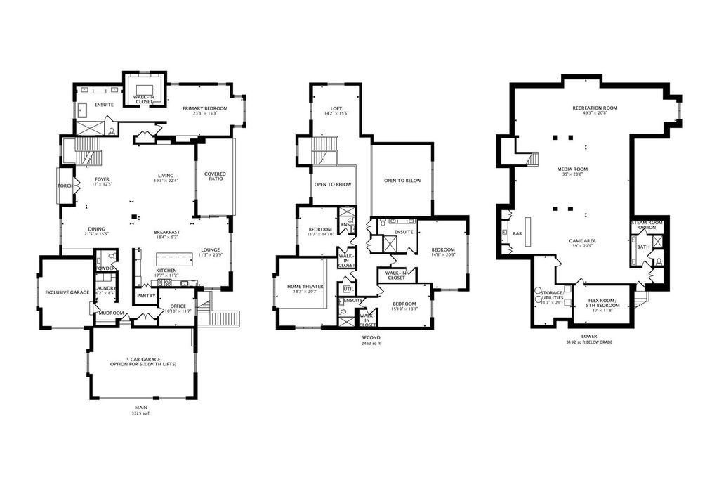
Recently appraised at $3.1 Million, seize the opportunity to move right into this beautiful brand-new "urban chic" contemporary luxury home at the Woods of South Barrington. The perfect east facing location where you can watch the sunset from your backyard overlooking a gorgeous pond. The only NEW construction luxury estate completed in 2025 (Certificate of Occupancy 07.08.2025), features nearly 9,000 sq. ft. of indoor living with the most extravagant finishes. Your eyes will light up as you approach the custom illuminated brick paver circular driveway. Sensational lighting and chandeliers will dazzle you with a functional open floor plan. A stunning chef's kitchen with Thermador appliances, plus formal dining room, lounge and executive office. First-floor primary bedroom suite and spa-like bath with radiant floors on the main level. The second floor features another master bedroom suite, home theatre, loft, and two spacious bedroom ensuites. The 3,700 sq. ft. finished basement gives you room to entertain with a recreation area, media & game area, full wet bar, full bath, and flex room. Expand your automobile portfolio and increase the capacity of the four-car garage with LIFTS to store up to SEVEN vehicles! Smart house technology option to control the temperature, exterior lighting, garage, security system and irrigation system with ease from your smart phone. The convenience of city water & sewer. No well. No septic. Option to build an in-ground swimming pool. "Award-winning" Barrington Schools and park district. Exciting shops, restaurants, and entertainment at The Arboretum of South Barrington are just one mile away. Walk, run or bike the nature path to Community Park with a playground, tennis courts, pro turf fields for soccer and lacrosse! Close to downtown Barrington and Metra train station. Easy access to I-90, O'Hare & Woodfield Mall. Stop dreaming. Start living the luxury lifestyle today at 60 Wood Oaks Drive, South Barrington!
| DAYS ON MARKET | 69 | LAST UPDATED | 11/11/2025 |
|---|---|---|---|
| TRACT | The Woods of South Barrington | YEAR BUILT | 2025 |
| COMMUNITY | Barrington Area | GARAGE SPACES | 4.0 |
| COUNTY | Cook | STATUS | Conditional |
| PROPERTY TYPE(S) | Single Family |
| School District | Barrington High School |
|---|---|
| Elementary School | Barbara B Rose Elementary School |
| Jr. High School | Barrington Middle School Prairie |
| High School | Barrington High School |
| ADDITIONAL DETAILS | |
| AIR | Central Air |
|---|---|
| AIR CONDITIONING | Yes |
| APPLIANCES | Dishwasher, Dryer, Freezer, Microwave, Range, Stainless Steel Appliance(s), Washer |
| AREA | Barrington Area |
| BASEMENT | Finished, Full, Yes |
| CONSTRUCTION | Stone, Stucco |
| FIREPLACE | Yes |
| GARAGE | Attached Garage, Yes |
| HEAT | Forced Air, Natural Gas, Radiant |
| HOA DUES | 121 |
| INTERIOR | Entrance Foyer, High Ceilings, Open Floorplan, Walk-In Closet(s), Wet Bar |
| LOT | 0.89 acre(s) |
| LOT DESCRIPTION | Landscaped |
| LOT DIMENSIONS | 168 X 244 X 140 X 254 |
| PARKING | Circular Driveway, Garage Door Opener, Garage, Attached, Driveway |
| SEWER | Public Sewer |
| STYLE | Contemporary |
| SUBDIVISION | The Woods of South Barrington |
| TAXES | 2707 |
| VIEW | Yes |
| VIEW DESCRIPTION | Water |
| WATER | Public |
| WATERFRONT | Yes |
| WATERFRONT DESCRIPTION | Pond |
MORTGAGE CALCULATOR
TOTAL MONTHLY PAYMENT
0
P
I
*Estimate only
| SATELLITE VIEW |
| / | |
We respect your online privacy and will never spam you. By submitting this form with your telephone number
you are consenting for Humderto
Garcia to contact you even if your name is on a Federal or State
"Do not call List".
Listed with @properties Christie's International Real Estate
The data relating to real estate for sale on this web site comes in part from the Broker ReciprocitySM Program of MRED. All real estate listings are marked with the Broker ReciprocitySM logo or the MRED Broker ReciprocitySM thumbnail logo (a little black house) and detailed information about them includes the name of the listing brokers.
The broker providing these data believes them to be correct, but advises interested parties to confirm them before relying on them in a purchase decision.
Copyright 2025 MRED. All rights reserved.

The broker providing these data believes them to be correct, but advises interested parties to confirm them before relying on them in a purchase decision.
Copyright 2025 MRED. All rights reserved.
This IDX solution is (c) Diverse Solutions 2025.