|
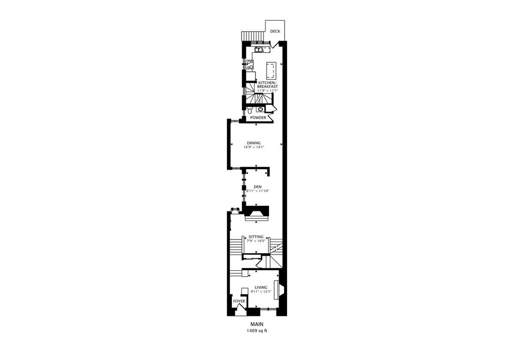
Now price at $725k! RARELY AVAILABLE! Welcome to Robert Roloson Row in The Gap! Featured in Crain's, this 3-story estate is 1 of only 4 Roloson rowhouses that were built by world renowned architect Frank Lloyd Wright. With over 4,500 square feet of living space, this 4 bedroom 3.1 bathroom home has a main level reception room that can be used to a home office, the second level includes a formal living room and dining room, hardwood floors, a sitting room, den and an eat-in kitchen with a large island, granite countertops and stainless steel appliances. There are dual staircases (front and rear) to access the third level. The third level has plenty of natural lighting with multiple skylights, newer hardwood floors ('16) in the bedrooms, a second bathroom with a shared bathroom and a two-level primary bedroom suite with a walk-in closet, woodburning fireplace and a newer wooden staircase that leads to the suite's top level full en suite bathroom that includes double vanity, a soaking tub and separate shower. The finished basement has a recreation room, laundry room, full bathroom with a steam shower, and a bonus room that was previously room as an exercise room. There is a new deck ('24) off the kitchen in the fenced rear yard that has access to King Drive and is perfect for your outdoor oasis! There is plenty of storage space, 4 woodburning fireplaces, dual heating and cooling, a newer rear tear off roof ('18) and a newer front shingle roof ('20)! Short distance from the lakefront, I-94, Lake Shore Drive, Pershing Magnet School, IIT, Illinois College of Optometry, Dunbar Park, public transportation, shopping and much more!
DAYS ON MARKET | 1 | LAST UPDATED | 10/7/2025 |
---|---|---|---|
TRACT | Bronzeville | YEAR BUILT | 1894 |
COMMUNITY | CHI - Douglas | COUNTY | Cook |
STATUS | Active | PROPERTY TYPE(S) | Single Family |
ADDITIONAL DETAILS | |
AIR | Central Air |
---|---|
AIR CONDITIONING | Yes |
APPLIANCES | Dryer, Stainless Steel Appliance(s), Washer |
AREA | CHI - Douglas |
BASEMENT | Finished, Full, Yes |
CONSTRUCTION | Brick |
FIREPLACE | Yes |
HEAT | Forced Air, Natural Gas |
INTERIOR | Walk-In Closet(s) |
LOT | 2291 sq ft |
LOT DIMENSIONS | 2292 |
PARKING | On Site |
SEWER | Public Sewer |
STYLE | Row House |
SUBDIVISION | Bronzeville |
TAXES | 9109.29 |
WATER | Public |
MORTGAGE CALCULATOR
TOTAL MONTHLY PAYMENT
0
P
I
*Estimate only
SATELLITE VIEW |
/ | |
We respect your online privacy and will never spam you. By submitting this form with your telephone number
you are consenting for Humderto
Garcia to contact you even if your name is on a Federal or State
"Do not call List".
Listed with @properties Christie's International Real Estate
The data relating to real estate for sale on this web site comes in part from the Broker ReciprocitySM Program of MRED. All real estate listings are marked with the Broker ReciprocitySM logo or the MRED Broker ReciprocitySM thumbnail logo (a little black house) and detailed information about them includes the name of the listing brokers.
The broker providing these data believes them to be correct, but advises interested parties to confirm them before relying on them in a purchase decision.
Copyright 2025 MRED. All rights reserved.

The broker providing these data believes them to be correct, but advises interested parties to confirm them before relying on them in a purchase decision.
Copyright 2025 MRED. All rights reserved.

This IDX solution is (c) Diverse Solutions 2025.