|
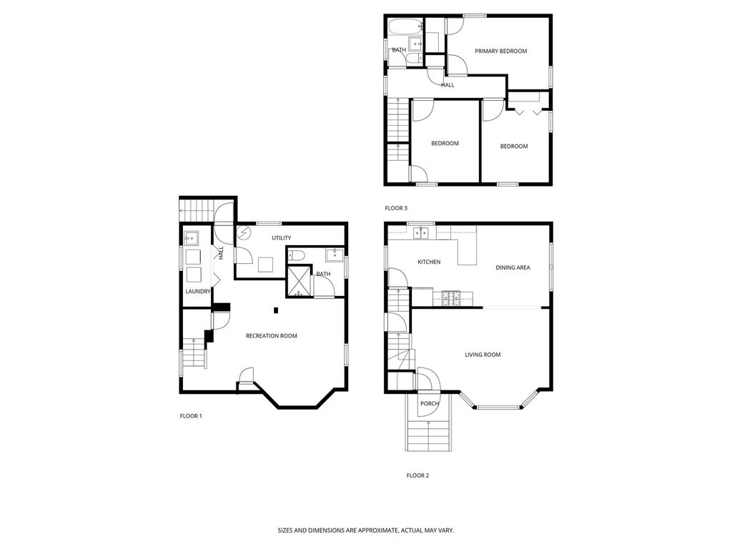
10106 S. Vernon is an immaculate and fully updated brick Georgian home, nestled in Chicago's historic Rosemoor neighborhood. This home is a blend of style, comfort, and location with amazing curb appeal! Close proximity to expressways, Downtown Chicago, Chicago State University, Metra and rapid transit, Lake Michigan, Harborside Golf Course, and Indiana. Hardwood flooring throughout home. 3 bedrooms; 2 full bathrooms, including in the finished basement. Updated Kitchen with granite countertops, cherry cabinetry, polished Stainless Steel appliances. Formal dining room with crown molding and concealed soffit lighting. Fully finished lower level (ideal as media space, playroom, additional bedroom, or home office) offers a spacious family room, full bathroom with Luxury Spa body-spray shower! No flooding of basement with newly installed Drain Tiles with sump pump, providing efficiency, reliability, and peace of mind! With no deferred maintenance and turnkey systems, this home makes an immediate impact and offers long-term value, with the surrounding homes appreciating as well!
| DAYS ON MARKET | 55 | LAST UPDATED | 10/7/2025 |
|---|---|---|---|
| TRACT | Rosemoor | YEAR BUILT | 1946 |
| COMMUNITY | CHI - Roseland | GARAGE SPACES | 1.0 |
| COUNTY | Cook | STATUS | Active |
| PROPERTY TYPE(S) | Single Family |
| School District | Corliss High School |
|---|---|
| Elementary School | Bennett Elementary School |
| High School | Corliss High School |
| ADDITIONAL DETAILS | |
| AIR | None |
|---|---|
| APPLIANCES | Dishwasher, Microwave, Range, Refrigerator |
| AREA | CHI - Roseland |
| BASEMENT | Finished, Full, Yes |
| CONSTRUCTION | Brick |
| GARAGE | Yes |
| HEAT | Forced Air, Natural Gas |
| LOT | 0 |
| LOT DIMENSIONS | 40X125 |
| PARKING | On Site, Detached, Garage |
| SEWER | Public Sewer |
| STYLE | Georgian |
| SUBDIVISION | Rosemoor |
| TAXES | 1836.86 |
MORTGAGE CALCULATOR
TOTAL MONTHLY PAYMENT
0
P
I
*Estimate only
| SATELLITE VIEW |
| / | |
We respect your online privacy and will never spam you. By submitting this form with your telephone number
you are consenting for Humderto
Garcia to contact you even if your name is on a Federal or State
"Do not call List".
Listed with Keller Williams ONEChicago
The data relating to real estate for sale on this web site comes in part from the Broker ReciprocitySM Program of MRED. All real estate listings are marked with the Broker ReciprocitySM logo or the MRED Broker ReciprocitySM thumbnail logo (a little black house) and detailed information about them includes the name of the listing brokers.
The broker providing these data believes them to be correct, but advises interested parties to confirm them before relying on them in a purchase decision.
Copyright 2025 MRED. All rights reserved.

The broker providing these data believes them to be correct, but advises interested parties to confirm them before relying on them in a purchase decision.
Copyright 2025 MRED. All rights reserved.
This IDX solution is (c) Diverse Solutions 2025.