|
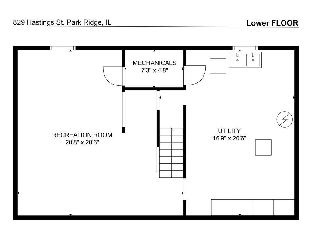
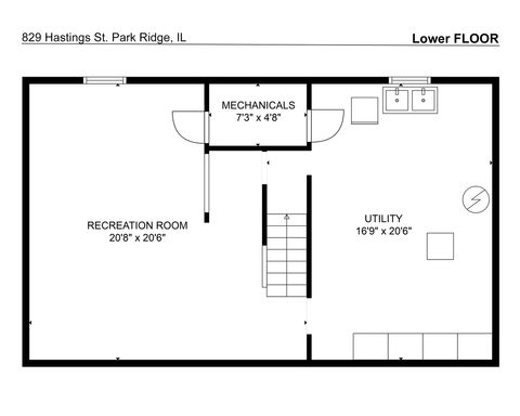
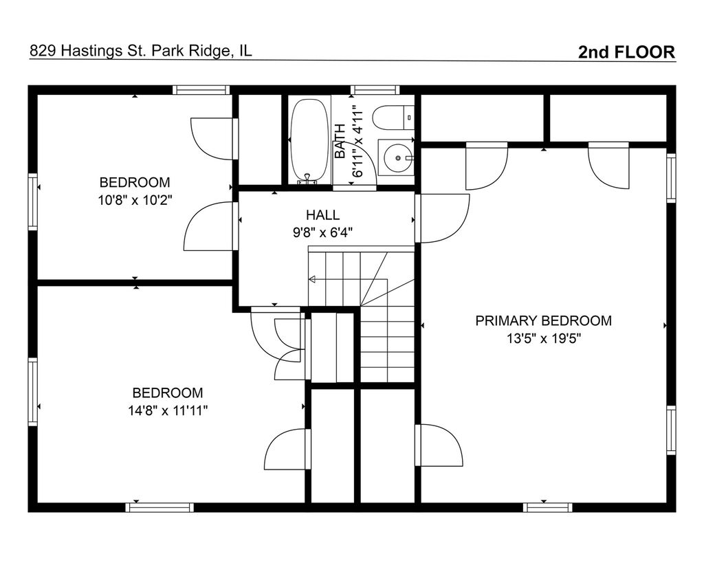
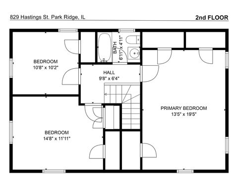
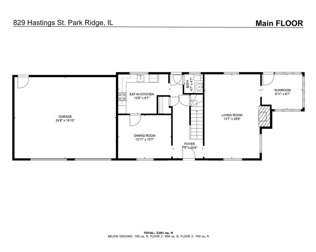
Rare Opportunity in the Coveted Park Ridge Country Club Neighborhood! Don't miss this chance to own a rarely available home in one of Park Ridge's most desirable areas-just blocks from the vibrant Uptown district, filled with shops, restaurants, and Starbucks. This classic home is ideally situated on a beautifully landscaped 55 x 195.66 ft corner lot, directly across from the lush fairways of Park Ridge Country Club. Enjoy the perfect blend of privacy, space, and convenience. Inside, the home offers three spacious second-floor bedrooms, including a generous primary suite with three closets. The main level boasts a formal living room with a gas/wood-burning fireplace, a separate dining room, and a stunning 10 x 10 sunroom addition (1999), featuring vaulted ceilings, skylight, and walls of windows-a perfect space to relax year-round. Additional highlights include, a 2.5-car garage (25' x 22'), built in 1999 Newer roof with architectural shingles (approx. 2018) New central air system (installed August 2020) Newer furnace for reliable year-round comfort Finished basement with cozy recreation room + large storage area Solid oak hardwood floors under all carpeting. Overhead sewers, sump pump with battery backup. This home offers the perfect blend of timeless charm, modern updates, and an unbeatable location. Homes in this neighborhood rarely come to market-schedule your private showing today!
DAYS ON MARKET | 1 | LAST UPDATED | 10/8/2025 |
---|---|---|---|
TRACT | Country Club | YEAR BUILT | 1946 |
COMMUNITY | Park Ridge | GARAGE SPACES | 2.5 |
COUNTY | Cook | STATUS | Active |
PROPERTY TYPE(S) | Single Family |
School District | Maine South High School |
---|---|
Elementary School | Eugene Field Elementary School |
Jr. High School | Emerson Middle School |
High School | Maine South High School |
ADDITIONAL DETAILS | |
AIR | Central Air |
---|---|
AIR CONDITIONING | Yes |
APPLIANCES | Dishwasher, Range |
AREA | Park Ridge |
BASEMENT | Full, Partially Finished, Yes |
CONSTRUCTION | Aluminum Siding, Brick |
FIREPLACE | Yes |
GARAGE | Yes |
HEAT | Forced Air, Natural Gas |
INTERIOR | Built-in Features, Cathedral Ceiling(s), Entrance Foyer |
LOT | 10755 sq ft |
LOT DESCRIPTION | Corner Lot |
LOT DIMENSIONS | 55 X 195.6 |
PARKING | Concrete, Garage Door Opener, On Site, Attached, Garage |
SEWER | Public Sewer |
STYLE | Colonial |
SUBDIVISION | Country Club |
TAXES | 14393 |
MORTGAGE CALCULATOR
TOTAL MONTHLY PAYMENT
0
P
I
*Estimate only
SATELLITE VIEW |
/ | |
We respect your online privacy and will never spam you. By submitting this form with your telephone number
you are consenting for Humderto
Garcia to contact you even if your name is on a Federal or State
"Do not call List".
Listed with @properties Christie's International Real Estate
The data relating to real estate for sale on this web site comes in part from the Broker ReciprocitySM Program of MRED. All real estate listings are marked with the Broker ReciprocitySM logo or the MRED Broker ReciprocitySM thumbnail logo (a little black house) and detailed information about them includes the name of the listing brokers.
The broker providing these data believes them to be correct, but advises interested parties to confirm them before relying on them in a purchase decision.
Copyright 2025 MRED. All rights reserved.

The broker providing these data believes them to be correct, but advises interested parties to confirm them before relying on them in a purchase decision.
Copyright 2025 MRED. All rights reserved.

This IDX solution is (c) Diverse Solutions 2025.