| 
 | 
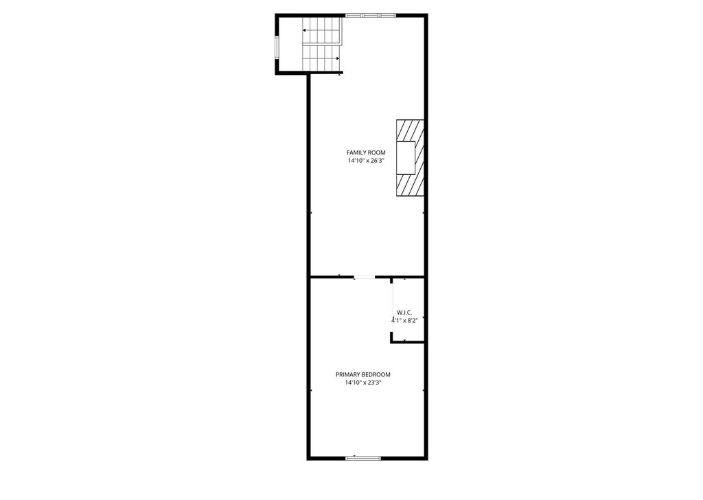
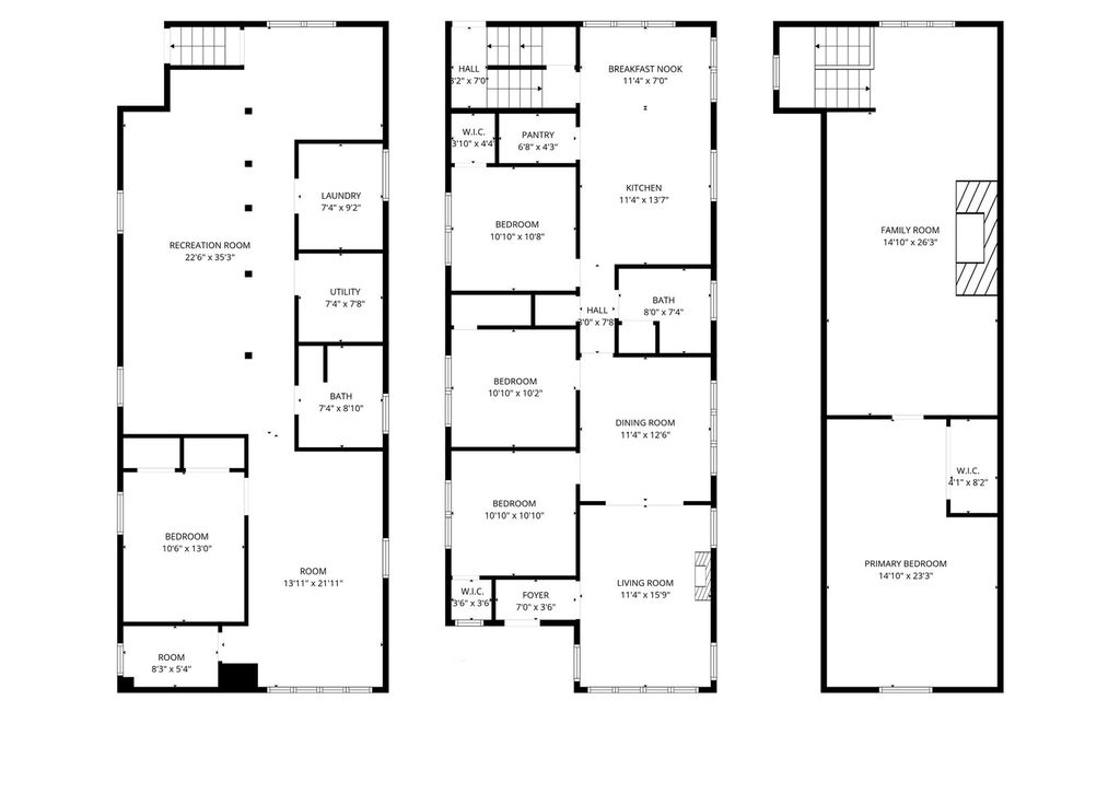
HONEY STOP THE CAR!!! Make this one of a kind home yours today! This fully renovated brick bungalow is in a prime location and perfectly situated just minutes from vibrant Oak Park. Thoughtfully renovated with quality materials and attention to detail throughout. Move right in and enjoy a home that blends timeless charm with modern luxury. This spacious home offers 5 bedrooms and 2 full bathrooms, providing plenty of space for the whole family. The main level welcomes you with a bright, open floor plan with a cozy fireplace and featuring gleaming refinished hardwood floors, beautiful modern light fixtures that fill the home with warm, natural light, a spacious formal dining area with coffered ceilings perfect for hosting. The home features elegant wainscoting details throughout. The kitchen feels straight out of an HGTV magazine, perfect for both cooking and entertaining. It also showcases quartz countertops, beautiful eat-in island, stainless steel appliances, and custom soft-close cabinetry. This designer kitchen has been thoughtfully extended to include a wet bar or coffee station perfect for entertaining your morning routine. Upstairs, you'll find brand new carpeting and a large primary bedroom offering comfort and versatility, along with generous storage space. The beautifully finished attic impresses with soaring ceilings, plush carpeting, and a cozy fireplace ideal for a guest suite, home office, or private retreat. The fully finished basement expands your living space with a spacious family room, a second full bathroom, a convenient laundry area with a brand new washer and dryer, and an additional bedroom perfect for guests or extended family. Finished basement offers an additional 1,470 sq ft of living space (not included in listed square footage) Outside, enjoy a newly paved side driveway leading to a two-car garage, a brand-new roof, updated plumbing, electrical, and furnace! The backyard offers plenty of space for summer gatherings, cozy nights by the fire pit, and outdoor fun with family and friends. This home truly has it all modern finishes, stunning lighting, an extended designer kitchen, unbeatable location, and move-in-ready convenience. Every detail of this home has been carefully crafted no corners were cut and no detail overlooked. Located near top-rated schools, scenic parks, and within walking distance to Berwyn's beloved shops and restaurants, near Proksa and Janura Parks, Heritage Middle School, Morton West High School, and with quick access to I-55, Metra, and CTA. Everything is brand new just move in and start living! Don't miss the opportunity to make this turnkey gem yours! Schedule your private tour today!
| DAYS ON MARKET | 24 | LAST UPDATED | 10/8/2025 | 
|---|---|---|---|
| YEAR BUILT | 0 | COMMUNITY | Berwyn | 
| GARAGE SPACES | 2.0 | COUNTY | Cook | 
| STATUS | Active | PROPERTY TYPE(S) | Single Family | 
| School District | J Sterling Morton West High Scho | 
|---|---|
| Elementary School | Irving Elementary School | 
| Jr. High School | Heritage Middle School | 
| High School | J Sterling Morton West High Scho | 
| ADDITIONAL DETAILS | |
| AIR | Central Air | 
|---|---|
| AIR CONDITIONING | Yes | 
| APPLIANCES | Dishwasher, Microwave, Range, Range Hood, Refrigerator | 
| AREA | Berwyn | 
| BASEMENT | Finished, Full, Yes | 
| CONSTRUCTION | Brick | 
| FIREPLACE | Yes | 
| GARAGE | Yes | 
| HEAT | Steam | 
| INTERIOR | In-Law Floorplan, Pantry | 
| LOT | 0 | 
| LOT DIMENSIONS | 30X150 | 
| PARKING | Asphalt, Garage Door Opener, On Site, Detached, Garage | 
| SEWER | Public Sewer | 
| STYLE | Bungalow | 
| TAXES | 6503 | 
| WATER | Public | 
            MORTGAGE CALCULATOR
        
        TOTAL MONTHLY PAYMENT
0
                    P
                        I 
                    
            *Estimate only
        
    | SATELLITE VIEW | 
| / | |
	We respect your online privacy and will never spam you. By submitting this form with your telephone number
	you are consenting for Humderto
	Garcia to contact you even if your name is on a Federal or State
	"Do not call List".
	
    Listed with Realty of America, LLC
	The data relating to real estate for sale on this web site comes in part from the Broker ReciprocitySM Program of MRED. All real estate listings are marked with the Broker ReciprocitySM logo or the MRED Broker ReciprocitySM thumbnail logo (a little black house) and detailed information about them includes the name of the listing brokers.
The broker providing these data believes them to be correct, but advises interested parties to confirm them before relying on them in a purchase decision.
Copyright 2025 MRED. All rights reserved.

	
	
	
    
The broker providing these data believes them to be correct, but advises interested parties to confirm them before relying on them in a purchase decision.
Copyright 2025 MRED. All rights reserved.

This IDX solution is (c) Diverse Solutions 2025.
 
				 Twitter
									        Twitter Facebook
									        Facebook Email
									        Email 
									 
									 
									 
									 
									 
									 
									 
									 
									 
									 
									 
									 
									 
									 
									 
									 
									 
									 
									 
									 
									 
									 
									 
									 
									 
									 
									 
									 
									 
									 
									 
									 
									 
									 
									 
									 
									 
									 
									 
									 
									 
									 
									 
									 
									 
									 
									 
									 
									 
									 
									 
									