|
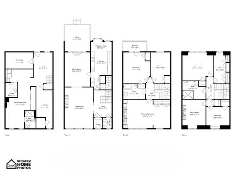
Nestled on a tree-lined cul-de-sac directly opposite Ray Elementary School playground, this prestigious rowhome was designed in 1903 by New York architectural firm Mann, MacNeille & Lindeberg in the classic Renaissance Revival style for University of Chicago academics and represents a rare opportunity on Hyde Park's storied Professor's Row. Beyond the stunning and well-preserved Gothic arched windows, this picturesque residence has been thoughtfully updated for modern living while preserving its profound historic character; offering six bedrooms, three and a half renovated baths, three wood burning fireplaces and an updated kitchen with Sub-Zero and Bosch appliances. The rear veranda and storybook backyard are a gardener's dream. The finished lower level provides exceptional utility with epoxy flooring, a workshop, laundry center and newer mechanicals. The third floor storage room and attic are a testament to the home's abundant space. This architecturally significant, once-in-a-generation offering is within the University of Chicago campus and near everything that Hyde Park has to offer.
DAYS ON MARKET | 1 | LAST UPDATED | 10/8/2025 |
---|---|---|---|
YEAR BUILT | 1903 | COMMUNITY | CHI - Hyde Park |
COUNTY | Cook | STATUS | Active |
PROPERTY TYPE(S) | Single Family |
School District | Kenwood Academy High School |
---|---|
Elementary School | Ray Elementary School |
High School | Kenwood Academy High School |
ADDITIONAL DETAILS | |
AIR | Central Air |
---|---|
AIR CONDITIONING | Yes |
AREA | CHI - Hyde Park |
BASEMENT | Daylight, Finished, Full, Yes |
CONSTRUCTION | Brick, Stone |
EXTERIOR | Balcony |
FIREPLACE | Yes |
HEAT | Forced Air |
INTERIOR | Walk-In Closet(s) |
LOT | 0 |
LOT DESCRIPTION | Cul-de-sac |
LOT DIMENSIONS | 25 x 123 |
SEWER | Public Sewer |
STYLE | Row House |
TAXES | 19886.68 |
MORTGAGE CALCULATOR
TOTAL MONTHLY PAYMENT
0
P
I
*Estimate only
SATELLITE VIEW |
/ | |
We respect your online privacy and will never spam you. By submitting this form with your telephone number
you are consenting for Humderto
Garcia to contact you even if your name is on a Federal or State
"Do not call List".
Listed with North Clybourn Group, Inc.
The data relating to real estate for sale on this web site comes in part from the Broker ReciprocitySM Program of MRED. All real estate listings are marked with the Broker ReciprocitySM logo or the MRED Broker ReciprocitySM thumbnail logo (a little black house) and detailed information about them includes the name of the listing brokers.
The broker providing these data believes them to be correct, but advises interested parties to confirm them before relying on them in a purchase decision.
Copyright 2025 MRED. All rights reserved.

The broker providing these data believes them to be correct, but advises interested parties to confirm them before relying on them in a purchase decision.
Copyright 2025 MRED. All rights reserved.

This IDX solution is (c) Diverse Solutions 2025.