|
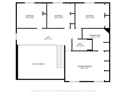
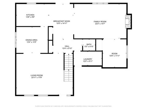
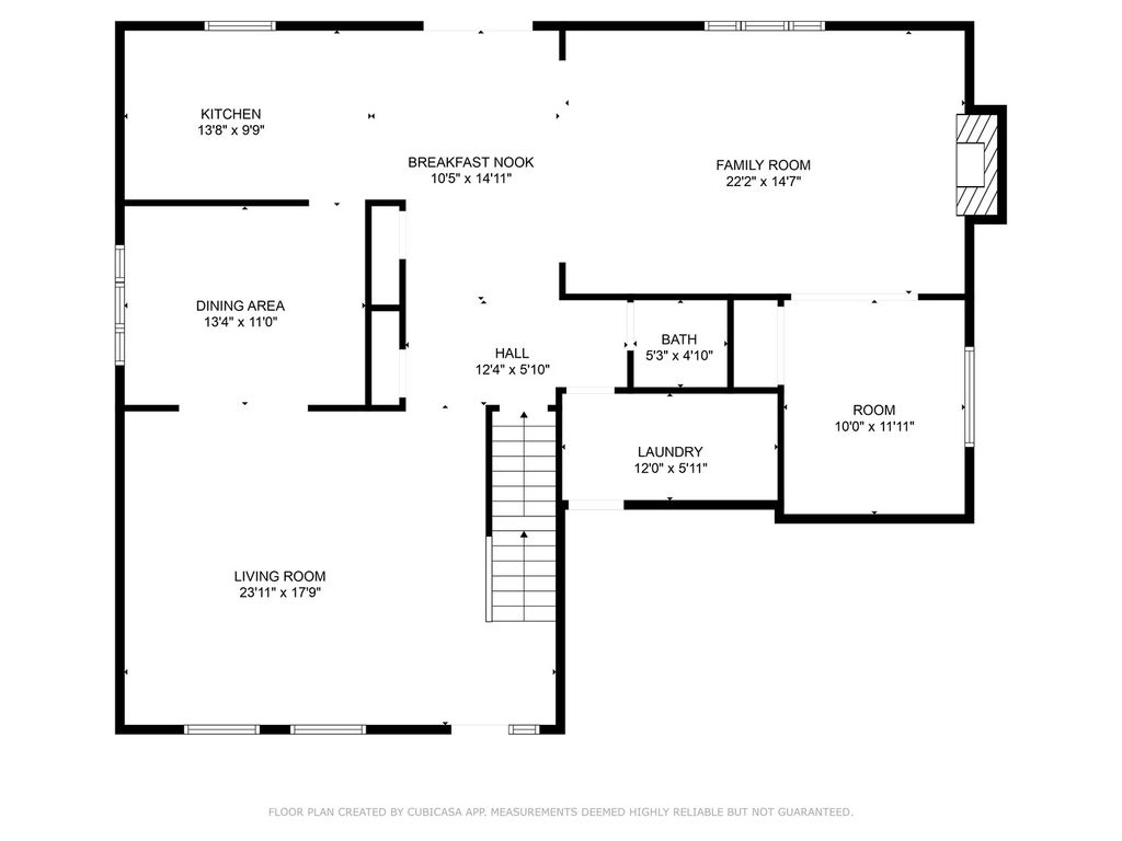
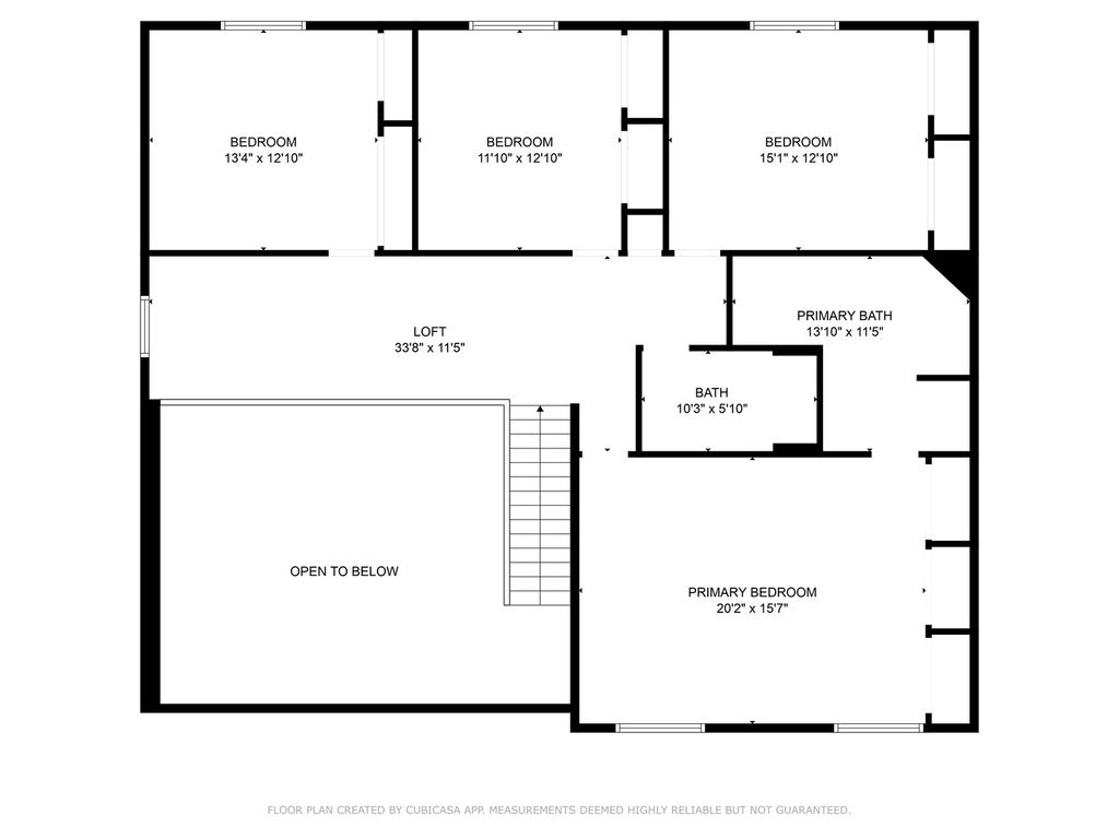
Welcome to this Beautiful 5 Bedroom 2.5 Bath corner lot home in the highly desirable Brook Hills Subdivision. Step inside to an inviting foyer that opens to the spacious living room with soaring vaulted ceiling. The Dining room is right off of the living room which leads to the kitchen. The open kitchen concept offers an eat in kitchen with brand new quartz countertops & brand new commercial grade stove top. Just off the kitchen you will find the enclosed porch overlooking the fenced backyard for added privacy and comfort. The cozy family room features a classic wood burning fireplace, perfect for gatherings. The 5th bedroom/Office/Den is located on the main floor, convenient for use as related living, an office, or a playroom. Elegant wood handrails and brand new carpeting lead you up the stairs to the 2nd floor where you will find an airy loft overlooking the living room. The well designed floor plan includes 4 generously sized bedrooms on the 2nd floor filled with natural light. The expansive master bedroom features plush new carpeting and an abundance of light with multiple closet space leading into the master bathroom. The master bathroom offers a relaxing retreat with deep soaking tub, a separate walk in shower with a double sink vanity for ample storage and counter space. The finished basement features a carpeted recreation room with crawl space perfect for extra storage. Beautiful corner lot with great curb appeal & manicured landscaping. Just steps away from the neighborhood park offering a pickleball court, basketball court, baseball field, playground and walking trail. This home is conveniently located near exceptional schools, amazing shopping and all transportation.
DAYS ON MARKET | 1 | LAST UPDATED | 10/9/2025 |
---|---|---|---|
YEAR BUILT | 1987 | COMMUNITY | Orland Park |
GARAGE SPACES | 2.0 | COUNTY | Cook |
STATUS | Active | PROPERTY TYPE(S) | Single Family |
School District | Carl Sandburg High School |
---|---|
Elementary School | Meadow Ridge School |
Jr. High School | Century Junior High School |
High School | Carl Sandburg High School |
ADDITIONAL DETAILS | |
AIR | Central Air |
---|---|
AIR CONDITIONING | Yes |
APPLIANCES | Cooktop, Dishwasher, Double Oven, Dryer, Refrigerator, Washer |
AREA | Orland Park |
BASEMENT | Finished, Partial, Yes |
CONSTRUCTION | Brick, Vinyl Siding |
FIREPLACE | Yes |
GARAGE | Yes |
HEAT | Forced Air, Natural Gas |
HOA DUES | 70 |
INTERIOR | Vaulted Ceiling(s) |
LOT | 0 |
LOT DIMENSIONS | 10672 |
PARKING | Concrete, Garage Door Opener, On Site, Attached, Garage |
SEWER | Public Sewer |
TAXES | 10682 |
MORTGAGE CALCULATOR
TOTAL MONTHLY PAYMENT
0
P
I
*Estimate only
SATELLITE VIEW |
/ | |
We respect your online privacy and will never spam you. By submitting this form with your telephone number
you are consenting for Humderto
Garcia to contact you even if your name is on a Federal or State
"Do not call List".
Listed with HomeSmart Realty Group
The data relating to real estate for sale on this web site comes in part from the Broker ReciprocitySM Program of MRED. All real estate listings are marked with the Broker ReciprocitySM logo or the MRED Broker ReciprocitySM thumbnail logo (a little black house) and detailed information about them includes the name of the listing brokers.
The broker providing these data believes them to be correct, but advises interested parties to confirm them before relying on them in a purchase decision.
Copyright 2025 MRED. All rights reserved.

The broker providing these data believes them to be correct, but advises interested parties to confirm them before relying on them in a purchase decision.
Copyright 2025 MRED. All rights reserved.

This IDX solution is (c) Diverse Solutions 2025.