|
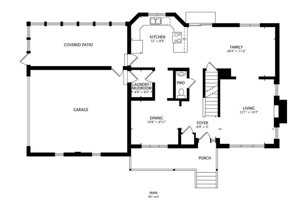
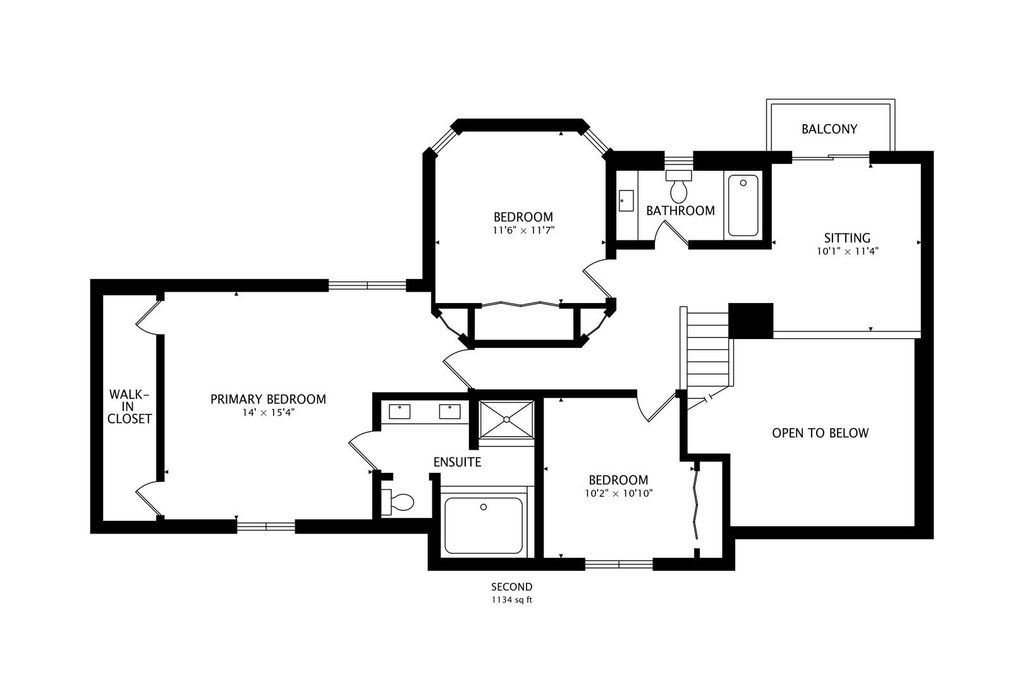
Prime Location - Just Steps from the Chain O' Lakes! Welcome to this stunning family home tucked away on a quiet street, designed with both comfort and style in mind. The beautifully updated kitchen features sleek quartz countertops with a matching backsplash, complemented by newly updated flooring throughout the main level. Perfect for entertaining, the open-concept floor plan flows effortlessly from room to room. Upstairs you'll find all bedrooms plus a versatile loft-ideal as a 4th bedroom, home office, or flex space. The luxurious primary suite offers a spa-like retreat with a jacuzzi tub, double sinks, separate shower, private toilet room, and a spacious walk-in closet with built-ins. Step outside to your backyard oasis! Enjoy a newer vinyl 6-foot privacy fence, tranquil water feature, cozy fire pit area, and a huge screened-in room that overlooks the expansive yard. A side-load garage with double-wide driveway plus an additional parking pad provides plenty of room for guests-or all your toys! The full basement with rough in for full bath adds even more potential for storage, recreation, or future living space. Don't miss your chance to own this beautiful home in the heart of the Chain O' Lakes! Main Level all oak hardwood floors , 2nd level new luxury vinyl flooring by Mohawk. waking distance to marina with boat slips available to lease .
DAYS ON MARKET | 1 | LAST UPDATED | 10/9/2025 |
---|---|---|---|
YEAR BUILT | 1995 | COMMUNITY | Antioch |
GARAGE SPACES | 2.0 | COUNTY | Lake |
STATUS | Active | PROPERTY TYPE(S) | Single Family |
ADDITIONAL DETAILS | |
AIR | Ceiling Fan(s), Central Air |
---|---|
AIR CONDITIONING | Yes |
APPLIANCES | Water Softener |
AREA | Antioch |
BASEMENT | Full, Partially Finished, Sump Pump, Yes |
CONSTRUCTION | Aluminum Siding, Steel Siding, Vinyl Siding |
EXTERIOR | Balcony |
FIREPLACE | Yes |
GARAGE | Yes |
HEAT | Forced Air, Natural Gas |
INTERIOR | Cathedral Ceiling(s), Walk-In Closet(s) |
LOT | 0.37 acre(s) |
LOT DIMENSIONS | 120X134.9 |
PARKING | Asphalt, Concrete, Garage Door Opener, On Site, Attached, Garage |
SEWER | Septic Tank |
STYLE | Traditional |
TAXES | 10933 |
WATER | Well |
MORTGAGE CALCULATOR
TOTAL MONTHLY PAYMENT
0
P
I
*Estimate only
SATELLITE VIEW |
/ | |
We respect your online privacy and will never spam you. By submitting this form with your telephone number
you are consenting for Humderto
Garcia to contact you even if your name is on a Federal or State
"Do not call List".
Listed with Baird & Warner
The data relating to real estate for sale on this web site comes in part from the Broker ReciprocitySM Program of MRED. All real estate listings are marked with the Broker ReciprocitySM logo or the MRED Broker ReciprocitySM thumbnail logo (a little black house) and detailed information about them includes the name of the listing brokers.
The broker providing these data believes them to be correct, but advises interested parties to confirm them before relying on them in a purchase decision.
Copyright 2025 MRED. All rights reserved.

The broker providing these data believes them to be correct, but advises interested parties to confirm them before relying on them in a purchase decision.
Copyright 2025 MRED. All rights reserved.

This IDX solution is (c) Diverse Solutions 2025.