|
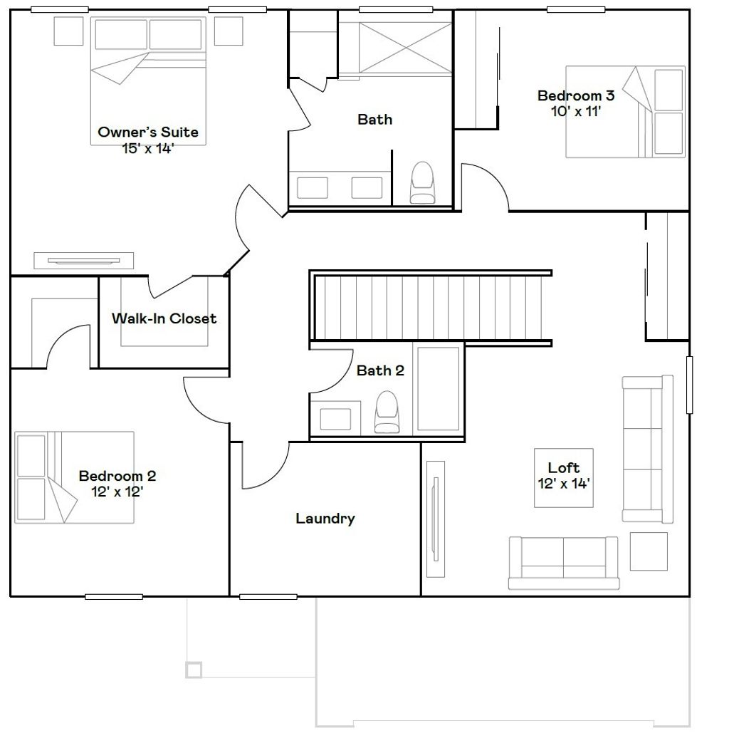
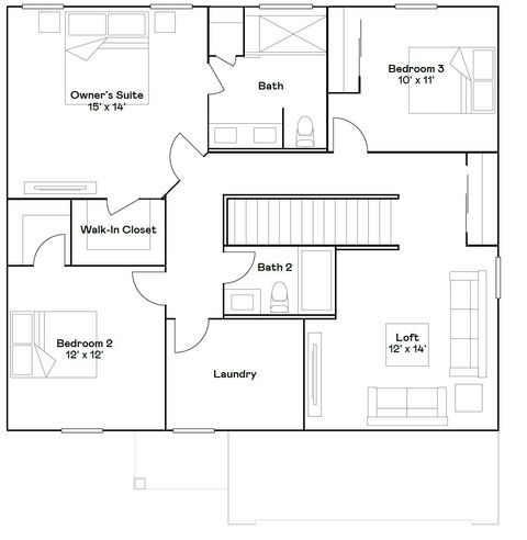
HOMESITE 37 Experience the Meadowlark model, a masterfully designed two-story home combining style and convenience. With three bedrooms, two bathrooms, and a powder room, this home offers the perfect space for modern living. The first floor features a bright, open-concept layout, with a spacious family room, accessible dining area, and an impressive kitchen. The kitchen includes a large island with beautiful countertops, ample cabinetry, stainless steel appliances, and a built-in pantry for added storage. Situated on the second floor, the owner's suite provides a peaceful haven, complete with a walk-in closet and a spa-inspired bathroom with double sinks, a deluxe shower, and high-end finishes. Two additional bedrooms share a full bathroom, and the practicality of a second-floor laundry room enhances the home's livability. The versatile loft and flex space offer endless possibilities for a home office, entertainment area, or extra living space to suit your needs. Throughout the home, thoughtful details like luxury vinyl plank flooring, quartz countertops, LED lighting, and decorative railings enhance both the aesthetic and functionality of every room. Exterior will be Bone color siding. (pic for reference ONLY). *Photos are not this actual home* "Hunter's Chase is a new community of single-family homes for sale in Beecher, IL, offering residents a peaceful lifestyle surrounded by open green spaces and scenic ponds. Enjoy outdoor activities and tranquil views right within your neighborhood. Families will appreciate the close proximity to local schools, making morning routines easier and school events more accessible. For those who love the outdoors, nearby nature preserves provide endless opportunities for hiking, exploring, and enjoying the natural beauty of the area. Convenience is key at Hunter's Chase, with easy access to downtown Beecher's shopping, dining, and community amenities just minutes away. Experience the perfect blend of peaceful living and everyday convenience at Hunter's Chase-a community designed to grow with you and your family.
| DAYS ON MARKET | 116 | LAST UPDATED | 11/20/2025 |
|---|---|---|---|
| TRACT | Hunters Chase | YEAR BUILT | 2025 |
| COMMUNITY | Beecher | GARAGE SPACES | 2.0 |
| COUNTY | Will | STATUS | Conditional |
| PROPERTY TYPE(S) | Single Family |
| School District | Beecher High School |
|---|---|
| Elementary School | Beecher Elementary School |
| Jr. High School | Beecher Junior High School |
| High School | Beecher High School |
| PRICE HISTORY | |
| Prior to Oct 29, '25 | $328,990 |
|---|---|
| Oct 29, '25 - Nov 4, '25 | $318,990 |
| Nov 4, '25 - Nov 18, '25 | $314,590 |
| Nov 18, '25 - Today | $307,840 |
| ADDITIONAL DETAILS | |
| AIR | Central Air |
|---|---|
| AIR CONDITIONING | Yes |
| AREA | Beecher |
| BASEMENT | Full, Unfinished, Yes |
| CONSTRUCTION | Brick, Vinyl Siding |
| GARAGE | Attached Garage, Yes |
| HEAT | Forced Air, Natural Gas |
| LOT | 0 |
| LOT DIMENSIONS | 8036 |
| PARKING | Asphalt, Garage Door Opener, Attached, Garage |
| SEWER | Public Sewer |
| SUBDIVISION | Hunters Chase |
| WATER | Public |
MORTGAGE CALCULATOR
TOTAL MONTHLY PAYMENT
0
P
I
*Estimate only
| SATELLITE VIEW |
| / | |
We respect your online privacy and will never spam you. By submitting this form with your telephone number
you are consenting for Humderto
Garcia to contact you even if your name is on a Federal or State
"Do not call List".
Listed with HomeSmart Connect LLC
The data relating to real estate for sale on this web site comes in part from the Broker ReciprocitySM Program of MRED. All real estate listings are marked with the Broker ReciprocitySM logo or the MRED Broker ReciprocitySM thumbnail logo (a little black house) and detailed information about them includes the name of the listing brokers.
The broker providing these data believes them to be correct, but advises interested parties to confirm them before relying on them in a purchase decision.
Copyright 2026 MRED. All rights reserved.

The broker providing these data believes them to be correct, but advises interested parties to confirm them before relying on them in a purchase decision.
Copyright 2026 MRED. All rights reserved.
This IDX solution is (c) Diverse Solutions 2026.