|
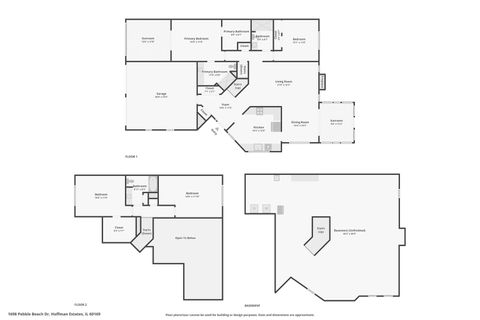
Welcome to this unique and spacious 4 bed, 3 bath townhome located in the highly sought-after Pebble Beach community-right on the golf course! This exceptional home offers a rare blend of comfort and character, featuring a stunning enclosed sunroom and a heated solarium in the first-floor primary suite-perfect for enjoying all seasons in style. You'll love the soaring high ceilings and cozy fireplace in the living room, paired with a separate formal dining area for entertaining. The kitchen boasts granite countertops, newer appliances, and plenty of space to cook and gather. A nearby closet is currently used as a pantry but is fully equipped with laundry hookups for added convenience. The versatile floor plan offers two bedrooms on the main level, including the spacious primary suite, and two generously sized bedrooms upstairs-each with excellent closet space. Need more room? The massive unfinished basement is a blank canvas ready for your personal touch. Additional highlights include an attached 2-car garage, brand new roof in 2024, amazing storage throughout, and a prime location close to highways, parks, shopping, dining, and of course, world-class golf. Don't miss your opportunity to own this one-of-a-kind home in Pebble Beach!
DAYS ON MARKET | -2 | LAST UPDATED | 10/9/2025 |
---|---|---|---|
YEAR BUILT | 1986 | COMMUNITY | Hoffman Estates |
GARAGE SPACES | 2.0 | COUNTY | Cook |
STATUS | Active | PROPERTY TYPE(S) | Condo/Townhouse/Co-Op |
School District | Hoffman Estates High School |
---|---|
Jr. High School | Dwight D Eisenhower Elementary S |
High School | Hoffman Estates High School |
ADDITIONAL DETAILS | |
AIR | Ceiling Fan(s), Central Air, Whole House Fan |
---|---|
AIR CONDITIONING | Yes |
APPLIANCES | Dishwasher, Disposal, Dryer, Humidifier, Microwave, Range, Refrigerator, Stainless Steel Appliance(s), Washer |
AREA | Hoffman Estates |
BASEMENT | Full, Sump Pump, Unfinished, Yes |
CONSTRUCTION | Brick |
FIREPLACE | Yes |
GARAGE | Yes |
HEAT | Forced Air, Natural Gas |
HOA DUES | 400 |
INTERIOR | Storage, Vaulted Ceiling(s) |
LOT | 0 |
LOT DESCRIPTION | Cul-de-sac, On Golf Course |
LOT DIMENSIONS | 2111 |
PARKING | Concrete, Garage Door Opener, On Site, Attached, Garage |
SEWER | Public Sewer |
STORIES | 2 |
TAXES | 8649 |
UTILITIES | Cable Available |
MORTGAGE CALCULATOR
TOTAL MONTHLY PAYMENT
0
P
I
*Estimate only
SATELLITE VIEW |
/ | |
We respect your online privacy and will never spam you. By submitting this form with your telephone number
you are consenting for Humderto
Garcia to contact you even if your name is on a Federal or State
"Do not call List".
Listed with Redfin Corporation
The data relating to real estate for sale on this web site comes in part from the Broker ReciprocitySM Program of MRED. All real estate listings are marked with the Broker ReciprocitySM logo or the MRED Broker ReciprocitySM thumbnail logo (a little black house) and detailed information about them includes the name of the listing brokers.
The broker providing these data believes them to be correct, but advises interested parties to confirm them before relying on them in a purchase decision.
Copyright 2025 MRED. All rights reserved.

The broker providing these data believes them to be correct, but advises interested parties to confirm them before relying on them in a purchase decision.
Copyright 2025 MRED. All rights reserved.

This IDX solution is (c) Diverse Solutions 2025.