|
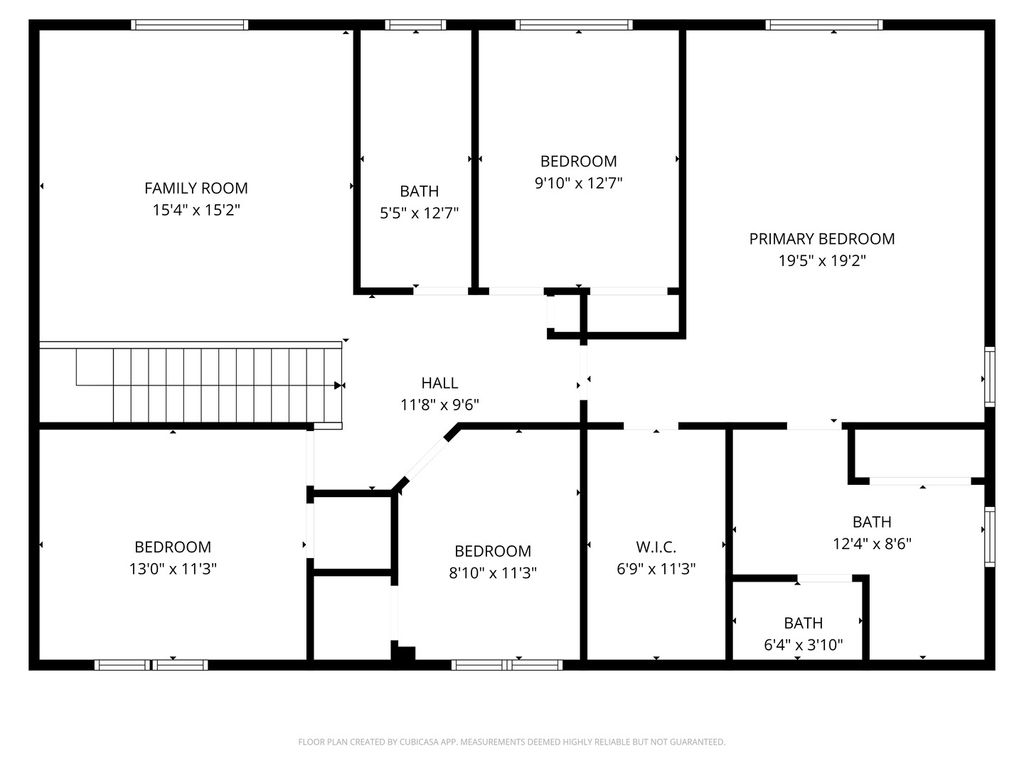
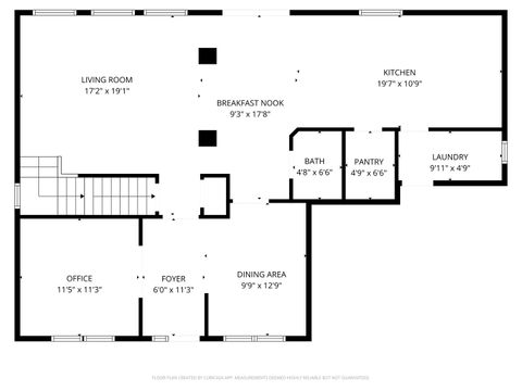
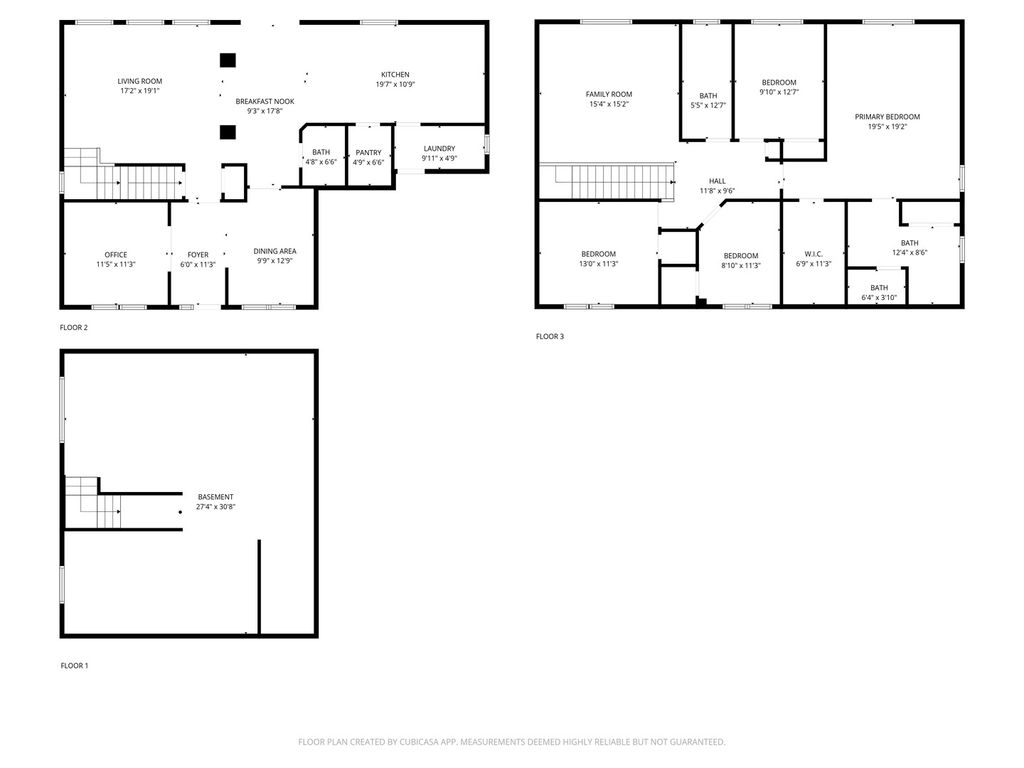
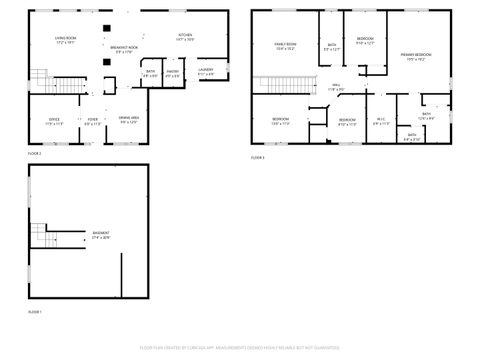
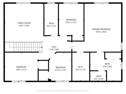
This one will check all the boxes. A well thought out Tuscan floor plan, nestled in the quiet neighborhood of the Estates of Lions Chase. The home offers 4 bedrooms and 2 and a half baths. The first level welcomes you with a bright entryway framed with an enclosed office with French doors and a dining room. The kitchen has updated cabinetry, Level 6 granite countertops, center island, large walk-in pantry with an upgraded frosted glass door, and newer black appliances. The open-concept layout seamlessly connects the kitchen, eating area, and family room, making it ideal for both entertaining and everyday living. Upstairs, you'll find a spacious loft, the primary suite, and three additional bedrooms. The primary suite features a private bathroom with elevated dual sinks, a walk-in shower, a huge linen closet, and a walk-in closet. The additional bedrooms share a full bath with an elevated dual vanity for added convenience. An unfinished basement with crawl space and bathroom rough-in provides plenty of storage or the opportunity to create your dream space. Outside, enjoy an extended patio with a built-in fire pit and a HUGE backyard - perfect for relaxing or entertaining. Walk a couple short blocks to the neighborhood walking path to Betsy Warrington, Deicke Park, Stingray Bay, Park District Fishing Ponds and Sledding Hill. Plus you can walk to the many events hosted downtown such as the Concerts in the Park, Seasonal Farmer's Market, 4th of July Parade,Christmas Kick Off Events in December, Huntley Fall Fest and watch the fireworks shows for 4th of July and Fall Fest from your Front Yard. Not to mention, a five minute drive to I-90. Schedule your visit now!
| DAYS ON MARKET | 12 | LAST UPDATED | 10/23/2025 |
|---|---|---|---|
| TRACT | Lions Chase | YEAR BUILT | 2014 |
| COMMUNITY | Huntley | GARAGE SPACES | 2.0 |
| COUNTY | McHenry | STATUS | Conditional |
| PROPERTY TYPE(S) | Single Family |
| School District | Huntley High School |
|---|---|
| Elementary School | Leggee Elementary School |
| Jr. High School | Heineman Middle School |
| High School | Huntley High School |
| ADDITIONAL DETAILS | |
| AIR | Ceiling Fan(s), Central Air |
|---|---|
| AIR CONDITIONING | Yes |
| AMENITIES | Insurance |
| APPLIANCES | Humidifier |
| AREA | Huntley |
| BASEMENT | Bath/Stubbed, Full, Sump Pump, Unfinished, Yes |
| CONSTRUCTION | Vinyl Siding |
| GARAGE | Yes |
| HEAT | Natural Gas |
| HOA DUES | 615 |
| INTERIOR | Walk-In Closet(s) |
| LOT | 0.312 acre(s) |
| LOT DIMENSIONS | 95 x 143 |
| PARKING | Asphalt, Garage Door Opener, On Site, Attached, Garage |
| SEWER | Public Sewer |
| STYLE | Traditional |
| SUBDIVISION | Lions Chase |
| TAXES | 9731 |
| WATER | Public |
MORTGAGE CALCULATOR
TOTAL MONTHLY PAYMENT
0
P
I
*Estimate only
| SATELLITE VIEW |
| / | |
We respect your online privacy and will never spam you. By submitting this form with your telephone number
you are consenting for Humderto
Garcia to contact you even if your name is on a Federal or State
"Do not call List".
Listed with Baird & Warner
The data relating to real estate for sale on this web site comes in part from the Broker ReciprocitySM Program of MRED. All real estate listings are marked with the Broker ReciprocitySM logo or the MRED Broker ReciprocitySM thumbnail logo (a little black house) and detailed information about them includes the name of the listing brokers.
The broker providing these data believes them to be correct, but advises interested parties to confirm them before relying on them in a purchase decision.
Copyright 2025 MRED. All rights reserved.

The broker providing these data believes them to be correct, but advises interested parties to confirm them before relying on them in a purchase decision.
Copyright 2025 MRED. All rights reserved.
This IDX solution is (c) Diverse Solutions 2025.