|
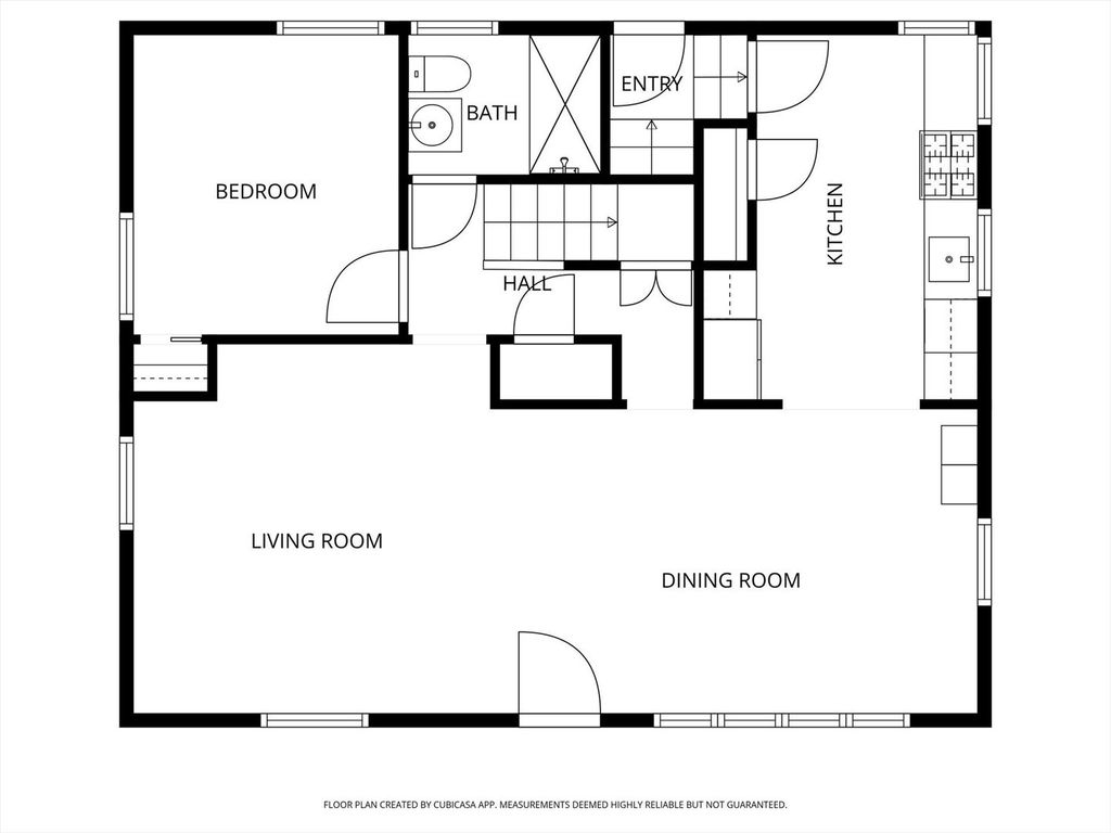
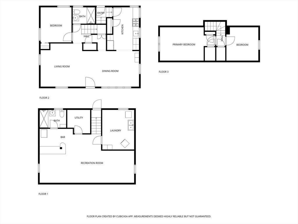
WE HAVE RECEIVED MULTIPLE OFFERS. PLEASE SUBMIT YOUR HIGHEST AND BEST OFFER BY TUESDAY NOVEMBER 11th AT 3:00. "Your updated, affordable dream home." This charming 1.5-story home has been beautifully refreshed and is ready to impress! Featuring a spacious main-level bedroom and an open floor plan that flows effortlessly into a bright, updated kitchen with stainless steel appliances, a pantry closet, and brand-new flooring - this home truly shines. Fresh paint throughout and new doors add a bright, modern feel, while the main-level full bathroom has also been tastefully updated about 10 years ago. Upstairs, you'll find a large bonus room located across the hall from the second bedroom - ideal for a third bedroom, a home office, or even a playroom or guest space. The semi-finished basement is perfect for entertaining, complete with a full bar and an additional full bath. You won't find another home in this condition and price range in South Elgin. Once it hits the market, it won't last long.
| DAYS ON MARKET | 30 | LAST UPDATED | 11/13/2025 |
|---|---|---|---|
| YEAR BUILT | 1955 | COMMUNITY | South Elgin |
| GARAGE SPACES | 2.5 | COUNTY | Kane |
| STATUS | Conditional | PROPERTY TYPE(S) | Single Family |
| School District | South Elgin High School |
|---|---|
| Elementary School | Willard Elementary School |
| Jr. High School | Kenyon Woods Middle School |
| High School | South Elgin High School |
| ADDITIONAL DETAILS | |
| AIR | Window Unit(s) |
|---|---|
| AIR CONDITIONING | Yes |
| APPLIANCES | Dishwasher, Dryer, Microwave, Range, Stainless Steel Appliance(s), Washer |
| AREA | South Elgin |
| BASEMENT | Finished, Full, Partially Finished, Yes |
| CONSTRUCTION | Vinyl Siding |
| GARAGE | Yes |
| HEAT | Radiant |
| INTERIOR | Open Floorplan |
| LOT | 6970 sq ft |
| LOT DESCRIPTION | Corner Lot |
| LOT DIMENSIONS | 50X139X50X139 |
| PARKING | Concrete, Detached, Driveway, Garage |
| SEWER | Public Sewer |
| STYLE | Cape Cod |
| TAXES | 5442 |
| WATER | Public |
MORTGAGE CALCULATOR
TOTAL MONTHLY PAYMENT
0
P
I
*Estimate only
| SATELLITE VIEW |
| / | |
We respect your online privacy and will never spam you. By submitting this form with your telephone number
you are consenting for Humderto
Garcia to contact you even if your name is on a Federal or State
"Do not call List".
Listed with Inspire Realty Group LLC
The data relating to real estate for sale on this web site comes in part from the Broker ReciprocitySM Program of MRED. All real estate listings are marked with the Broker ReciprocitySM logo or the MRED Broker ReciprocitySM thumbnail logo (a little black house) and detailed information about them includes the name of the listing brokers.
The broker providing these data believes them to be correct, but advises interested parties to confirm them before relying on them in a purchase decision.
Copyright 2025 MRED. All rights reserved.

The broker providing these data believes them to be correct, but advises interested parties to confirm them before relying on them in a purchase decision.
Copyright 2025 MRED. All rights reserved.
This IDX solution is (c) Diverse Solutions 2025.