|
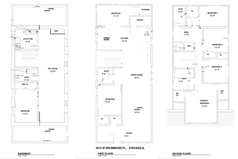
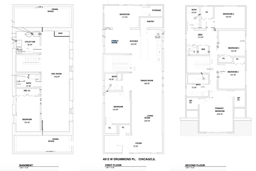
Largest Bungalow in the area. Excellent layout with 4 decent size bedrooms on 2nd floor. Experience the perfect blend of timeless character and contemporary luxury in this masterfully rehabbed 6-bedroom, 4-bath home. Behind its sleek Hardie-board facade, discover an expansive, sun-drenched interior defined by the thoughtful craftsmanship of an attentive to detail builder. The main level welcomes you with a gracious entry porch leading into open-concept living and formal dining areas. A bright kitchen-featuring crisp white cabinetry, and a butler's pantry, all flowing seamlessly into a sunny breakfast nook/family room. Sliding doors open to a sprawling new deck, ideal for al-fresco entertaining overlooking the private yard and a 2-car brick garage. The upper-level headquarters features four generous bedrooms, including a serene primary suite. This private retreat boasts dual closets and a spa-like marble bath with a double shower. A dedicated sitting area and convenient laundry hook-ups complete this floor. The finished lower level adds incredible versatility with a 5th bedroom, full bath, and a spacious playroom/family area-plus a second laundry room with ample storage. With over 3,000 square feet of refined living space, and nestled on an extra wide (4,216 sq. ft) lot, this home is a sanctuary designed for both comfort and style. Super convenient location in highly rated Falconer Elementary School district, with New Starbucks, grocery stores, local shops and highly regarded restaurants Such as Sol de Mexico, on nearby Diversey and Cicero Aves or Central/Belmont area. This move-in-ready gem is designed for today's sophisticated lifestyle and you can make it yours now!
| DAYS ON MARKET | 148 | LAST UPDATED | 2/27/2026 |
|---|---|---|---|
| YEAR BUILT | 1922 | COMMUNITY | CHI - Belmont Cragin |
| GARAGE SPACES | 2.0 | COUNTY | Cook |
| STATUS | Active | PROPERTY TYPE(S) | Single Family |
| School District | Foreman High School |
|---|---|
| Elementary School | Falconer Elementary School |
| Jr. High School | Falconer Elementary School |
| High School | Foreman High School |
| ADDITIONAL DETAILS | |
| AIR | Central Air, Zoned |
|---|---|
| AIR CONDITIONING | Yes |
| APPLIANCES | Dishwasher, Dryer, ENERGY STAR Qualified Appliances, Gas Cooktop, Range, Range Hood, Refrigerator, Stainless Steel Appliance(s), Washer, Wine Refrigerator |
| AREA | CHI - Belmont Cragin |
| BASEMENT | Finished, Full, Yes |
| CONSTRUCTION | Brick, Fiber Cement, Frame, Vinyl Siding |
| GARAGE | Yes |
| HEAT | Forced Air, Natural Gas, Zoned |
| INTERIOR | Dry Bar, Open Floorplan, Walk-In Closet(s) |
| LOT | 0 |
| LOT DESCRIPTION | Landscaped |
| LOT DIMENSIONS | 33 x 125 |
| PARKING | Garage Door Opener, Detached, Garage |
| SEWER | Public Sewer |
| STYLE | Bungalow |
| TAXES | 5568.42 |
| WATER | Public |
MORTGAGE CALCULATOR
TOTAL MONTHLY PAYMENT
0
P
I
*Estimate only
| SATELLITE VIEW |
| / | |
We respect your online privacy and will never spam you. By submitting this form with your telephone number
you are consenting for Humderto
Garcia to contact you even if your name is on a Federal or State
"Do not call List".
Listed with Compass
The data relating to real estate for sale on this web site comes in part from the Broker ReciprocitySM Program of MRED. All real estate listings are marked with the Broker ReciprocitySM logo or the MRED Broker ReciprocitySM thumbnail logo (a little black house) and detailed information about them includes the name of the listing brokers.
The broker providing these data believes them to be correct, but advises interested parties to confirm them before relying on them in a purchase decision.
Copyright 2026 MRED. All rights reserved.

The broker providing these data believes them to be correct, but advises interested parties to confirm them before relying on them in a purchase decision.
Copyright 2026 MRED. All rights reserved.
This IDX solution is (c) Diverse Solutions 2026.