|
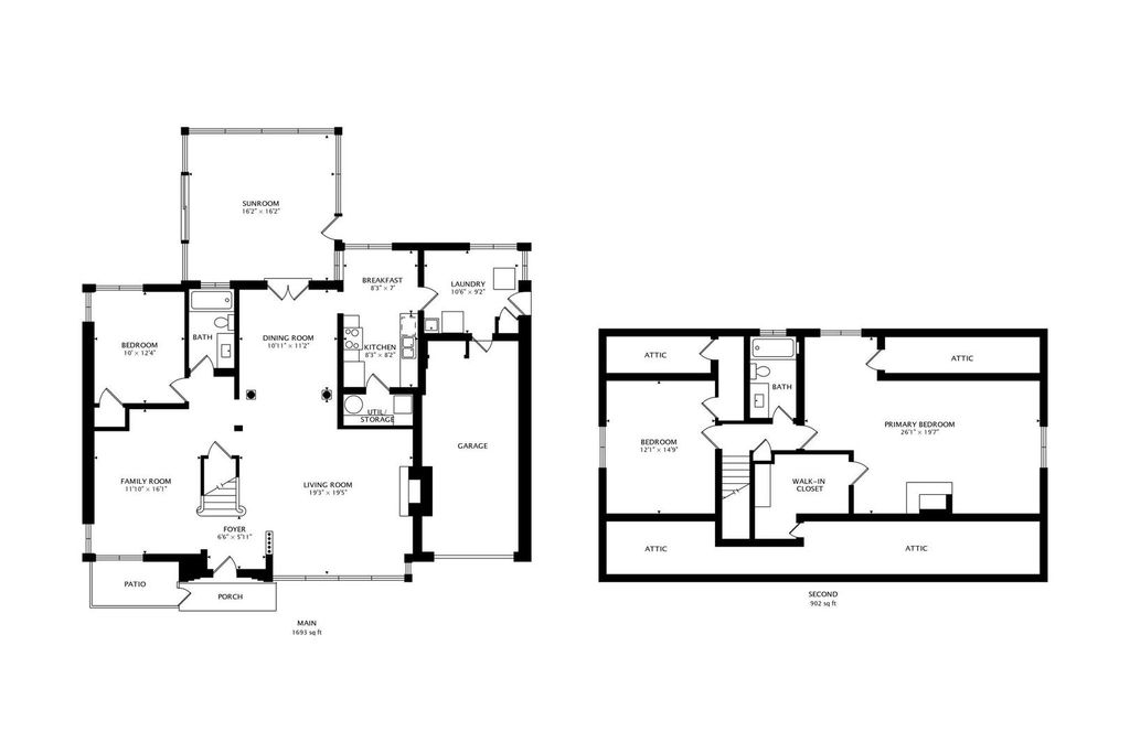
Tucked away in a peaceful neighborhood, this beautifully updated Wilmette residence blends classic charm with modern sophistication. Featuring 3 spacious bedrooms and 2 baths, this two-story home offers 2,595 square feet of beautifully finished living space designed for comfort, style, and connection. Nestled at the front of the home is a Zen-inspired garden with a calming fountain and restful seating which invites moments of quiet retreat and private escape. Step inside to a bright and inviting living room with a charming fireplace, perfect for cozy evenings. The open dining area and family room create a warm flow for entertaining and everyday living, while the well-appointed kitchen overlooks the lush, professionally landscaped backyard - a private oasis ideal for morning coffee or weekend gatherings. Throughout the main floor, new elegant flooring enhances the home's refined ambiance. Upstairs, the primary bedroom impresses with a walk-in closet and updated hall bathroom. The second floor bedrooms and hallway have been freshly painted, creating a crisp and contemporary atmosphere. Every corner of this home has been thoughtfully maintained to reflect enduring quality and comfort. Adding to its thoughtful design, the home offers three separate attic spaces - an abundance of smart, flexible storage that enhances the home's functionality maintaining a decluttered sense of space. Recent upgrades include newer windows throughout, updated eat-in kitchen, full sized laundry room, fully renovated bathrooms, new flooring on the first level, a newer fence, and newer hot water heater, fully insulated attics - and the list goes on. These enhancements ensure both lasting comfort and peace of mind. Outside, a fully fenced yard and mature trees provide both privacy and beauty. With a 1-car attached garage and additional covered car port, this home is move-in ready and blends timeless appeal with today's lifestyle needs. This home is located within the award-winning Avoca West Elementary, Marie Murphy Junior High, and nationally acclaimed New Trier High School districts. The school district also offers exceptional pre-K and full-day kindergarten programs. Nearby, Loyola Academy College Prep and North Shore Country Day School provide additional academic options, creating an unparalleled path for lifelong success. From its warm natural light to its serene garden views, every detail of 3226 Sprucewood Road invites you to imagine a life well-lived - morning strolls under tree-lined streets, laughter-filled dinners, and a community that feels like home. Discover why Wilmette is one of the North Shore's cherished addresses. Schedule your private showing today and step into the perfect blend of elegance, comfort, and opportunity.
| DAYS ON MARKET | -124 | LAST UPDATED | 10/23/2025 |
|---|---|---|---|
| YEAR BUILT | 1958 | COMMUNITY | Wilmette |
| GARAGE SPACES | 1.0 | COUNTY | Cook |
| STATUS | Active | PROPERTY TYPE(S) | Single Family |
| School District | New Trier Twp H.S. Northfield/Wi |
|---|---|
| Elementary School | Avoca West Elementary School |
| Jr. High School | Marie Murphy School |
| High School | New Trier Twp H.S. Northfield/Wi |
| ADDITIONAL DETAILS | |
| AIR | Central Air |
|---|---|
| AIR CONDITIONING | Yes |
| APPLIANCES | Dishwasher, Disposal, Dryer, Microwave, Range, Refrigerator, Washer |
| AREA | Wilmette |
| BASEMENT | None |
| CONSTRUCTION | Aluminum Siding, Brick |
| EXTERIOR | Dog Run |
| FIREPLACE | Yes |
| GARAGE | Yes |
| HEAT | Forced Air, Natural Gas |
| INTERIOR | Walk-In Closet(s) |
| LOT | 0 |
| LOT DIMENSIONS | 74 x 128 x 74 x 123 |
| PARKING | Carport, On Site, Attached, Garage |
| SEWER | Public Sewer |
| TAXES | 9277.63 |
MORTGAGE CALCULATOR
TOTAL MONTHLY PAYMENT
0
P
I
*Estimate only
| SATELLITE VIEW |
| / | |
We respect your online privacy and will never spam you. By submitting this form with your telephone number
you are consenting for Humderto
Garcia to contact you even if your name is on a Federal or State
"Do not call List".
Listed with @properties Christie's International Real Estate
The data relating to real estate for sale on this web site comes in part from the Broker ReciprocitySM Program of MRED. All real estate listings are marked with the Broker ReciprocitySM logo or the MRED Broker ReciprocitySM thumbnail logo (a little black house) and detailed information about them includes the name of the listing brokers.
The broker providing these data believes them to be correct, but advises interested parties to confirm them before relying on them in a purchase decision.
Copyright 2025 MRED. All rights reserved.

The broker providing these data believes them to be correct, but advises interested parties to confirm them before relying on them in a purchase decision.
Copyright 2025 MRED. All rights reserved.
This IDX solution is (c) Diverse Solutions 2025.