|
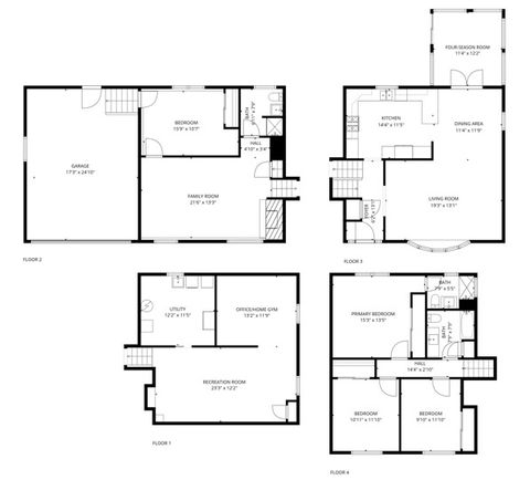
Welcome to this beautifully maintained 4-bedroom, 3-bath, four-level home in Indian Lakes Subdivision! Offering move-in-ready living with thoughtful updates throughout. Situated on approximately half an acre, this property features a bright Four Season Room with year round comfort while overlooking the backyard oasis with an above-ground pool, custom two-level deck, pergola, and concrete patio - perfect for entertaining/hosting or relaxing, you'll forget you're at home! The Gourmet kitchen features Quartz countertops, stainless steel appliances, and ample cabinetry. Hardwood floors flow throughout the main level & bedrooms. Over 2,500+ finished square footage. Updates since 2022 include a Professionally Finished Custom Basement with recessed lighting, CAT6 wiring, perfect for a Man Cave or Rec room including 3 TV's! It extends around to what could be an office, home gym, storage, craft room, you get to decide! Some updates include new water heater, radon mitigation system, fresh paint, Samsung Smart washer/dryer, sump pump, myQ operator and more! Attached 2-car garage with a concrete driveway allowing up to 8 cars. District 13/Lake Park 108 including bus service. Close to I-355, Metra, shopping, and plenty of dining. Conveying As-is with a 1-year warranty for peace of mind. Showings start Saturday, 10/18! Agent owned.
| DAYS ON MARKET | 16 | LAST UPDATED | 10/20/2025 |
|---|---|---|---|
| YEAR BUILT | 1968 | COMMUNITY | Bloomingdale |
| GARAGE SPACES | 2.0 | COUNTY | DuPage |
| STATUS | Conditional | PROPERTY TYPE(S) | Single Family |
| School District | Lake Park High School |
|---|---|
| Elementary School | Erickson Elementary School |
| Jr. High School | Westfield Middle School |
| High School | Lake Park High School |
| ADDITIONAL DETAILS | |
| AIR | Central Air |
|---|---|
| AIR CONDITIONING | Yes |
| AREA | Bloomingdale |
| BASEMENT | Finished, Full, Yes |
| CONSTRUCTION | Brick, Vinyl Siding |
| FIREPLACE | Yes |
| GARAGE | Yes |
| HEAT | Natural Gas |
| LOT | 0.47 acre(s) |
| LOT DIMENSIONS | 100 X 204 |
| PARKING | Concrete, On Site, Attached, Garage |
| SEWER | Public Sewer |
| TAXES | 8932 |
| WATER | Public |
MORTGAGE CALCULATOR
TOTAL MONTHLY PAYMENT
0
P
I
*Estimate only
| SATELLITE VIEW |
| / | |
We respect your online privacy and will never spam you. By submitting this form with your telephone number
you are consenting for Humderto
Garcia to contact you even if your name is on a Federal or State
"Do not call List".
Listed with HomeSmart Connect LLC
The data relating to real estate for sale on this web site comes in part from the Broker ReciprocitySM Program of MRED. All real estate listings are marked with the Broker ReciprocitySM logo or the MRED Broker ReciprocitySM thumbnail logo (a little black house) and detailed information about them includes the name of the listing brokers.
The broker providing these data believes them to be correct, but advises interested parties to confirm them before relying on them in a purchase decision.
Copyright 2025 MRED. All rights reserved.

The broker providing these data believes them to be correct, but advises interested parties to confirm them before relying on them in a purchase decision.
Copyright 2025 MRED. All rights reserved.
This IDX solution is (c) Diverse Solutions 2025.