|
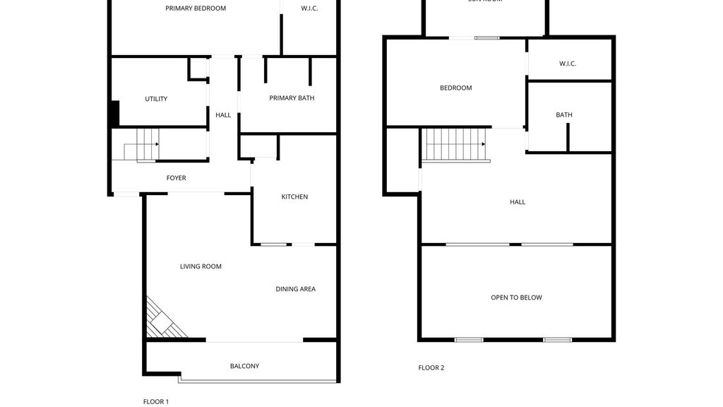
Welcome Home! Experience elevated suburban living in this spacious and beautifully maintained 2-bedroom, 2-bathroom residence with a heated sun room and an airy loft-perfect as a home office, reading nook, or creative studio. Nestled in a quiet, wooded corner of Orland Park, this stunning top-floor unit combines comfort, elegance, and convenience in one inviting package. Soaring cathedral ceilings and expansive windows fill the home with natural light, enhancing the open-concept design and creating an atmosphere of warmth and sophistication. The loft overlooks the grand living area, adding architectural charm and a true sense of space. Enjoy the fresh, clean feel of this move-in-ready home, complete with a large private balcony ideal for morning coffee or evening relaxation. Storage abounds with generous closets, a two-car tandem garage, and an additional storage unit. Located just minutes from everything Orland Park and Tinley Park have to offer-shopping, dining, parks, and entertainment-plus easy access to downtown Chicago via the nearby Rock Island Metra line (only 10 minutes away). Off-street visitor parking adds extra convenience for guests. Discover a perfect blend of tranquility, modern design, and connectivity-your next chapter begins here!
| DAYS ON MARKET | 47 | LAST UPDATED | 10/23/2025 |
|---|---|---|---|
| YEAR BUILT | 1995 | COMMUNITY | Orland Park |
| GARAGE SPACES | 2.0 | COUNTY | Cook |
| STATUS | Conditional | PROPERTY TYPE(S) | Condo/Townhouse/Co-Op |
| School District | Victor J Andrew High School |
|---|---|
| High School | Victor J Andrew High School |
| ADDITIONAL DETAILS | |
| AIR | Central Air |
|---|---|
| AIR CONDITIONING | Yes |
| AMENITIES | Insurance, Snow Removal |
| AREA | Orland Park |
| BASEMENT | None |
| CONSTRUCTION | Brick |
| FIREPLACE | Yes |
| GARAGE | Yes |
| HEAT | Natural Gas |
| HOA DUES | 268 |
| INTERIOR | Storage |
| LOT | 0 |
| LOT DIMENSIONS | Condo |
| PARKING | Tandem, On Site, Attached, Garage |
| SEWER | Public Sewer |
| STORIES | 2 |
| TAXES | 1672 |
MORTGAGE CALCULATOR
TOTAL MONTHLY PAYMENT
0
P
I
*Estimate only
| SATELLITE VIEW |
| / | |
We respect your online privacy and will never spam you. By submitting this form with your telephone number
you are consenting for Humderto
Garcia to contact you even if your name is on a Federal or State
"Do not call List".
Listed with Keller Williams ONEChicago
The data relating to real estate for sale on this web site comes in part from the Broker ReciprocitySM Program of MRED. All real estate listings are marked with the Broker ReciprocitySM logo or the MRED Broker ReciprocitySM thumbnail logo (a little black house) and detailed information about them includes the name of the listing brokers.
The broker providing these data believes them to be correct, but advises interested parties to confirm them before relying on them in a purchase decision.
Copyright 2025 MRED. All rights reserved.

The broker providing these data believes them to be correct, but advises interested parties to confirm them before relying on them in a purchase decision.
Copyright 2025 MRED. All rights reserved.
This IDX solution is (c) Diverse Solutions 2025.