|
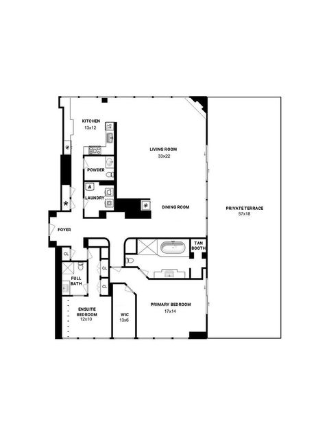
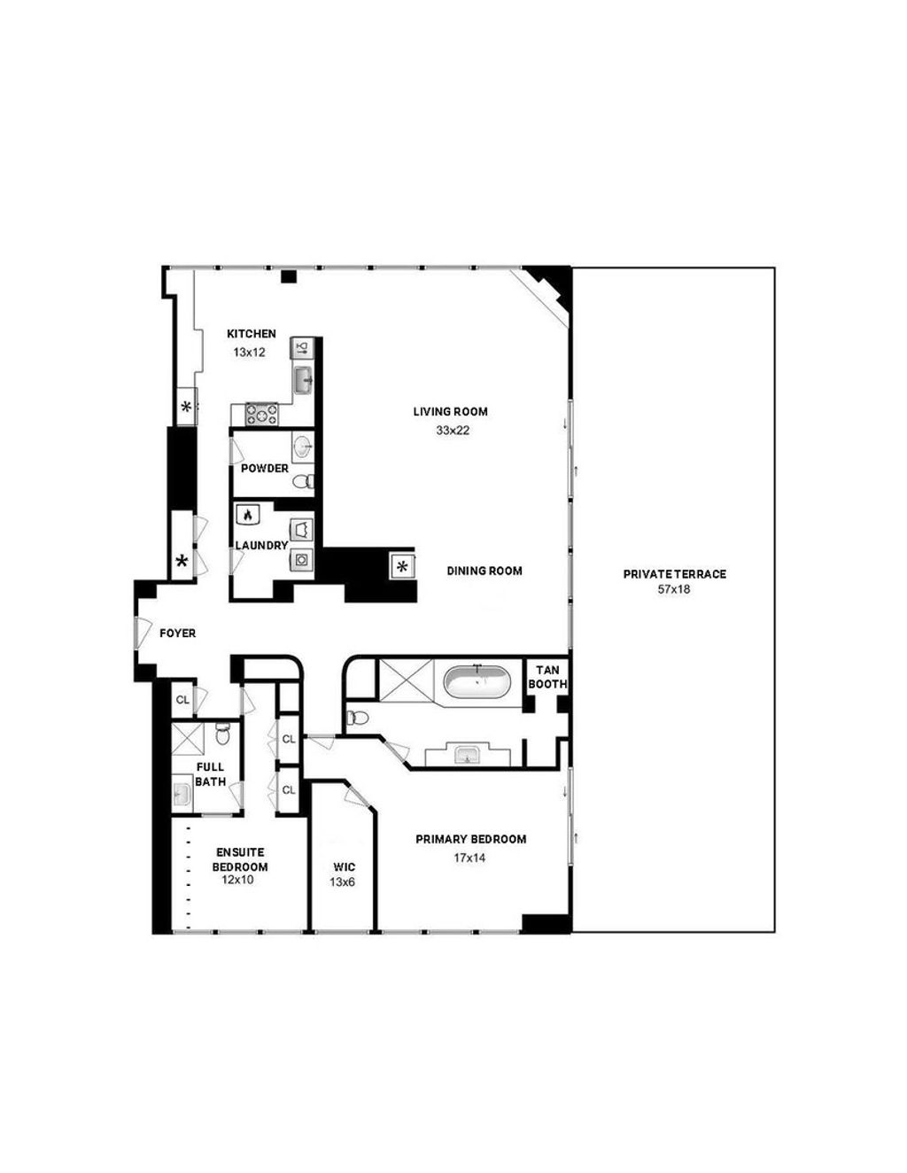
Incredible, one-of-a-kind downtown penthouse with 2200 SQFT of interior living space and a 1000 SQFT terrace at Metropolitan Place! This home was previously lived in and designed by internationally acclaimed interior designer, John Wiltgen. After waiting several years for such a residence to come available, Wiltgen took meticulous care in his redesign of the home and selection of the materials, the result of which is a sumptuous delight for the senses and nothing short of perfection. Upon entry, Venetian plaster columns, architectural sconces, and silver leaf mirrors adorn the gallery while diagonal hardwood flooring leads you through a hall of mirrors into the living and dining room. New timber ceilings throughout the living space and primary suite, adding another layer of rich texture to the home. The large living room overlooks the lush, private terrace. One corner of the living room features a Calypso quartzite gas fireplace, providing an intimate setting. The dining area is clearly delineated by a show-stopping chandelier hovering over the dining table. The interior space within the public rooms flows seamlessly into the exterior, easily accommodating 100 or more guests. The 1,000 SQFT terrace is larger than most Chicago backyards. This truly special space features show-stopping views of the Sears Tower and downtown skyline and has new pavers, irrigation, a gas line, custom exterior lighting, and abundant space to entertain, dine, or simply relax. The kitchen is a lesson in layered minimalism as it balances a sleek confection of lizard-embossed, custom dyed leather cabinetry with the sleek metallic finish of the remaining kitchen cabinets. Other highlights include Cambria quartz counters, backsplash, and waterfall detail along with Sub-Zero, Viking, and Bosch appliances. A second Sub-Zero refrigerator is discreetly tucked away in the hallway. Backlit floating mirrors reflect the architecture of Metropolitan Place in a stunning powder room featuring a Macassar ebony vanity and a custom Swarovski crystal chandelier. Truly a sanctuary, the primary suite features a spacious bedroom, custom walk-in closet, and walls padded in sound absorbing raw silk and lined draperies, which creates a peaceful retreat from the outside world. Sliding glass doors provide immediate access to the terrace. The ensuite bath has heated floors, oversized shower, separate tub, a tanning booth, and cerused white oak paneling, vanity, and linen closet. The flexible guest bedroom suite includes a custom lacquered built-in storage wall with Murphy bed. This space can easily double as a dressing room or yoga studio. The ensuite bath has marble tiled walls and an oversized shower. A laundry room with LG washer and LE dryer completes this space. Two parking spaces in the attached garage and a large storage unit are included in the price. Metropolitan Place is a quiet, well-maintained building with attentive 24-hour door staff and responsive, professional onsite management. Building amenities include a fitness room and a common roof deck. This home is located within Skinner West Elementary school district and one mile from both Jones College Prep and Whitney Young and just steps away from everything the Loop and West Loop have to offer including a 10 minute walk to the Lyric Opera House, 10 min cab ride to a hockey or football game, and within close proximity to restaurants, theaters, nightlife, public transportation, and the expressway. Welcome home!
| DAYS ON MARKET | 17 | LAST UPDATED | 10/17/2025 |
|---|---|---|---|
| YEAR BUILT | 1949 | COMMUNITY | CHI - Near West Side |
| GARAGE SPACES | 2.0 | COUNTY | Cook |
| STATUS | Active | PROPERTY TYPE(S) | Condo/Townhouse/Co-Op |
| School District | Wells Community Academy Senior H |
|---|---|
| Elementary School | Skinner Elementary School |
| Jr. High School | Skinner Elementary School |
| High School | Wells Community Academy Senior H |
| ADDITIONAL DETAILS | |
| AIR | Central Air |
|---|---|
| AIR CONDITIONING | Yes |
| AMENITIES | Insurance, Internet, Security, Snow Removal, Water |
| APPLIANCES | Dishwasher, Dryer, Freezer, Microwave, Range, Refrigerator, Washer |
| AREA | CHI - Near West Side |
| BASEMENT | None |
| CONSTRUCTION | Concrete |
| FIREPLACE | Yes |
| GARAGE | Attached Garage, Yes |
| HEAT | Forced Air, Radiant Floor |
| HOA DUES | 2055 |
| INTERIOR | Built-in Features, Elevator, Walk-In Closet(s) |
| LOT | 0 |
| LOT DIMENSIONS | COMMON |
| PARKING | On Site, Attached, Garage |
| SEWER | Public Sewer |
| STORIES | 9 |
| TAXES | 16270 |
MORTGAGE CALCULATOR
TOTAL MONTHLY PAYMENT
0
P
I
*Estimate only
| SATELLITE VIEW |
| / | |
We respect your online privacy and will never spam you. By submitting this form with your telephone number
you are consenting for Humderto
Garcia to contact you even if your name is on a Federal or State
"Do not call List".
Listed with @properties Christie's International Real Estate
The data relating to real estate for sale on this web site comes in part from the Broker ReciprocitySM Program of MRED. All real estate listings are marked with the Broker ReciprocitySM logo or the MRED Broker ReciprocitySM thumbnail logo (a little black house) and detailed information about them includes the name of the listing brokers.
The broker providing these data believes them to be correct, but advises interested parties to confirm them before relying on them in a purchase decision.
Copyright 2025 MRED. All rights reserved.

The broker providing these data believes them to be correct, but advises interested parties to confirm them before relying on them in a purchase decision.
Copyright 2025 MRED. All rights reserved.
This IDX solution is (c) Diverse Solutions 2025.