|
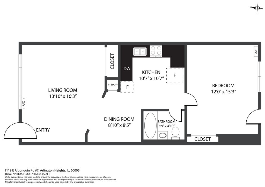
OVERSIZED GROUND FLOOR RANCH CONDO WITH PRIVATE ENTRACE! Looking for an affordable and profitable investment? This condo is one of 3 being offered for sale ~ RARE PORTFOLIO OPPORTUNITY ~ Can be sold individually or grouped together for a savvy investor (1115 E Algonquin Rd #8, 1119 E Algonquin Rd #7, & 1107 E Algonquin Rd #4). This well-maintained condo boasts responsible and long-term tenants; making it a true armchair investment. Wonderful location near 90, O'Hare, Busse Woods, shopping, & restaurants! Convenient access to nearby public transportation! Association is well run and covers lawn care, snow removal, water, heating, cooling, & trash Enjoy durable flooring, neutral paint, upgraded finishes. Spacious floorplan offers an oversized bedroom, ample closet space, and 2 private entrances! Wonderful location, low taxes, affordable HOA, & investor friendly!
| DAYS ON MARKET | 46 | LAST UPDATED | 10/16/2025 |
|---|---|---|---|
| YEAR BUILT | 1964 | COMMUNITY | Arlington Heights |
| COUNTY | Cook | STATUS | Active |
| PROPERTY TYPE(S) | Condo/Townhouse/Co-Op |
| School District | Rolling Meadows High School |
|---|---|
| Elementary School | John Jay Elementary School |
| Jr. High School | Holmes Junior High School |
| High School | Rolling Meadows High School |
| ADDITIONAL DETAILS | |
| AIR | Wall Unit(s), Window Unit(s) |
|---|---|
| AIR CONDITIONING | Yes |
| AMENITIES | Snow Removal, Water |
| APPLIANCES | Dishwasher, Range, Range Hood, Refrigerator |
| AREA | Arlington Heights |
| BASEMENT | None |
| CONSTRUCTION | Brick |
| HEAT | Steam |
| HOA DUES | 222 |
| LOT | 0 |
| LOT DIMENSIONS | COMMON |
| PARKING | Other |
| SEWER | Public Sewer |
| STORIES | 1 |
| TAXES | 1775 |
MORTGAGE CALCULATOR
TOTAL MONTHLY PAYMENT
0
P
I
*Estimate only
| SATELLITE VIEW |
| / | |
We respect your online privacy and will never spam you. By submitting this form with your telephone number
you are consenting for Humderto
Garcia to contact you even if your name is on a Federal or State
"Do not call List".
Listed with Redfin Corporation
The data relating to real estate for sale on this web site comes in part from the Broker ReciprocitySM Program of MRED. All real estate listings are marked with the Broker ReciprocitySM logo or the MRED Broker ReciprocitySM thumbnail logo (a little black house) and detailed information about them includes the name of the listing brokers.
The broker providing these data believes them to be correct, but advises interested parties to confirm them before relying on them in a purchase decision.
Copyright 2025 MRED. All rights reserved.

The broker providing these data believes them to be correct, but advises interested parties to confirm them before relying on them in a purchase decision.
Copyright 2025 MRED. All rights reserved.
This IDX solution is (c) Diverse Solutions 2025.