|
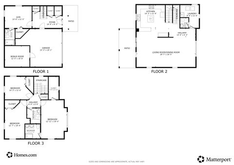
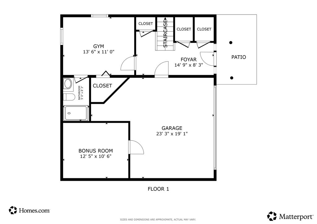
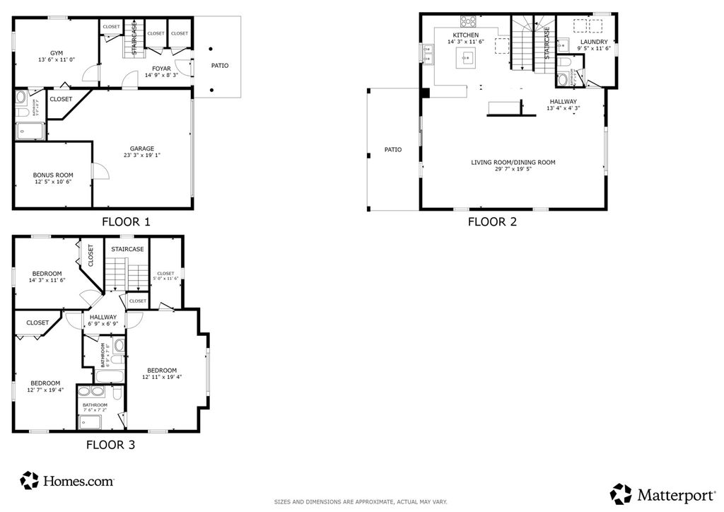
4 Bedroom * 3.5 Bath * Custom, Custom, CUSTOM! This isn't just a house, it's an experience. From the second you pull into the 6-CAR driveway, you know you're in for something special. Step inside and BOOM - the foyer greets you with a custom mudroom bench, sleek wall organizer, and tiled floors with a jaw-dropping inlay. Oh, and the oak staircase? Yeah, it curves dramatically with wrought iron balusters. (We told you this place has flair.) BUT WAIT. Right behind that staircase - a first-floor bedroom suite with its own full bath. Currently a home gym, but honestly... guest suite, in-law suite, or your own personal zen zone - you pick. Head upstairs and get ready for your jaw to drop: a chef's dream kitchen with walnut-finished 42" maple cabinets, gleaming granite counters, and more storage than you'll ever need. Center island with bar sink Wine cooler Coffee bar Breakfast bar Basically, this kitchen is ready for brunches, birthdays, and late-night pizza parties. And the flow? Wide open into the dining area and massive great room featuring a custom wood-accented Heatilator fireplace with full distressed wood backdrop. Total cabin-chic vibes. Slide open the doors and step out to your covered deck, overlooking a fully fenced yard with a fire pit hangout spot AND... wait for it... your very own axe-throwing station. Yes. Really. Inside, don't miss the laundry room and yet another custom half bath (are you noticing a theme?). Upstairs, the master suite is your retreat: oversized, wainscotted accent wall for a perfect headboard backdrop, dual vanities, and a full-body rain shower experience. Guest bedrooms? Spacious and each with their own unique wood wall accents that deserve their own Instagram posts. And the garage? Heated, loaded, and leading you to the ultimate man cave - complete with full-size fridge and rugged style. One of you gets the kitchen, the other gets the man cave. Fair trade, right? Location perks: Minutes to downtown Fox Lake with restaurants, theater, and the legendary Chain O' Lakes boating scene. Warning: This home causes serious FOMO. Don't walk... RUN. * Driveway is only slanted at the 1st 3rd of the drive - it is even with the garage at the top. Township plows/shovels that 3rd because it's a School Bus Route.
| DAYS ON MARKET | 16 | LAST UPDATED | 10/27/2025 |
|---|---|---|---|
| TRACT | Brophy Farm | YEAR BUILT | 1996 |
| COMMUNITY | Fox Lake | GARAGE SPACES | 2.0 |
| COUNTY | Lake | STATUS | Active |
| PROPERTY TYPE(S) | Single Family |
| School District | Grant Community High School |
|---|---|
| Elementary School | Stanton School |
| Jr. High School | Stanton School |
| High School | Grant Community High School |
| PRICE HISTORY | |
| Prior to Oct 27, '25 | $398,900 |
|---|---|
| Oct 27, '25 - Today | $394,000 |
| ADDITIONAL DETAILS | |
| AIR | Ceiling Fan(s), Central Air, Whole House Fan |
|---|---|
| AIR CONDITIONING | Yes |
| APPLIANCES | Dishwasher, Disposal, Dryer, Range, Range Hood, Refrigerator, Stainless Steel Appliance(s), Washer, Water Softener, Water Softener Rented, Wine Refrigerator |
| AREA | Fox Lake |
| BASEMENT | Finished, Walk-Out Access, Yes |
| CONSTRUCTION | Vinyl Siding |
| EXTERIOR | Fire Pit |
| GARAGE | Attached Garage, Yes |
| HEAT | Forced Air, Natural Gas |
| INTERIOR | Entrance Foyer, Granite Counters, Open Floorplan |
| LOT | 6490 sq ft |
| LOT DIMENSIONS | 50 X 130 |
| PARKING | Asphalt, Garage Door Opener, On Site, Attached, Driveway, Garage |
| SEWER | Public Sewer |
| STYLE | Traditional |
| SUBDIVISION | Brophy Farm |
| TAXES | 7709 |
| WATER | Public |
MORTGAGE CALCULATOR
TOTAL MONTHLY PAYMENT
0
P
I
*Estimate only
| SATELLITE VIEW |
| / | |
We respect your online privacy and will never spam you. By submitting this form with your telephone number
you are consenting for Humderto
Garcia to contact you even if your name is on a Federal or State
"Do not call List".
Listed with Keller Williams North Shore West
The data relating to real estate for sale on this web site comes in part from the Broker ReciprocitySM Program of MRED. All real estate listings are marked with the Broker ReciprocitySM logo or the MRED Broker ReciprocitySM thumbnail logo (a little black house) and detailed information about them includes the name of the listing brokers.
The broker providing these data believes them to be correct, but advises interested parties to confirm them before relying on them in a purchase decision.
Copyright 2025 MRED. All rights reserved.

The broker providing these data believes them to be correct, but advises interested parties to confirm them before relying on them in a purchase decision.
Copyright 2025 MRED. All rights reserved.
This IDX solution is (c) Diverse Solutions 2025.