|
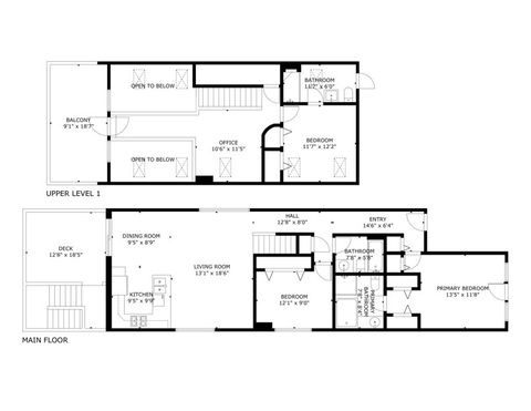
Stunning 3 bedroom, 3 bath duplex-up penthouse in the heart of Ukrainian Village! This uniquely designed home features soaring 30-foot ceilings, dramatic skylights, separate office space, two private outdoor spaces with beautiful city views, and two bedrooms with ensuite baths, providing flexible options for guests or shared living. The neighborhood is highly walkable, with a grocery store just one block away and the vibrant dining and shopping scene of Wicker Park only a short stroll from your front door! Step inside to the open-concept main living space - filled with natural light, diagonal hardwood floors, and a cozy gas fireplace. The adjacent kitchen is beautifully updated with 42" bamboo cabinets, granite countertops, stainless steel appliances, a tiled backsplash, and added cabinetry for extra storage. Slide open the doors from the dining area to one of two private decks - perfect for grilling and entertaining. Two bedrooms complete this level, including a spacious primary ensuite featuring a whirlpool tub, separate shower, and a Juliet balcony. The upper level features the second primary ensuite with a fully renovated bathroom, connected by a remarkable catwalk to a versatile office/den and a private terrace boasting panoramic 360-degree city views. Additional highlights include new carpet in the bedrooms, custom built-ins in every closet, and durable composite/treated wood decking. The home includes an abundance of storage - both in-unit and a large private room in the basement, plus a bike room. Enjoy a new washer/dryer, with an additional laundry hookup on the first level if needed. Located in a well-maintained building known for its charming ivy-covered brick facade and beautifully landscaped rear garden. Building upgrades include a new roof, replaced windows and flashings, a resealed upper deck, renovated common areas, garage parking, wiring in place for EV charging, and and composting pickup service included! This home is the perfect blend of comfort, style, and convenience in one of Chicago's most desirable neighborhoods!
| DAYS ON MARKET | 44 | LAST UPDATED | 11/13/2025 |
|---|---|---|---|
| YEAR BUILT | 2002 | COMMUNITY | CHI - West Town |
| GARAGE SPACES | 1.0 | COUNTY | Cook |
| STATUS | Conditional | PROPERTY TYPE(S) | Condo/Townhouse/Co-Op |
| ADDITIONAL DETAILS | |
| AIR | Ceiling Fan(s), Central Air |
|---|---|
| AIR CONDITIONING | Yes |
| AMENITIES | Insurance, Water |
| APPLIANCES | Dishwasher, Dryer, Microwave, Range, Refrigerator, Stainless Steel Appliance(s), Washer |
| AREA | CHI - West Town |
| BASEMENT | None |
| CONSTRUCTION | Brick |
| EXTERIOR | Balcony |
| FIREPLACE | Yes |
| GARAGE | Yes |
| HEAT | Forced Air, Natural Gas |
| HOA DUES | 225 |
| INTERIOR | Built-in Features, Cathedral Ceiling(s), Storage |
| LOT | 0 |
| LOT DIMENSIONS | Common |
| PARKING | Garage Door Opener, Garage, Detached |
| SEWER | Public Sewer |
| STORIES | 3 |
| TAXES | 7184.38 |
| WATER | Public |
MORTGAGE CALCULATOR
TOTAL MONTHLY PAYMENT
0
P
I
*Estimate only
| SATELLITE VIEW |
| / | |
We respect your online privacy and will never spam you. By submitting this form with your telephone number
you are consenting for Humderto
Garcia to contact you even if your name is on a Federal or State
"Do not call List".
Listed with Chicago Properties Firm
The data relating to real estate for sale on this web site comes in part from the Broker ReciprocitySM Program of MRED. All real estate listings are marked with the Broker ReciprocitySM logo or the MRED Broker ReciprocitySM thumbnail logo (a little black house) and detailed information about them includes the name of the listing brokers.
The broker providing these data believes them to be correct, but advises interested parties to confirm them before relying on them in a purchase decision.
Copyright 2025 MRED. All rights reserved.

The broker providing these data believes them to be correct, but advises interested parties to confirm them before relying on them in a purchase decision.
Copyright 2025 MRED. All rights reserved.
This IDX solution is (c) Diverse Solutions 2025.