|
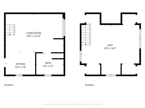
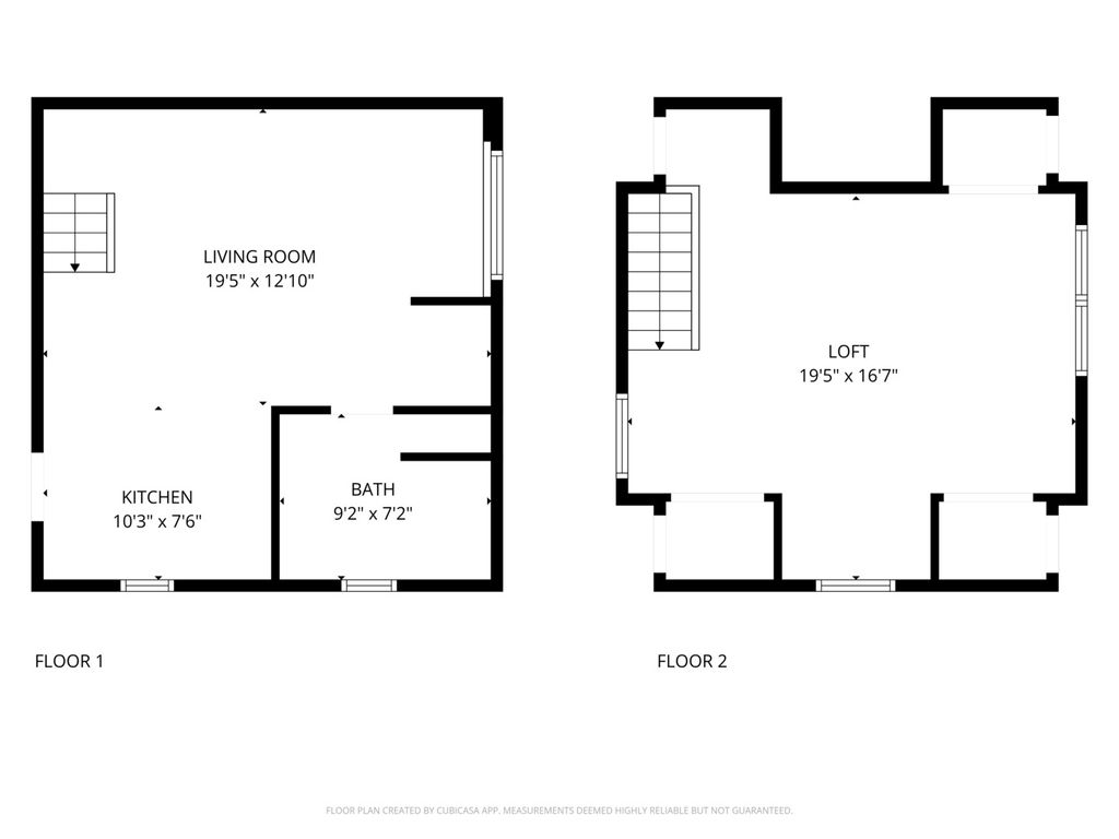
Opportunity awaits with this unique property that feautes a home with a guest house in desirable Oak Lawn, perfect for a primary residence, related living setup, or investment opportunity. Featuring multiple PINs sold together, this property offers flexibility for future development, allowing the next owner the option to split the parcels into separate lots if desired. The main residence is approximately 1,505 square feet and features three bedrooms, two full bathrooms, and generous living space on the main level. The home has new roofs, siding, and gutters completed just three years ago. A detached heated tandem garage offers extra depth and workspace, providing plenty of room for projects or storage. The 11,250-square-foot lot provides ample parking and an abundance of outdoor space surrounded with an open yard area. In addition to the main home, a two-story coach house sits on the property, complete with one bedroom, one full bathroom, and a fully functional kitchen, ideal for related living, guests, or generating rental income. Between the two residences is an 8x24 shed, perfect for tools, hobbies, or additional storage. This property presents incredible potential for homeowners, investors, or builders. With a bit of TLC, it can become a perfect primary home or an income-producing investment. Oak Lawn's convenient location provides everything you need just minutes away, including shopping, restaurants, hospitals, parks, and fitness clubs. Schools are all within one mile (Columbus Manor Elementary, Simmons Middle School, and Oak Lawn High School), and commuters will appreciate easy access to I-294, only three miles from the front door. This spacious property combines opportunity and location, offering the perfect slice of Oak Lawn living with endless possibilities for customization. Schedule your showing today and see the potential this unique property has to offer. Motivated Sellers!
| DAYS ON MARKET | 6 | LAST UPDATED | 10/21/2025 |
|---|---|---|---|
| YEAR BUILT | 1970 | COMMUNITY | Oak Lawn |
| GARAGE SPACES | 2.0 | COUNTY | Cook |
| STATUS | Active | PROPERTY TYPE(S) | Single Family |
| School District | Oak Lawn Comm High School |
|---|---|
| High School | Oak Lawn Comm High School |
| ADDITIONAL DETAILS | |
| AIR | Central Air |
|---|---|
| AIR CONDITIONING | Yes |
| AREA | Oak Lawn |
| BASEMENT | None |
| CONSTRUCTION | Vinyl Siding |
| GARAGE | Yes |
| HEAT | Natural Gas |
| LOT | 0 |
| LOT DIMENSIONS | 90X125 |
| PARKING | Heated Garage, Tandem, On Site, Detached, Garage |
| SEWER | Public Sewer |
| TAXES | 5116.32 |
| WATER | Public |
MORTGAGE CALCULATOR
TOTAL MONTHLY PAYMENT
0
P
I
*Estimate only
| SATELLITE VIEW |
| / | |
We respect your online privacy and will never spam you. By submitting this form with your telephone number
you are consenting for Humderto
Garcia to contact you even if your name is on a Federal or State
"Do not call List".
Listed with RE/MAX 1st Service
The data relating to real estate for sale on this web site comes in part from the Broker ReciprocitySM Program of MRED. All real estate listings are marked with the Broker ReciprocitySM logo or the MRED Broker ReciprocitySM thumbnail logo (a little black house) and detailed information about them includes the name of the listing brokers.
The broker providing these data believes them to be correct, but advises interested parties to confirm them before relying on them in a purchase decision.
Copyright 2025 MRED. All rights reserved.

The broker providing these data believes them to be correct, but advises interested parties to confirm them before relying on them in a purchase decision.
Copyright 2025 MRED. All rights reserved.
This IDX solution is (c) Diverse Solutions 2025.