|
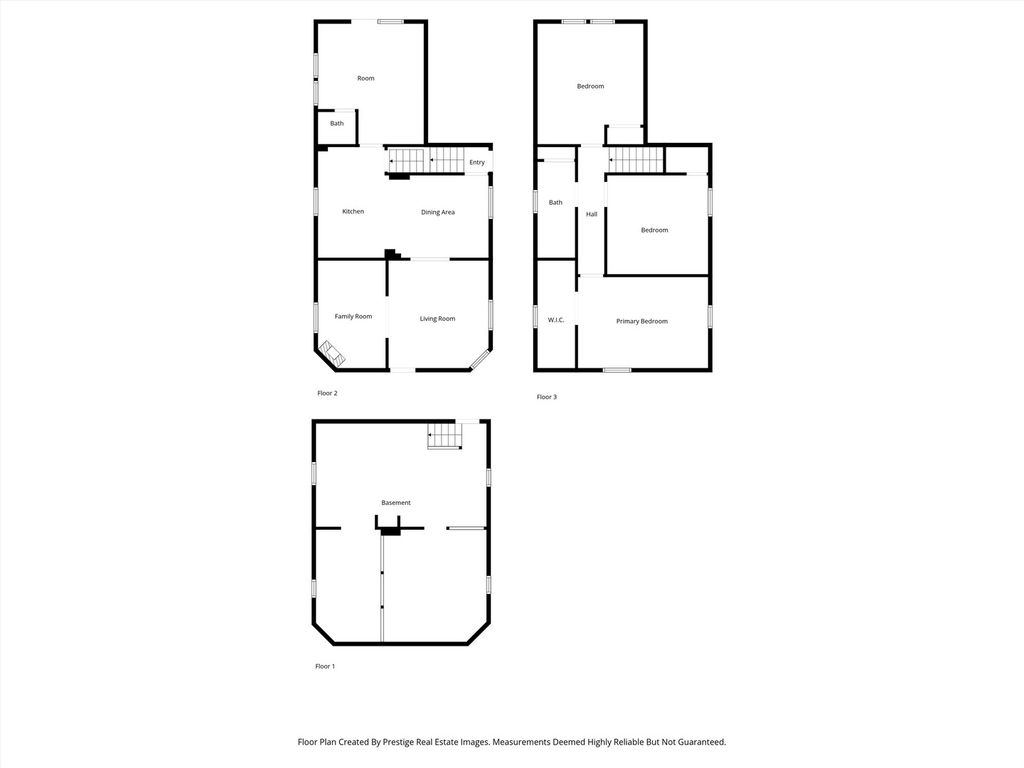
Welcome to this beautifully maintained and updated 3-bedroom, 1 1/2 bathroom home that perfectly blends classic charm with modern comfort. With a fully fenced yard, a detached 2-car garage, and move-in ready interiors, this is the perfect place to call home! The living room is cozy and inviting, featuring a lovely fireplace perfect for chilly evenings. The kitchen offers plenty of counter space, and essential white and stainless steel appliances, including a side-by-side refrigerator and a dishwasher. The main level features a dedicated dining area and a separate family room with French doors that open directly to the backyard, making indoor-outdoor entertaining a breeze. The spacious, fully fenced backyard offers a secure and private space for pets, play, or gardening. The long driveway leads to a detached garage, providing excellent parking and storage. The lower level offers an unfinished basement for storage, laundry, or potential future finishing.
| DAYS ON MARKET | 14 | LAST UPDATED | 10/20/2025 |
|---|---|---|---|
| YEAR BUILT | 1930 | COMMUNITY | Belvidere |
| GARAGE SPACES | 1.0 | COUNTY | Boone |
| STATUS | Active | PROPERTY TYPE(S) | Single Family |
| ADDITIONAL DETAILS | |
| AIR | Central Air |
|---|---|
| AIR CONDITIONING | Yes |
| APPLIANCES | Dishwasher, Range, Refrigerator |
| AREA | Belvidere |
| BASEMENT | Full, Unfinished, Yes |
| CONSTRUCTION | Aluminum Siding |
| FIREPLACE | Yes |
| GARAGE | Yes |
| HEAT | Natural Gas |
| LOT | 0 |
| LOT DIMENSIONS | 50x182 |
| PARKING | On Site, Detached, Garage |
| SEWER | Public Sewer |
| TAXES | 5000 |
| WATER | Public |
MORTGAGE CALCULATOR
TOTAL MONTHLY PAYMENT
0
P
I
*Estimate only
| SATELLITE VIEW |
| / | |
We respect your online privacy and will never spam you. By submitting this form with your telephone number
you are consenting for Humderto
Garcia to contact you even if your name is on a Federal or State
"Do not call List".
Listed with Era Chicago Realty Inc
The data relating to real estate for sale on this web site comes in part from the Broker ReciprocitySM Program of MRED. All real estate listings are marked with the Broker ReciprocitySM logo or the MRED Broker ReciprocitySM thumbnail logo (a little black house) and detailed information about them includes the name of the listing brokers.
The broker providing these data believes them to be correct, but advises interested parties to confirm them before relying on them in a purchase decision.
Copyright 2025 MRED. All rights reserved.

The broker providing these data believes them to be correct, but advises interested parties to confirm them before relying on them in a purchase decision.
Copyright 2025 MRED. All rights reserved.
This IDX solution is (c) Diverse Solutions 2025.