|
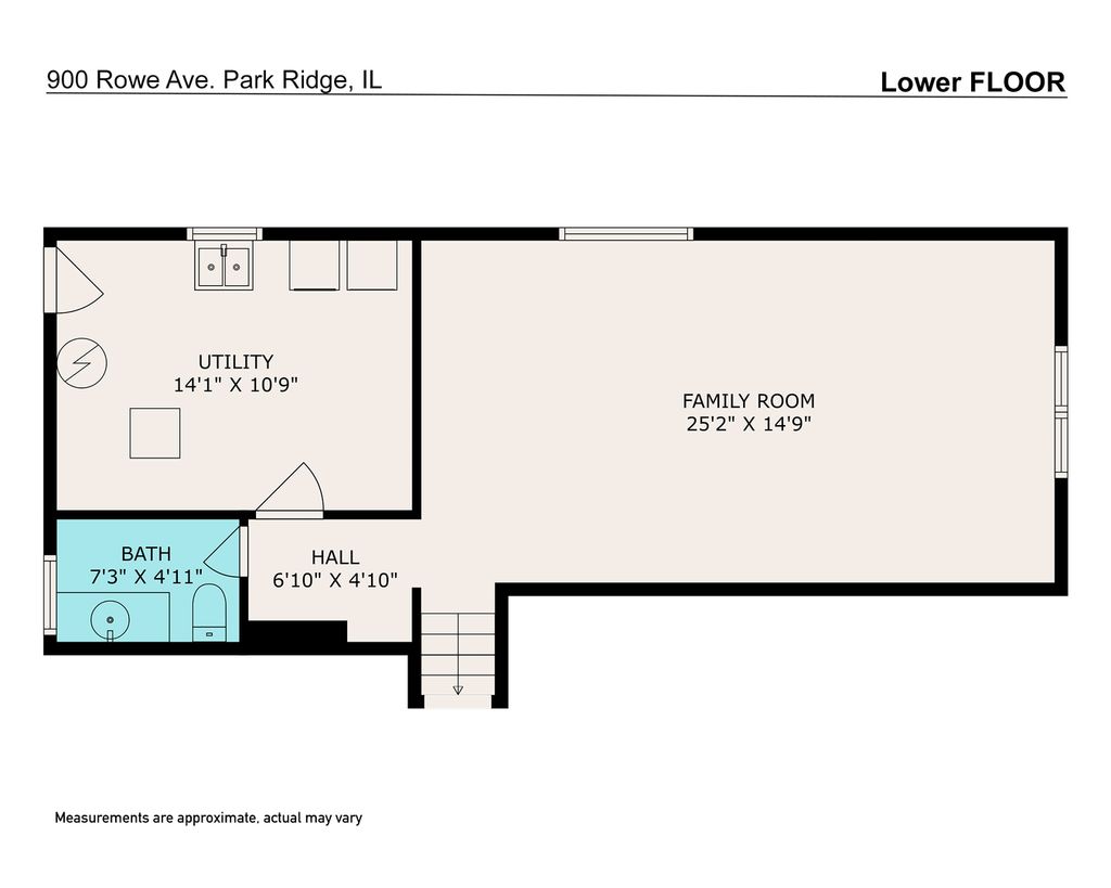
Move-in Ready Gem in Prime Park Ridge Location! Just a short block from the Dee Road Metra station, this fully remodeled all-brick bi-level home combines style, comfort, and convenience. Step into a stunning modern kitchen featuring sleek European flat-panel, frameless cabinets, quartz countertops, and top-of-the-line Frigidaire Professional Series stainless steel appliances. The interior has been thoughtfully updated throughout, with all new engineered hardwood flooring on the main and upper levels, modern wood trim, baseboards, and new doors. Extensive recessed lighting floods the home with brightness and warmth. Both bathrooms have been impeccably renovated with premium finishes and attention to detail. The spacious lower-level family room offers new drywall, lighting, and plush carpeting-perfect for relaxing or entertaining. Additional highlights include a ceramic-tiled laundry room with newer Maytag washer and dryer, updated 100-amp electrical panel, furnace (approx. 4 years), central air (approx. 8 years), new roof 2022, newer sump pump, and a freshly tuckpointed chimney. Enjoy outdoor living in the private backyard with a brick paver patio-ideal for summer gatherings. This is truly a turn-key move in ready opportunity.
| DAYS ON MARKET | 6 | LAST UPDATED | 10/20/2025 |
|---|---|---|---|
| YEAR BUILT | 1962 | COMMUNITY | Park Ridge |
| GARAGE SPACES | 2.0 | COUNTY | Cook |
| STATUS | Active | PROPERTY TYPE(S) | Single Family |
| School District | Maine South High School |
|---|---|
| Elementary School | Franklin Elementary School |
| Jr. High School | Emerson Middle School |
| High School | Maine South High School |
| ADDITIONAL DETAILS | |
| AIR | Central Air |
|---|---|
| AIR CONDITIONING | Yes |
| APPLIANCES | Dishwasher, Dryer, Microwave, Range, Refrigerator, Stainless Steel Appliance(s), Washer |
| AREA | Park Ridge |
| BASEMENT | Crawl Space, Exterior Entry, Finished, Partial, Yes |
| CONSTRUCTION | Brick |
| GARAGE | Yes |
| HEAT | Natural Gas |
| LOT | 0 |
| LOT DIMENSIONS | 50X161X74X116 |
| PARKING | Concrete, On Site, Detached, Garage |
| SEWER | Public Sewer |
| STYLE | Bi-Level |
| TAXES | 8604.61 |
MORTGAGE CALCULATOR
TOTAL MONTHLY PAYMENT
0
P
I
*Estimate only
| SATELLITE VIEW |
| / | |
We respect your online privacy and will never spam you. By submitting this form with your telephone number
you are consenting for Humderto
Garcia to contact you even if your name is on a Federal or State
"Do not call List".
Listed with @properties Christie�s International Real Estate
The data relating to real estate for sale on this web site comes in part from the Broker ReciprocitySM Program of MRED. All real estate listings are marked with the Broker ReciprocitySM logo or the MRED Broker ReciprocitySM thumbnail logo (a little black house) and detailed information about them includes the name of the listing brokers.
The broker providing these data believes them to be correct, but advises interested parties to confirm them before relying on them in a purchase decision.
Copyright 2025 MRED. All rights reserved.

The broker providing these data believes them to be correct, but advises interested parties to confirm them before relying on them in a purchase decision.
Copyright 2025 MRED. All rights reserved.
This IDX solution is (c) Diverse Solutions 2025.