| 
 | 
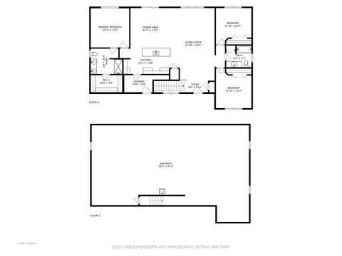
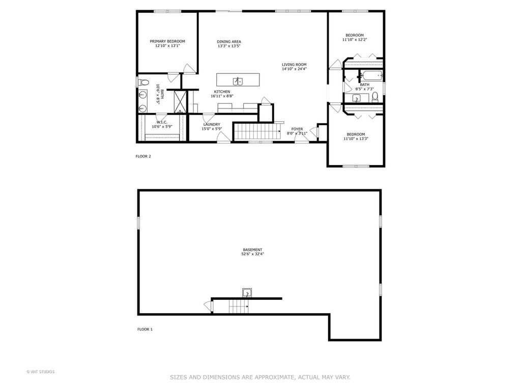
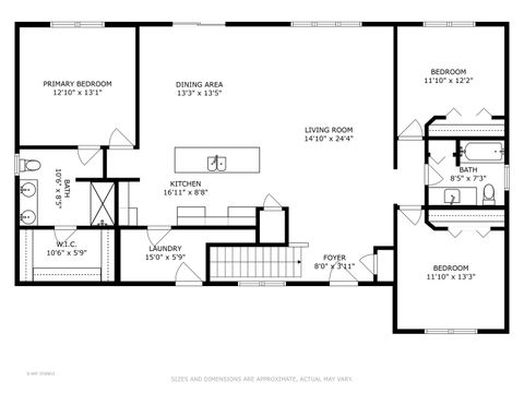
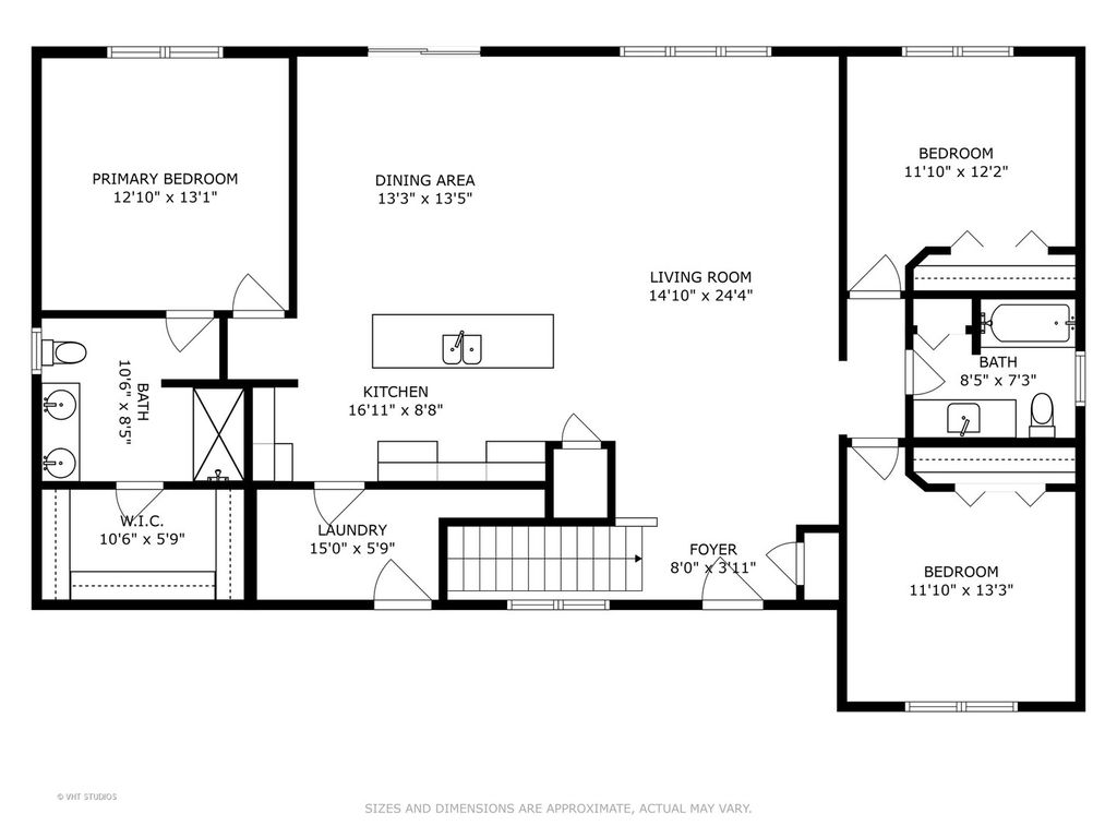
***PROPOSED New Construction, 3BR/2BA RANCH "READY DEC 2025"*** *** ~ Buy Brand New Construction for less than Rent! ~ $12,000 Down will hold this home THRU construction & closing ~ NO HOA/SSA Fees Here! ~ minutes from Crete PARK ~ This LOT faces a pond/open area ~ RANCH plan with 3 BR, 2 BA, & FULL BASEMENT! ~ Features 1610 SQUARE FEET of luxury living space! ~ OPEN Kitchen/Dining/Great Room floor plan ~ 9 foot Main Floor ceilings ~ White Trim & Paneled Doors ~ Stainless Steel Kitchen Appliance Package ~ Full, Private Master Bath ~ Fully Insulated & Drywalled GARAGE ~ Full Unfinished Basement is Insulated ~ ALL Maintenance Free Exterior ~ Close to Schools, Parks, Shopping & More ~ Crete Schools ~ City sewer & water ~ EZ access to I-57 and I-394 ~ Please see "Additional Information" for more details ~ Builder uses their own contract
| DAYS ON MARKET | 1 | LAST UPDATED | 10/30/2025 | 
|---|---|---|---|
| YEAR BUILT | 2025 | COMMUNITY | Crete | 
| GARAGE SPACES | 2.0 | COUNTY | Will | 
| STATUS | Active | PROPERTY TYPE(S) | Single Family | 
| ADDITIONAL DETAILS | |
| AIR | Ceiling Fan(s), Central Air | 
|---|---|
| AIR CONDITIONING | Yes | 
| APPLIANCES | Dishwasher, Gas Cooktop, Gas Oven, Microwave, Range, Range Hood, Refrigerator, Stainless Steel Appliance(s) | 
| AREA | Crete | 
| BASEMENT | Bath/Stubbed, Full, Sump Pump, Unfinished, Yes | 
| CONSTRUCTION | Brick, Vinyl Siding | 
| GARAGE | Attached Garage, Yes | 
| HEAT | Forced Air, Natural Gas | 
| INTERIOR | High Ceilings, Open Floorplan, Pantry | 
| LOT | 9148 sq ft | 
| LOT DESCRIPTION | Landscaped, Level | 
| LOT DIMENSIONS | 90x100x90x100 | 
| PARKING | Concrete, Garage Door Opener, On Site, Attached, Garage | 
| SEWER | Public Sewer | 
| STYLE | Contemporary | 
| TAXES | 1070 | 
| WATER | Public | 
            MORTGAGE CALCULATOR
        
        TOTAL MONTHLY PAYMENT
0
                    P
                        I 
                    
            *Estimate only
        
    | SATELLITE VIEW | 
| / | |
	We respect your online privacy and will never spam you. By submitting this form with your telephone number
	you are consenting for Humderto
	Garcia to contact you even if your name is on a Federal or State
	"Do not call List".
	
    Listed with William C Cunha
	The data relating to real estate for sale on this web site comes in part from the Broker ReciprocitySM Program of MRED. All real estate listings are marked with the Broker ReciprocitySM logo or the MRED Broker ReciprocitySM thumbnail logo (a little black house) and detailed information about them includes the name of the listing brokers.
The broker providing these data believes them to be correct, but advises interested parties to confirm them before relying on them in a purchase decision.
Copyright 2025 MRED. All rights reserved.

	
	
	
    
The broker providing these data believes them to be correct, but advises interested parties to confirm them before relying on them in a purchase decision.
Copyright 2025 MRED. All rights reserved.

This IDX solution is (c) Diverse Solutions 2025.
 
				 Twitter
									        Twitter Facebook
									        Facebook Email
									        Email 
									 
									 
									 
									 
									 
									 
									 
									 
									 
									 
									 
									 
									 
									 
									 
									 
									 
									 
									 
									 
									 
									 
									 
									 
									 
									 
									 
									 
									