|
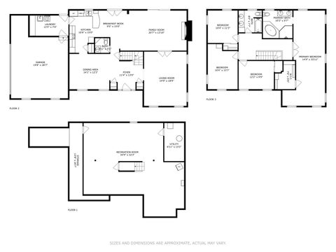
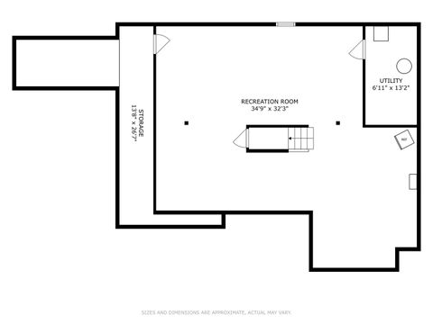
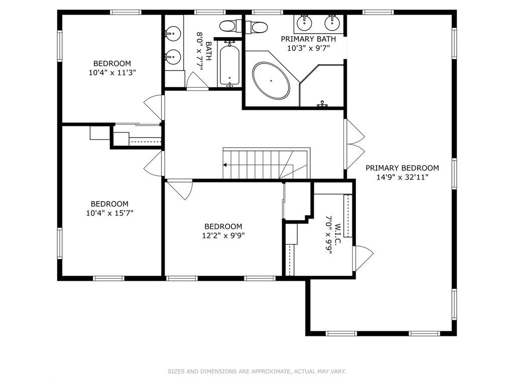
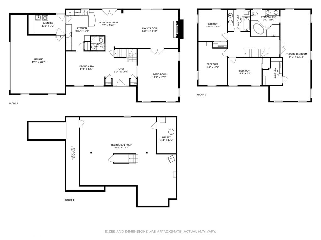
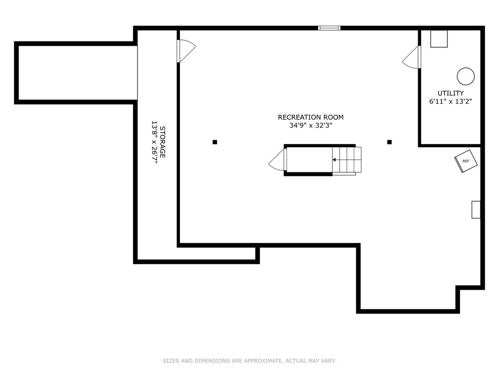
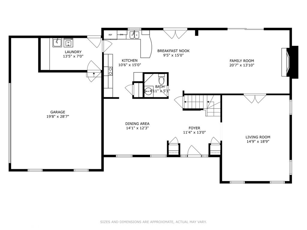
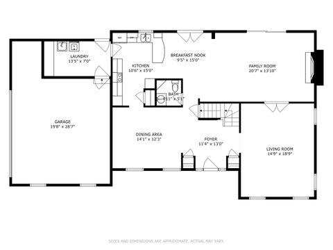
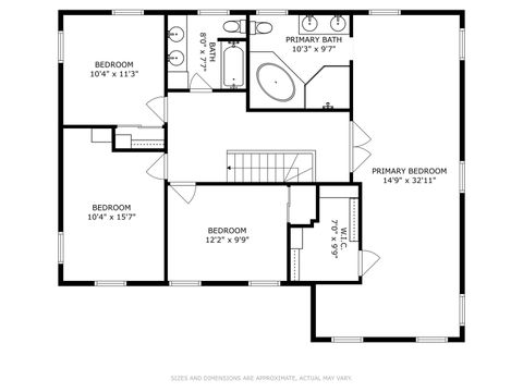
When convenience, functionality & privacy create a mostly fenced .47 acre sanctuary in Barrington only 3 doors down from Cuba Marsh & minutes to town, Metra, shops, entertainment & restaurants. Presenting a charming entry opening to spacious living room with French doors & elegant dining room with floor to ceiling windows & kitchen access. The custom kitchen was thoughtfully designed with cherry cabinets, granite, stainless steel appliances including double oven, breakfast bar overlooking kitchen table space, access to patio & family room. Luxurious family presents a brick fireplace & sliding doors to patio. 1st floor also features gorgeous hardwood floors, powder room with penny tile accent wall & remarkable laundry room with custom cherry lockers. Commencing to 2nd floor to 4 bedrooms & 2 full baths consisting of sprawling master suite with walk-in closet, sitting area, double vanity, shower & Jacuzzi. Finished lower level with porcelain tile throughout! Attached 2+ garage stall with an additional heated detached 3 car garage that can be used as a shop or a place for the toys. Property has city water and sewer. Updated lighting thru out. Pool included in sale, new water softener, new combo washer/dryer, added new entryway deck with awning, gazebo, 2 detached storage sheds, Roof 12 years old, new windows 13 years ago, HVAC 8 years old and 75 gallon hot water tank 8 years old.
| DAYS ON MARKET | 8 | LAST UPDATED | 10/21/2025 |
|---|---|---|---|
| YEAR BUILT | 1974 | COMMUNITY | Barrington Area |
| GARAGE SPACES | 5.0 | COUNTY | Lake |
| STATUS | Active | PROPERTY TYPE(S) | Single Family |
| School District | Barrington High School |
|---|---|
| Elementary School | Arnett C Lines Elementary School |
| Jr. High School | Barrington Middle School-Station |
| High School | Barrington High School |
| ADDITIONAL DETAILS | |
| AIR | Ceiling Fan(s), Central Air |
|---|---|
| AIR CONDITIONING | Yes |
| APPLIANCES | Cooktop, Dishwasher, Disposal, Double Oven, Dryer, Humidifier, Microwave, Oven, Range, Refrigerator, Stainless Steel Appliance(s), Washer |
| AREA | Barrington Area |
| BASEMENT | Crawl Space, Finished, Full, Sump Pump, Yes |
| CONSTRUCTION | Brick, Vinyl Siding |
| EXTERIOR | Fire Pit |
| FIREPLACE | Yes |
| GARAGE | Attached Garage, Yes |
| HEAT | Forced Air, Natural Gas |
| INTERIOR | Entrance Foyer |
| LOT | 0.4775 acre(s) |
| LOT DIMENSIONS | 116X179X116X179 |
| PARKING | Asphalt, Garage Door Opener, Garage, On Site, Attached, Detached, Driveway |
| SEWER | Public Sewer |
| STYLE | Colonial |
| TAXES | 13392 |
| WATER | Public |
MORTGAGE CALCULATOR
TOTAL MONTHLY PAYMENT
0
P
I
*Estimate only
| SATELLITE VIEW |
| / | |
We respect your online privacy and will never spam you. By submitting this form with your telephone number
you are consenting for Humderto
Garcia to contact you even if your name is on a Federal or State
"Do not call List".
Listed with Coldwell Banker Realty
The data relating to real estate for sale on this web site comes in part from the Broker ReciprocitySM Program of MRED. All real estate listings are marked with the Broker ReciprocitySM logo or the MRED Broker ReciprocitySM thumbnail logo (a little black house) and detailed information about them includes the name of the listing brokers.
The broker providing these data believes them to be correct, but advises interested parties to confirm them before relying on them in a purchase decision.
Copyright 2025 MRED. All rights reserved.

The broker providing these data believes them to be correct, but advises interested parties to confirm them before relying on them in a purchase decision.
Copyright 2025 MRED. All rights reserved.
This IDX solution is (c) Diverse Solutions 2025.