|
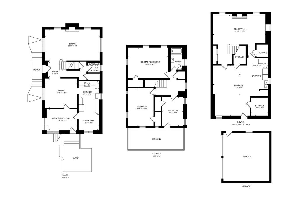
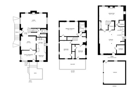
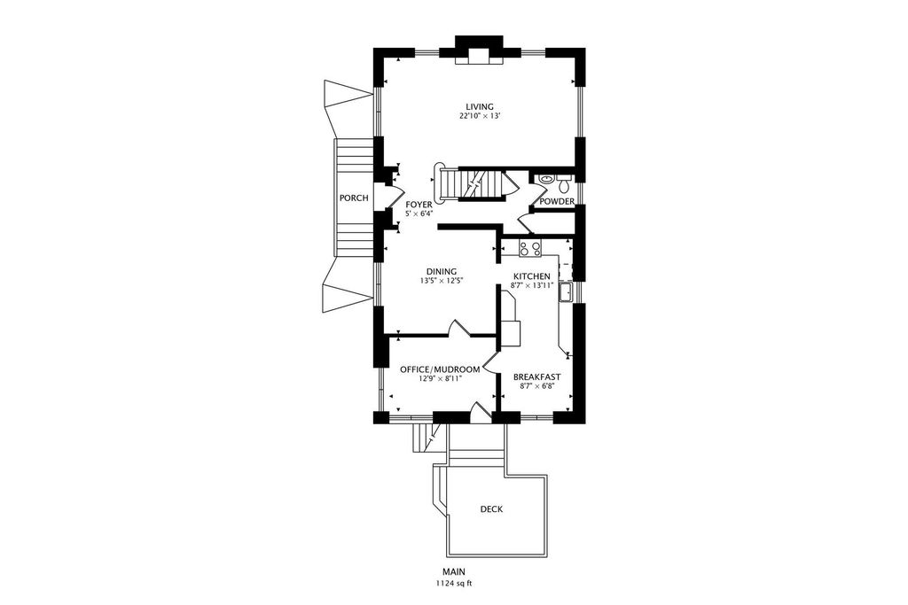
The English style, the alluring curb appeal, the spacious yard, and the superior location just a block from award winning Onahan School WILL compel you to visit...good thing too! Hardwood floors, new FP Insert for a fantastic cozy wood fire, newer windows with new blinds, new bath with heated floor, new light fixtures, a first floor office, an eat in kitchen, a newly finished rec rm, new deck and more. Specific possession date preferred.
| DAYS ON MARKET | 7 | LAST UPDATED | 10/26/2025 |
|---|---|---|---|
| YEAR BUILT | 1943 | COMMUNITY | CHI - Norwood Park |
| GARAGE SPACES | 2.5 | COUNTY | Cook |
| STATUS | Conditional | PROPERTY TYPE(S) | Single Family |
| School District | Taft High School |
|---|---|
| Elementary School | Onahan Elementary School |
| High School | Taft High School |
| ADDITIONAL DETAILS | |
| AIR | Central Air |
|---|---|
| AIR CONDITIONING | Yes |
| APPLIANCES | Dishwasher, Dryer, Microwave, Range, Refrigerator, Washer |
| AREA | CHI - Norwood Park |
| BASEMENT | Exterior Entry, Full, Partially Finished, Yes |
| CONSTRUCTION | Brick |
| FIREPLACE | Yes |
| GARAGE | Yes |
| HEAT | Natural Gas, Steam |
| INTERIOR | Entrance Foyer |
| LOT | 0 |
| LOT DESCRIPTION | Irregular Lot, Landscaped |
| LOT DIMENSIONS | 4725 |
| PARKING | Garage Door Opener, On Site, Detached, Garage, Driveway |
| SEWER | Public Sewer |
| TAXES | 7732.48 |
| WATER | Public |
MORTGAGE CALCULATOR
TOTAL MONTHLY PAYMENT
0
P
I
*Estimate only
| SATELLITE VIEW |
| / | |
We respect your online privacy and will never spam you. By submitting this form with your telephone number
you are consenting for Humderto
Garcia to contact you even if your name is on a Federal or State
"Do not call List".
Listed with Baird & Warner
The data relating to real estate for sale on this web site comes in part from the Broker ReciprocitySM Program of MRED. All real estate listings are marked with the Broker ReciprocitySM logo or the MRED Broker ReciprocitySM thumbnail logo (a little black house) and detailed information about them includes the name of the listing brokers.
The broker providing these data believes them to be correct, but advises interested parties to confirm them before relying on them in a purchase decision.
Copyright 2025 MRED. All rights reserved.

The broker providing these data believes them to be correct, but advises interested parties to confirm them before relying on them in a purchase decision.
Copyright 2025 MRED. All rights reserved.
This IDX solution is (c) Diverse Solutions 2025.