|
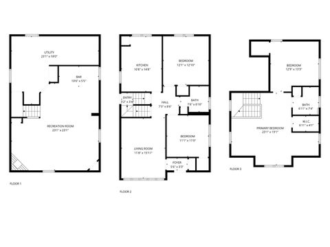
Beautifully maintained 4 bedroom, 2 bath brick Cape Cod nestled in Oak Lawn's highly sought-after southeast neighborhood, showcasing timeless character and picture-perfect curb appeal! Pride of ownership shines throughout this charming home. Step inside to a bright and inviting living room featuring a large front window that fills the space with natural sunlight. The eat-in kitchen offers plenty of room for dining and includes a spacious pantry, perfect for everyday convenience and storage. The main level features two bedrooms and a full bath, providing the ease of main level living and flexible space for guests, a home office, or playroom. Upstairs, you'll find a spacious primary bedroom with a walk-in closet and built-in drawers for extra storage, along with a generously sized second bedroom and a shared full bathroom. The finished basement adds to the home's appeal with a cozy family room, fireplace, and bar area, perfect for entertaining. Plus, a laundry room and additional storage space. Outside, enjoy an expansive, well-manicured fenced yard, a 2.5-car garage, and an attached brick carport that provides convenient, covered parking right off the side entrance. Recent updates include fresh paint, new carpet, and newer HVAC systems-new furnace (2021) and new AC (2022), plus new gutters and fascia (2024) and newer exterior doors. Located just steps from Lawn Manor Park, near top-rated schools, and minutes from shopping and dining at Stoney Creek Promenade, this well-loved home is ready for its next owners to enjoy!
| DAYS ON MARKET | 4 | LAST UPDATED | 10/23/2025 |
|---|---|---|---|
| YEAR BUILT | 1960 | COMMUNITY | Oak Lawn |
| GARAGE SPACES | 2.5 | COUNTY | Cook |
| STATUS | Active | PROPERTY TYPE(S) | Single Family |
| ADDITIONAL DETAILS | |
| AIR | Central Air |
|---|---|
| AIR CONDITIONING | Yes |
| APPLIANCES | Dishwasher, Dryer, Microwave, Range, Refrigerator, Washer |
| AREA | Oak Lawn |
| BASEMENT | Finished, Full, Yes |
| CONSTRUCTION | Brick |
| FIREPLACE | Yes |
| GARAGE | Yes |
| HEAT | Forced Air, Natural Gas |
| INTERIOR | Dry Bar |
| LOT | 0 |
| LOT DIMENSIONS | 6650 |
| PARKING | Concrete, Garage Door Opener, Carport, On Site, Detached, Garage, Driveway |
| SEWER | Public Sewer |
| STYLE | Cape Cod |
| TAXES | 6748.6 |
MORTGAGE CALCULATOR
TOTAL MONTHLY PAYMENT
0
P
I
*Estimate only
| SATELLITE VIEW |
| / | |
We respect your online privacy and will never spam you. By submitting this form with your telephone number
you are consenting for Humderto
Garcia to contact you even if your name is on a Federal or State
"Do not call List".
Listed with Coldwell Banker Realty
The data relating to real estate for sale on this web site comes in part from the Broker ReciprocitySM Program of MRED. All real estate listings are marked with the Broker ReciprocitySM logo or the MRED Broker ReciprocitySM thumbnail logo (a little black house) and detailed information about them includes the name of the listing brokers.
The broker providing these data believes them to be correct, but advises interested parties to confirm them before relying on them in a purchase decision.
Copyright 2025 MRED. All rights reserved.

The broker providing these data believes them to be correct, but advises interested parties to confirm them before relying on them in a purchase decision.
Copyright 2025 MRED. All rights reserved.
This IDX solution is (c) Diverse Solutions 2025.